项目概况 | Project overview
项目位于北京市通州区唐大庄村,一个保存着北方传统平房建筑形态的村庄。这里的房子由红砖砌成,具有中国古建筑的元素,彩绘图案,木结构的坡屋顶等传统特征。对这些传统建筑特色的提取与重构,是一项富有挑战性的设计任务。多么工作室受委托将原本总面积只有80平米的平房和小院改造成了一个精品民宿酒店,意在原始建筑和场地的特色条件下,以现代几何元素注入全新的内核,重塑建筑脉络,实践对传统建筑的重新想象。
▼院落外观

重构 | Reconstruction
在这次改造中,我们希望保留传统建筑的痕迹,并在现代语境下赋予新的意义。保留屋檐的经典元素,同时简化彩绘,使传统元素在整个建筑中成为抽象的表现形式。
▼改造前


▼西厢房立面


▼东厢房立面


▼东厢房入口


为了给空间注入灵魂,我们提取了原始建筑中的红色,并进行了色度的调整,将其定义为此项目的主调,颜色从此不再是视觉体验,而是精神性的表达。在建筑的外立面和室内家具中,以适当的比例贯穿其中,就像一个微妙的音符,为整个项目带来了一种诗意的氛围。
▼彩绘屋檐下建筑的延续

▼保留的原始红砖墙和为项目设计的躺椅

我们在庭院中引入一条主轴,以曲线的形式勾勒出几条岔路,分割出四个不同尺度的内部庭院。在视觉上营造出空间层次感,也在功能上实现了灵活性和可变性。红色火山石铺就的景观区为建筑增添了一抹别致的色彩,而水泥路面则流向各个客房空间,引导着客人行走的方向和空间范围。此外,我们用具有张力的几何形状构建了客房入口,使其具有一种新京味儿的入场仪式。室内原本面向院子的墙体被拆除后,大面积的落地玻璃代替了相对封闭的窗墙体系,室外庭院与室内空间就此成为交替的风景。
▼分解轴测图

▼弧形走道流向入口

▼院子入口区域

▼屋檐下看向大门

▼由客房内部看向室外



我们试图在现代的脉络里展现古老的韵律,用空间让时间的记忆共生。在旧有建筑的坡屋顶下,将屋脊部分打开,展露出原有的木梁,又在屋顶剖面关系上做出变化,用曲面勾勒出传统的坡屋顶形象,将古老的建筑语言融入现代的空间里,让历史在现代里得以传承。在这个4.1米挑高的空间下,我们设计了柔和的间接照明,每一条光线都在勾勒空间的轮廓,给人以具有精神性的空间体验。
▼西厢房的人字坡顶

▼东厢房的人字坡顶

▼外露的原始木屋顶

▼由西厢房看向院子

▼室内外的和谐统一

设计手段化解施工困局 | Design strategies to resolve construction challenges
这个项目是我们迄今为止最具挑战性的小项目之一。一个令人困扰的问题是业主没有请专业的施工单位,而是雇佣了散工来进行施工。这导致工人的水平和责任心难以掌控,对于项目的完成度造成了很大的困扰。在经历了一系列施工错误之后,我们做出了一个决定:通过设计的手段深入介入施工,尽可能地减少施工方的犯错机会。
▼传统建筑下的新内核

▼人字吊顶与自然光

▼东厢房客房概览

▼山墙上的条形窗

我们将室内所有的家具、柜体等都设计成了预制拼装形式,无论是明显可见的构件还是隐藏在内部的龙骨,每一块木板都被精确地定位在特定的位置上。通过这种方式来解放施工师傅的大脑,只要师傅按照我们提供的拼装图纸进行操作,最终的效果就能与设计图纸契合。这种设计策略不仅减少了施工过程中的错误和不确定性,还提高了施工效率。这也源自于工作室多年来的实践经验和设计手法,将传统榫卯节点简化并应用于家具组装中,不仅仅是为了实现功能性,也是美观和艺术性的表达,以符合项目自身的风格和理念。
▼家具拼装轴测动图

▼家具细节




▼人字顶的光影效果

▼窗外的躺椅

▼客房玄关

▼为项目设计的挂钩与衣架


▼卫生间





▼夜景






▼区位图

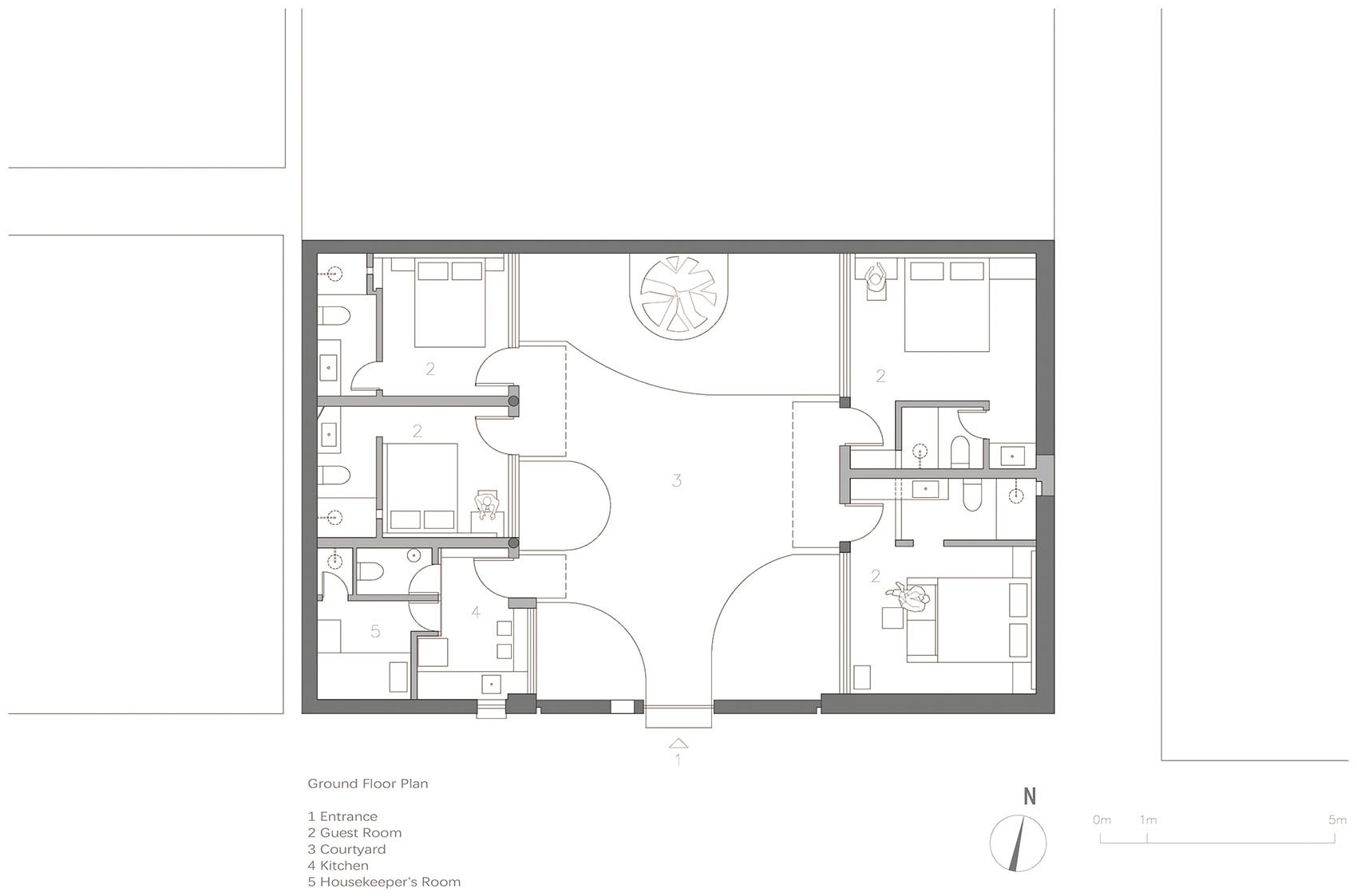
▼平面图

项目名称:寸二民宿
项目类型:民宿设计
项目地址:北京
建筑设计/景观设计/室内设计:多么工作室
主创及设计团队: 盛乐、王维、周腾、豆会会、王春浩、赵丁一
家具设计: 多么工作室
建筑面积:88㎡
用地面积: 150㎡
设计年份/建成年份:2021-2023
摄影版权:多么工作室
感写观览、登录灵感LAB账号、点击文章顶部🤍可收藏案例
更多该设计公司案例,请点击 → 多么工作室
©非特殊说明,文章版权归原作者所有
编辑版权©灵感LAB,欢迎转发,禁止以灵感LAB编辑版本进行任何形式转载

关注公众号

关注抖音号