过去三年是实体品牌煎熬的三年,许多本土服装品牌选择转战线上,但也仍有少数坚守线下实体市场,反复的疫情对实体商业带来的早已不是简单的流量难题。抛开错综复杂的因素,我们依然可以从一些维度窥视疫情下实体商业的微观变化。消费迭代虽艰难缓慢但却并未停下脚步,轻装上阵将会是许多实体品牌后疫情时代迈出的第一步。

▼A店空间

▼几何元素的穿插与交织

如今的商业空间需要应对更复杂的市场环境及更多不确定因素,狭义的空间设计已无法适应品牌未来的发展。在本次新SI设计中,我们将商业空间中的各部分元素进行分解和重组,让每个空间零件都能最大化适应不同的场地条件以及各种物管要求。我们希望通过建立一套可持续的商业空间策略,来解决每一个新空间自身所产生的问题。
▼金属网帘暗示出不同的分区

▼不同材料在空间中的虚实关系

新的SI设计将店铺的墙体与结构做出重新的梳理,以四周的墙体作为基底,吃出一圈变化的厚度形成一套负型的系统。在这个厚度之内把店内的辅助空间灵活排布,收银、试衣、仓库、货架壁龛这些被拆散的元件被镶嵌到负型系统的厚度之中,作为新SI系统的常态化固定部分。
▼适用于不同店型的负型系统

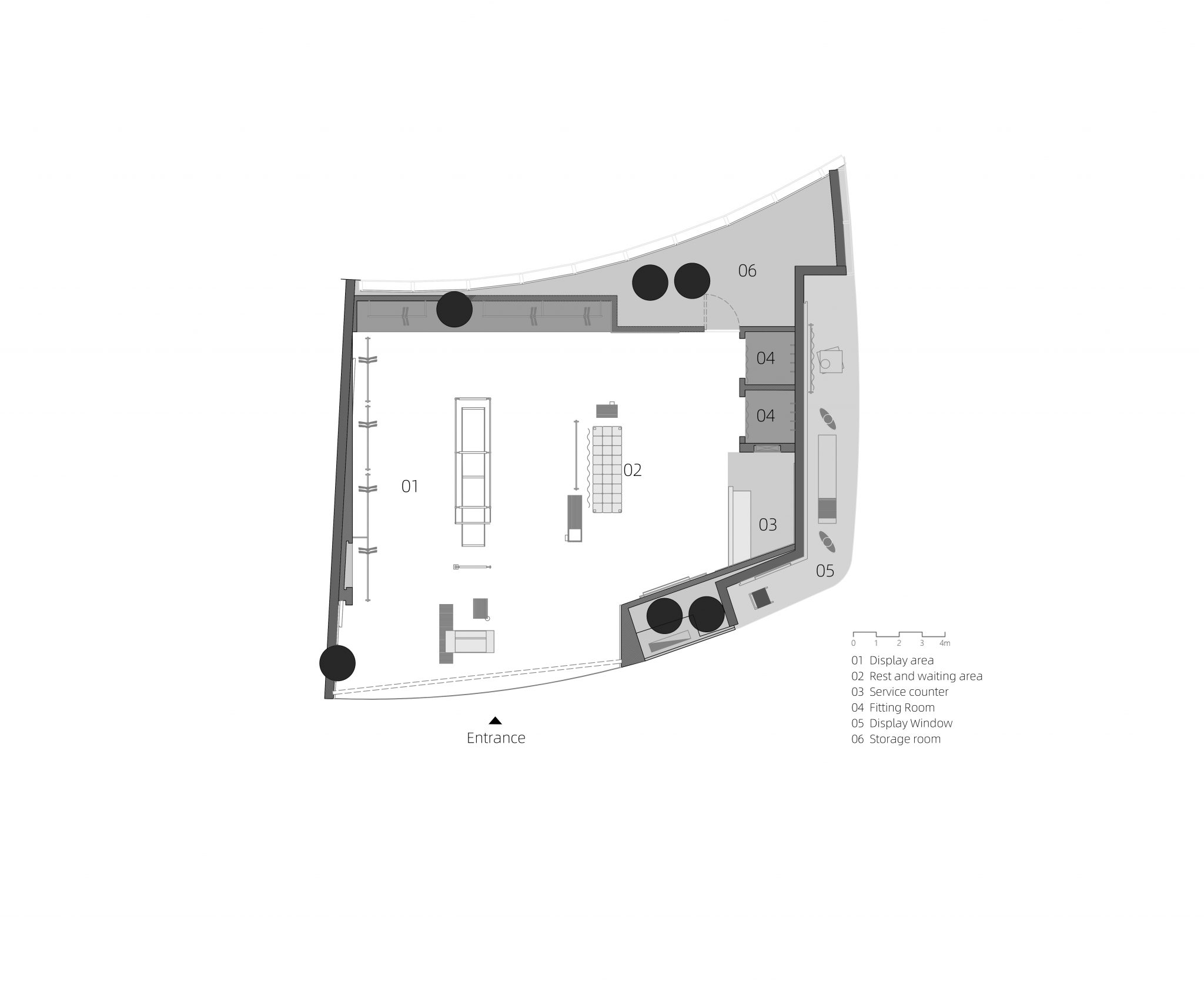
▼新店(A店)平面图

▼新店(B店)平面图

▼不同材料在空间中的虚实关系





而负型之外的销售展示部分则以岛台为中心,形成环绕型的动线。中岛的展示道具利用绳索,不锈钢板与金属织网等现代工业材料,以抽象化的方式转译传统织布机与纱帘。暗喻服装纺织行业从传统的手工制造业到现在的工业化生产,再到智能制造的过程。
▼B店织布机装置细部


而构成空间展售最主要的道具陈列系统,除了与墙体必要的固定衔接外,均独立于硬装系统外。正型空间内的道具可根据店铺大小移动搭配,结合了挂杆和展台双重功能,且完全通过场外制作,场内拼装来实现,这极大地减少了硬装与道具衔接上误差和施工时间,同时也给空间主视觉装置道具提供更大的发挥和拓展空间。
▼B店织布机装置

▼B店织布机装置成划分空间的元素

▼B店织布机装置细部

▼B店空间

在新形象店的场地条件中,四面墙体并非完全方正,且场地中有较大的柱子。为应对这样的地条件,新砌墙体需尽可能将空间重新规整:入口左边的斜墙通过规整后,能与空间其他墙面达成方正空间,而原始墙面的斜角,也通过穿插在新筑墙体上的金属板体块被暗示出来。底部原始较大的圆柱,通过墙体的退让,以最原始裸露的状态直接呈现在挂衣服的壁龛中。
▼利用原有混凝土柱子所构成的壁龛陈列区域

▼不同材料与道具在空间中的虚实关系

天花采用吊挂安装的标准化铝方通格栅,并在分缝中暗藏射灯导轨,这一做法在保证整体空间形象统一的前提下,直接为业主省去了改消防和空调系统的费用和时间成本。
▼道具细节




基于新SI设计的新店,只用了22天便施工完成并开业,这为后续品牌的高效发展提供了可持续的空间操作方法。更重要的是,这样的空间模型是可以复制和拓展的。在新店一店后,我们将这套SI系统应用到200㎡的制店中,并在其中实现空间零件的升级替换。
▼利用原有混凝土柱子所构成的壁龛陈列区域

项目名称:LIULIU MO服装全新形象店
项目类型:商业空间设计、零售店设计、概念店设计、服装店设计、SI设计、装置设计、陈列道具设计
项目地址:中国 · 广州
客户:LIULIU MO
室内设计:加减智库设计事务所
主创及设计团队:曾喆、胡彦、赵炜昊、林泳君、林倩茹、林冕仕
建成年份:2022.12.21
材料:不锈钢、艺术涂料、铝材格栅、金属网垂帘、 水泥地砖
摄影版权:曾喆
感写观览、登录灵感LAB账号、点击文章顶部?可收藏案例
更多该设计公司案例,请点击 → 加减智库设计事务所
©非特殊说明,文章版权归原作者所有
编辑版权©灵感LAB,欢迎转发,禁止以灵感LAB编辑版本进行任何形式转载

关注公众号

关注抖音号