项目由一栋园区内的老厂房三层改造而成。在有限预算的控制下,能改动的地方不多,限制条件颇大。







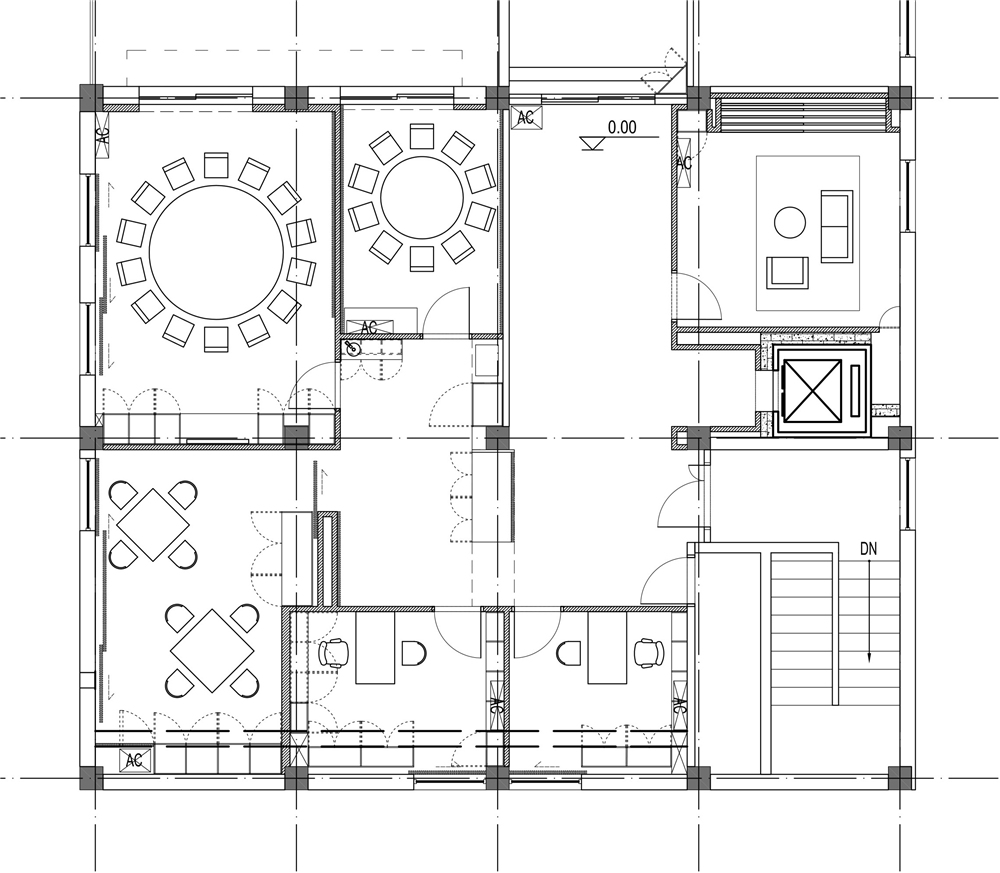
在初步的空间布局确立后,空间品质塑造的第一个难题,就是入口玄关的方向性问题。在进入正面后的第一个玄关空间处于整个空间的十字中心地带,但由于下方的两个临窗办公室的封闭空间,在空间观感上,是一个类似转角的方向性空间,即向左进入餐厅娱乐室的方向和向上进入画廊VIP室的方向。






从空间的大小来看,向上进入画廊VIP的方向更具有主导性。但由于大部分访客的目的地是餐厅和娱乐室。这就需要从设计上来重新平衡这两个方向的主次关系。
在进入餐厅方向,用了一系列层叠的格栅墙体,格栅门来强化丰富视觉变化,让空间更有动态的表现,格栅的运用让人在移动过程中,视觉有种动态的错觉,以达到占据感官的目的,从而让观者在不自觉中,走入餐厅区域,而忽视向上的画廊区域。而画廊区域绿色的冷色调墙面也和餐厅分为形成一个较大的反差,与画廊尽端户外的花园形成一个悬置的呼应。







除此之外,格栅和橱柜结合也在不同的区域产生不同的变化效果,如落地窗的采光控制,不同开门与空间主次关系的层级控制。在这基础之上,又把灯槽的设计纳入这个层级体系之中。灯槽的联通关系,也成为了暗示这个空间连贯与断开的线索。
▼平面图

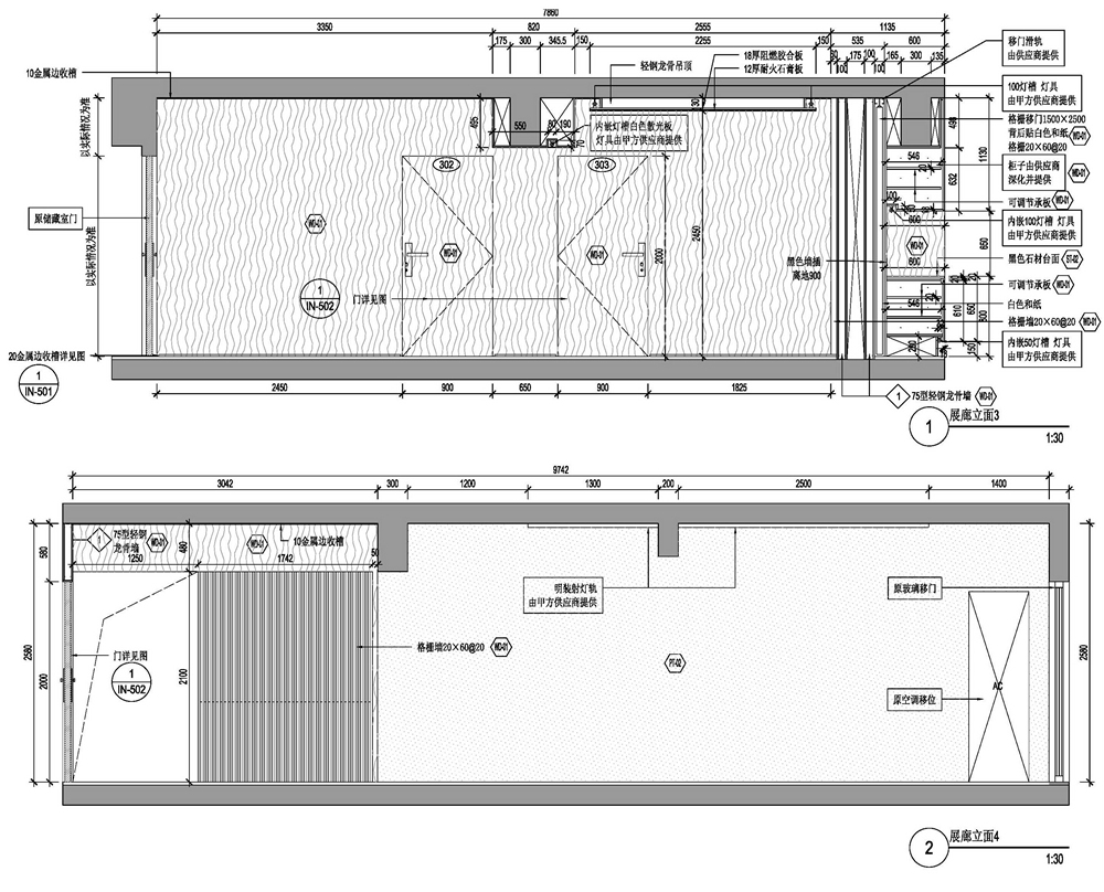
▼立面图

项目名称:右行艺术空间会所
项目类型:商业空间设计、文化空间设计、会所设计、展览空间设计、画廊设计、空间改造设计、厂房改造设计、餐饮空间设计、复合餐厅设计
项目地址:中国 · 上海
客户:上海嘉微文化传播有限公司(右行文化艺术中心)
室内设计:本义建筑设计
主创及设计团队:刘广轩、杨璐嘉、叶欧徵宸
建筑面积:201㎡
建成年份:2021年
材料:涂料、木地板、木饰面、铝饰面格栅、人造石台面、石膏板钢
摄影版权:TIANQUAN
感写观览、登录灵感LAB账号、点击文章顶部?可收藏案例
更多该设计公司案例,请点击 → 本义建筑设计
©非特殊说明,文章版权归原作者所有
编辑版权©灵感LAB,欢迎转发,禁止以灵感LAB编辑版本进行任何形式转载

关注公众号

关注抖音号