Parconido是一家位于京畿道北部的面包店咖啡馆设计,类似于在欧洲看到的广场。用基本的材料和简单的形状创建的咖啡馆,呈现出一个一致的空间,其中空间、家具和照明的设计都是为了创造一个统一的氛围。

根据 “sukchulmok “的精神,即空间应该与用户相似,我们想捕捉到我们的客户在意大利生活了很长时间的环境。然而,我们想给它一个身份,作为一种敬意而不是复制,但我们也希望它不是直观的。这家咖啡馆的开始是看到一个广场,在一个阳光明媚的日子里,人们挤在一起在红砖建筑和石柱之间交谈。堆积很多层,一个一个地贴着。


到处涌动的柱子和露天的圆形墙壁将空间包裹起来。虽然墙壁和柱子有不同的形状,但它们的半径都是600毫米。通过这一规则创造的空间作为一个很好的参考点,完成了一个统一的感觉,而又不显得单调。它们是由无孔的粘土砖堆砌而成的。砖头也被切去三分之二的厚度,像皮肤一样涂在铁架上以减轻负荷。


以完美的圆形制造的家具以各种形式适当地融入空间,如混凝土铸件、与木材的结合、以及重叠的圆形管道。它们也突出了圆形空间,而自己却不显眼。


适用于欧洲广场喷泉的洞石石灰岩被切割成1.5毫米*1.5毫米的碎片,设计成覆盖房间的地板、墙壁和天花板。室内空间的角度被卷成圆形,使每一面的边界变得模糊,给人一种扩大的错觉。(它们的半径也有600毫米。)这个空间甚至使主体突出,有一种失重的感觉。瞌睡中的点头。












红砖、洞石和木材。三种材料的混合创造了一个温暖色调的空间。视觉上的温暖空间降低了人的警惕性,甚至给人一种平静的感觉。这个地方的标志描绘了一只在巢中打瞌睡的小鸟。它的建造是希望游客能放下生活中的烦恼,享受轻松的心情。鸟巢代表了从新生命诞生到独立所提供的舒适家园。这是一个比喻,代表了品牌与客户挑战新业务的开始。
▼细节


▼建筑鸟瞰



2022年完工,咖啡馆准备在新家通过烘烤自己的产品来写下自己的历史。我们希望游客能用美丽和美味的回忆来记住这家咖啡馆。”这个空间里使用的照明和家具都是第一手设计和生产的物品”
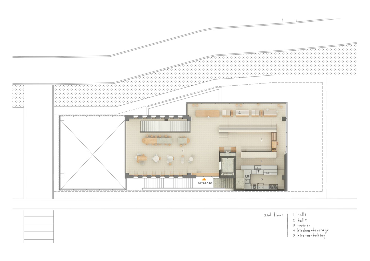
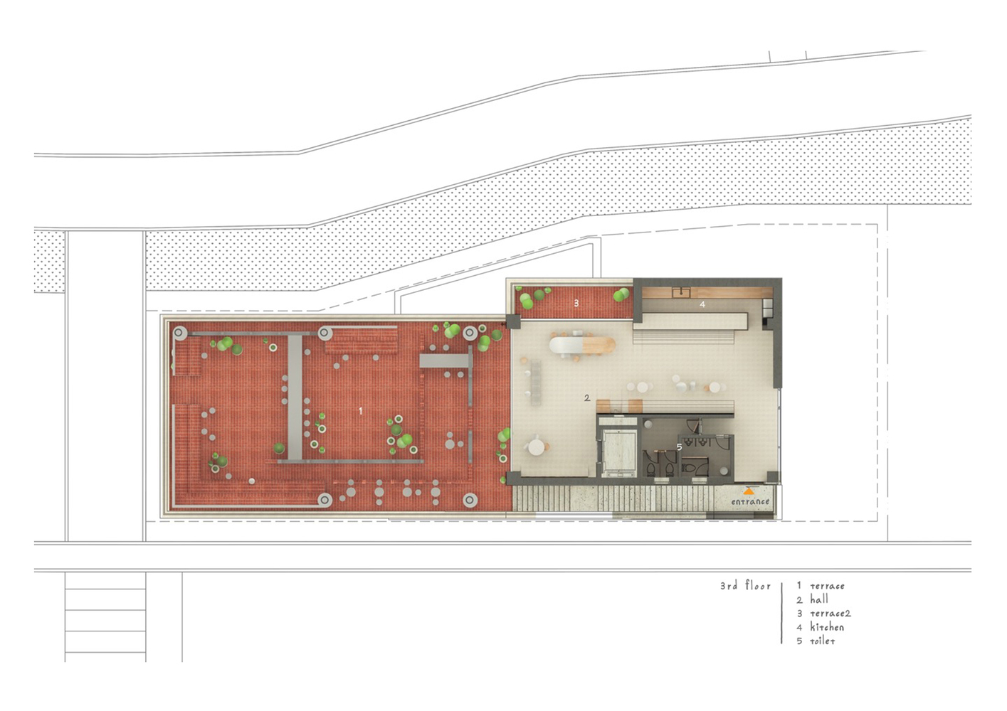
▼平面图



项目名称:Parconido Bakery咖啡店
项目类型:餐饮空间设计、网红餐厅设计、咖啡厅设计、甜品店设计、面包店设计、露台设计、露台咖啡、门头设计
项目地址:韩国 · 高阳
室内设计:sukchulmok
建筑面积:630㎡
建成年份:2022年
材料:红砖、洞石、木材、马赛克、混凝土
摄影版权:Hong Seokgyu
感写观览、登录灵感LAB账号、点击文章顶部🤍可收藏案例
更多该设计公司案例,请点击 → sukchulmok
©非特殊说明,文章版权归原作者所有
编辑版权©灵感LAB,欢迎转发,禁止以灵感LAB编辑版本进行任何形式转载

关注公众号

关注抖音号

Harudot By Nana 咖啡烘焙店 · 泰国 | IDIN Architects

「BA」新法式烘焙 品牌空间设计 · 重庆 | 勉强设计事务所

爱乐信糖水局 OI-LOK-SHUN BUREAU·佛山 | 广州韶康室内设计有限公司

CHOUCHOU面包店 · 广州 | 几何形态设计

EUEU餐饮店 · 广东惠州 | SORA索拉设计

Holiland Travel – 好利来超时空旅行旗舰店设计·上海 | SLT