在东三里屯,有片院子叫“北京联合大学机电学院”,也就是现在的“机电院”,它的前身是京师督学局于1907年创办的“京师初等工业学堂”。现在,大家习惯叫它“三里屯机电院”。
不同于以往的单纯销售,在未来线下社区型集合商业模式中,各种业态将会以不同形式的嫁接完成“新零售体验店”的转型,相互成为展示性的“橱窗”和进行体验和消费的场所。本案内,大观在三里屯的这块隐藏地图里改造一处包含美发沙龙功能的有趣咖啡酒吧。
▼项目概览

▼修旧如旧的外立面

三里屯就像空降到北京的一个岛屿,笼罩着富有异域感的人造气泡。这里可能有着北京最长最嘈杂的夜晚,人潮如织,攘往熙来,而一个没有沿街展面的“机电院儿”却形成了独有的松弛氛围。我们基于保留原生场地的历史记忆的同时,挖掘场域精神。正如不同分子撞击形成新的化合物,将美发沙龙与日咖夜酒结合,融于三里屯板块的多元语境中。在隔层上空穿插体块搭建,规划出了上下层不同的功能形态,同时预先策划未来空间的运作内容、兼顾了商业体的引流。
▼室内结构穿插分析图


这栋建筑从建成以来就开始自由的变化生长,跟随着这里的住户和时代的变迁不断变化着,留下的都是不可复制且无法再现的记忆,在建筑沿街面明确原生框架与可改造部分后,首先将原有砖混结构体系的驳旧墙体形态加以优化,缝合具有大院时代记忆的立面肌理,让新旧互为共生:双方因为彼此的存在而使价值得到了提升,最终形成一种可识别的区域ip,共同组成一块城市拼图。
▼外立面细部

▼从外部进入咖啡馆

设计围绕着美发沙龙与咖啡空间的结合延伸,基本策略是把三块原始独立空间经过墙体拆解与阶梯轨道嵌合完成包含多个商业形式层次的集合体。通过不同层次阶梯的形式将一楼与二楼串联、时间和空间交错穿插使用让客群有的一定重叠和互换,从而形成一条完整的游走动线,在有限的空间场地里制造趣味性的空间视觉与体验感。挑空一方面延伸了室内空间的“视野中心”,另一方面作为上层客座区动线轨迹指向不同业态经营。与此同时我们也将整个空间的动线重新进行了梳理,让空间的到达性及目的性更强。
▼动线分析图

▼从美发沙龙二层向下查看空间穿插

基于重新规划后的空间架构,室内呈现出环状的空间结构:二层中央区域为岛式空间,通过打开局部通道,形成多个出入口。我们用一层朦胧的聚碳酸酯板幕墙表皮将业态独立,避免由于隔绝而造成的闭塞感与单调性。将场域气氛置入某个高精度的实验工厂,机械组件暗示着标准化与自动化技术的进步,通过艺术的表达将挑高的橙色轨道传送带作为展示的场景单元。
▼从美发沙龙二层向下看向工作区域

人工照明的设计采取投射灯为主的表现方法,铝制工业顶灯引导灯光照明,以线性的形态穿梭其内,形成隔一墙一线即变化的多重感官体验。金属材质的拼接和延伸为空间带来的流动感、释放沉静稳定的情绪。相对空间上部的明亮和通透性,一楼咖啡吧台则更多是随性与秩序微妙。空间由此产生一种垂直性,一种上下关系的明确呼应。
▼二层客座区细部

▼通过阶梯的嵌合将一楼与二楼串联


位于首层入口处的吧台壁面饰以大量水泥混涂料,释出粗粝感强烈的冷性氛围。水磨石、不锈钢和铝板的重复利用,让材料本身呈现原生风貌。靠近街廓的区域,利用桌角的局部退让,让光线可以经由设计后的角度进入空间。相对空间上部的明亮和通透性,吧台则更多是随性与秩序微妙。空间由此产生一种垂直性,一种上下关系的明确呼应。
▼吧台释出粗粝感强烈的冷性氛围

▼吧台细部

▼一层客座区细部


这是大观首次尝试参与设计与餐饮之外的业态兼容经营,一切空间设计都围绕着对场景的体验,我们相信空间不仅是一个物理环境的呈现,在尝试更多未知的经营命题后才能挖掘出更多商业空间设计的可能性。我们创造的空间同时也在创造体验,相辅相成。
▼夜间酒吧的欢愉一刻

▼橙色环形传送装置细部



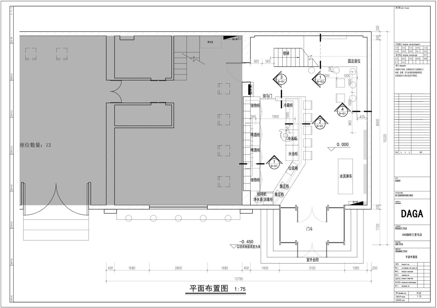
▼首层平面图

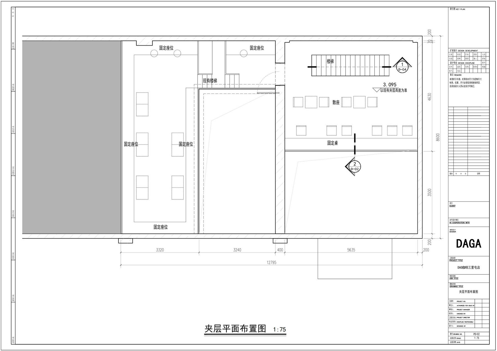
▼夹层平面图

项目名称:轻改造嵌入美发厅的咖啡酒吧
项目类型:咖啡厅设计、理发店设计、酒吧设计、复合空间设计、酒吧SI空间设计、陈列道具设计、
项目地址:北京
室内设计:DAGA Architects大观建筑设计
主创及设计团队:申江海,康靖雯, 韦娜,王立枫
建筑面积:240㎡
设计年份:2022.08-2022.10
建成年份:2022.10-2022.12
文案版权:滕天怡
摄影版权:UK STUDIO©UK STUDIO
感写观览、登录灵感LAB账号、点击文章顶部?可收藏案例
更多该设计公司案例,请点击 → DAGA Architects大观建筑设计
编辑版权©灵感LAB,欢迎转发,禁止以灵感LAB编辑版本进行任何形式转载

关注公众号

关注抖音号

nice rice好饭上海旗舰店 · 上海 | say architects

Tomacado花厨 · 杭州 | 梁筑设计事务所

「阿喜茶楼」喜茶广州LAB店 · 广东 | 立品设计

未来味觉食验室 · 北京 | 与生建筑设计

SUJIAN-万塘治茶 · 杭州 | 杭州观堂室内设计有限公司

TARENTUM萄木L’Opéra希腊餐厅酒吧 · 深圳 | ATELIER XU建筑事务所