连接——传递审美价值 连接日常喜悦 | Connection – conveying aesthetic value and connecting daily joy
社区店是设计师及品牌价值观的物质表达,我们希望在社区营造一个有美感的温暖界面,通过这个界面实现人们的来往与交流;用细腻的材料让人们感受到烤面包般的真实和温度,重新探讨并实践出一种社区门店的可能。
▼店铺外观

对空间不是去占据,而是去选择。原始店铺是一个面宽不大的深长空间,排除直接将门脸推到最外面的常规做法,选择内退出一个外摆空间,用双层空间的语言将空间重新包裹。外部的座位设置为可供休息的街边花园,让路人可以无负担地靠近和休憩。
▼入口

▼外部的座位设置

借用曲线将就坐区域做了内外区分,对内围合出更加舒适私密的围坐区域,而新表皮的弧线也给内外互视提供了不一样的视窗。
▼卡座区


通过流线规划,设计出一条顺畅的曲线服务动线,同时在尽端将烘焙与甜品对外展示,强化顾客与制作者之间的交流。通过气孔特意将烘焙间的香气导入室内,让顾客进入店铺的瞬间五感便被面包的气息充满。

▼座椅区与吧台

▼吧台

▼在尽端将烘焙与甜品对外展示

叙事——生长的形态 | Narrative – the form of growth
由品牌LOGO衍生的泡泡相互碰撞,交融,再重塑,定格成吧台和天花的曲线,如正在发酵的面团,等待着无限的可能。
▼品牌LOGO

空调设备和灯光都干净地处理在天花造型内,剥离一切多余的表达,几道曲线于空间形成强有力的视觉张力,定义出空间的流转,构筑着确定的不确定。
▼天花

▼几道曲线于空间形成强有力的视觉张力

▼灯架

与空间相应,选取的都是拥有自然生命痕迹的材料,会随时间慢慢发生有趣的变化,如同面包在烘焙制作过程里的温度及颜色变化;水刷石有着丰富的触感,是初碰时的坚硬,其间的小石子和孔隙则是谷物颗粒以及酵母发酵时的呼吸,又是充满健康气息的柔软。
▼自然生命痕迹的材料


▼材料纹理和质感

惊喜——是未知的 某处惊喜 | Surprise – is an unknown surprise
保证表达的纯粹性之外,我们在空间也埋下了一些供顾客慢慢发现的品牌小线索。
▼自助吧台和椅子


▼家具道具






▼分析图

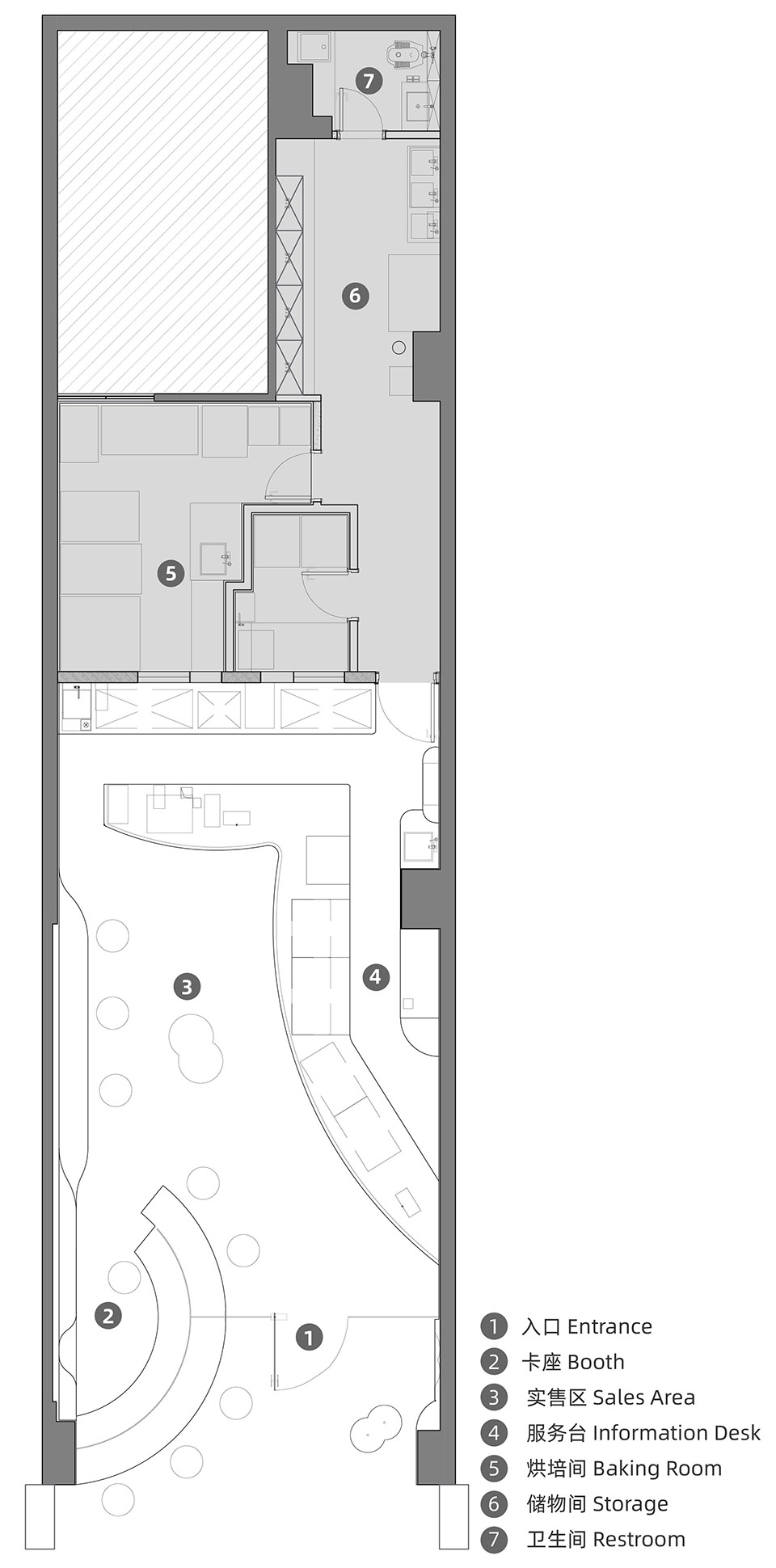
▼平面图

▼立面图

▼剖面图

项目名称:物质烘培
项目类型:餐饮空间设计、甜品店设计、陈列道具设计、门头设计
项目地址:中国 · 深圳
客户:物质烘培
室内设计:Ruhaus Studio如室建筑设计事务所
主创及设计团队:王艺儒、朱丹丹、许丹琳、苏玉梅、左晨阳
建筑面积:110㎡
设计年份:2022.10
建成年份:2023.01
合作方:东道装饰
摄影版权:夏同
品牌:Format
感写观览、登录灵感LAB账号、点击文章顶部?可收藏案例
更多该设计公司案例,请点击 → Ruhaus Studio如室建筑设计事务所
编辑版权©灵感LAB,欢迎转发,禁止以灵感LAB编辑版本进行任何形式转载

关注公众号

关注抖音号

Harudot By Nana 咖啡烘焙店 · 泰国 | IDIN Architects

「BA」新法式烘焙 品牌空间设计 · 重庆 | 勉强设计事务所

CHOUCHOU面包店 · 广州 | 几何形态设计

EUEU餐饮店 · 广东惠州 | SORA索拉设计

爱乐信糖水局 OI-LOK-SHUN BUREAU·佛山 | 广州韶康室内设计有限公司

Holiland Travel – 好利来超时空旅行旗舰店设计·上海 | SLT