空间场力概念 | The concept of spatial force
该项目是RAYONE摄影工作室新的办公场所。栖斯希望通过一种设计手段加强RAYONE的品牌特征:丰富多变而有力。当基本的空间结构确定后,栖斯用一种客观存在的外力来控制空间形态的生成,而非通常的几何范式。这种力我们称之为“空间场力”。
▼功能区与拍摄区空间

功能需求、场地条件,使用者的欲求、外界约束等均会产生各种空间场力。场力的权重、方向、力之间的相互作用是我们关注的重点。场力引导设计者进行具像的表达。设计者的主观意识也参杂于其中。空间被折叠、旋转、倾斜……最终形成了与外力相互制衡的有机形态。空间因而具备了超常规的丰富性和纯粹的力量感。
▼前厅空间

空间结构的确立 | Establishment of spatial Structure
在功能布局上,拍摄区与功能区分置于场地两侧。内部办公空间与拍摄辅助空间集中布置在一个二层体量的盒子内。盒子内的各个空间顺应功能、流线需求以及场地的原始形态。我们在设计之初便确立了基本空间结构。
▼场地轴测图

外立面形态对空间场力的回应 | The response of facade form to spatial force
项目场地位于建筑的顶层,一侧与室外走廊相邻。场地两侧分别是露台和电梯厅。立面形体朝向人流来向的展示欲、入口对开放性的欲求、内外界面的对抗力等综合作用于立面形态。最终生成具有鲜明特征的外观形象。
▼外立面形态受力分析与形态生成

▼入口外观

▼将场地延伸至室外的吧台休息区

功能区立面形态对空间场力的回应 | The response of facade form of function area to spatial force
从拍摄区看向功能区,二层的体量拥有建筑似的外观。立面上的褶皱是对空间场力的微妙回应。
▼功能区立面形态受力分析与形态生成

▼功能区外观

▼功能区细节

前厅空间形态对空间场力的回应 | The response of the entrance hall space form to the spatial force
前厅空间是几处空间场力交汇之地。是一处典型的场力塑形空间。来自楼梯间、办公休息区、独立办公室等场力将前厅塑造成一个接近锥体的空间。上小下大的空间形态扩张了空间的尺度。灯柱是Ray(光线、射线)的隐喻,并为空间提供主要的光源。垂直的灯柱充当了空间的参照,倾斜的墙体得以更清晰的表达。加强了人对空间形态的体验。
▼前厅空间形态受力分析与形态生成

▼前厅空间与楼梯间

▼楼梯间与入口空间制衡后的斜墙

▼楼梯间

▼办公休息区看向入口区域

通道空间形态对空间场力的回应 | The response of channel space form to spatial force
▼通道空间形态受力分析与形态生成

▼前厅看向拍摄区

▼通道细节

▼拍摄区看向前厅

办公桌形态对空间场力的回应 | The response of desk form to spatial force
RAYONE 内部办公分为三个部门,每个部门有两人。RAYONE提出了两两一组的工位布置需求。在有限的空间内如何实现既紧凑又分离的状态是办公区的设计重点。
▼开敞办公桌形态受力分析与形态生成

▼办公区入口看向内部

▼开敞办公、休息区、会议室的关系

▼开敞办公桌概览

▼开敞办公区看向休息区

▼开敞办公区看向独立办公室

▼独立办公室看向景观区

景观区形态对空间场力的回应 | The response of landscape area form to spatial force
景观区与前厅制衡中形成了下小上大的倒锥形空间。内部布置绿植与灯柱,形成办公室的借景。瓦楞玻璃模糊了景观区的空间形态。办公室的视觉感受得以延伸。
▼景观区细节

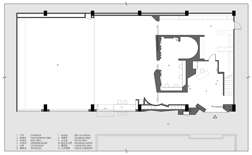
▼一层平面图

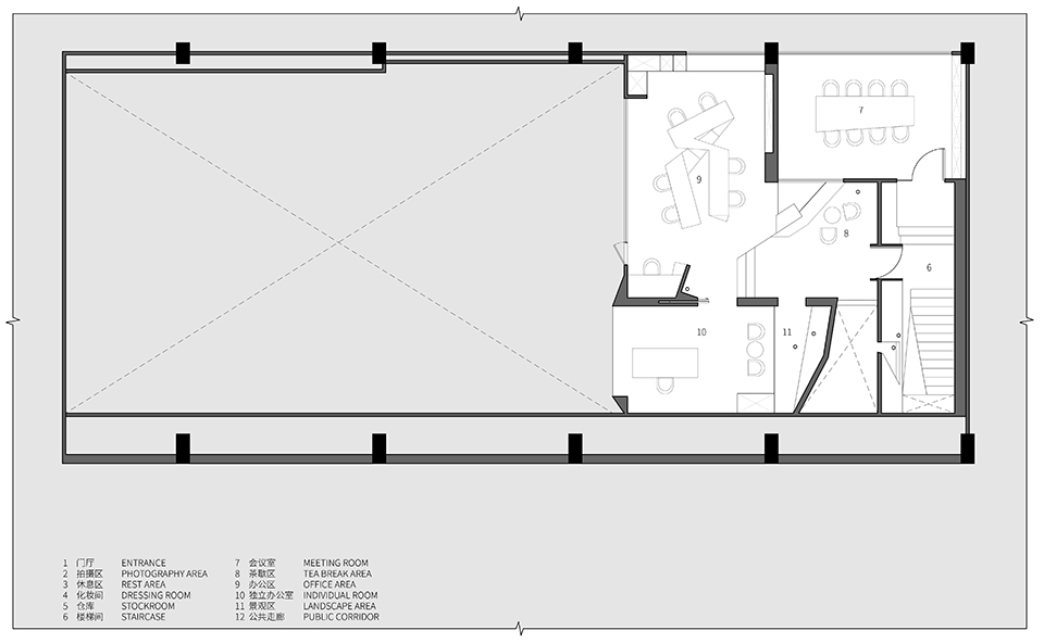
▼二层平面图

项目名称:RAYONE摄影艺术工作室
项目类型:摄影工作室设计、工作室设计、摄影工作室SI空间设计、摄影基地设计
项目地址:上海市宝山区真大路560号
客户:RAYONE摄影工作室
室内设计:栖斯设计
主创及设计团队:主创:陈茜茜、傅翀、单仁杰
施工方:雷蛇装饰
建筑面积:340㎡
设计年份/建成年份:2022.3-2022.10
材料:水泥漆
摄影版权:吕晓斌
感写观览、登录灵感LAB账号、点击文章顶部?可收藏案例
更多该设计公司案例,请点击 → 栖斯设计
编辑版权©灵感LAB,欢迎转发,禁止以灵感LAB编辑版本进行任何形式转载

关注公众号

关注抖音号

Google谷歌开放式办公空间·美国 | ZGF Architects

ZMAN 拙人上海OFFICE · 上海 | 拙人营造

律师事务所总部 · 西班牙巴塞罗那 | Jorge Vidal Studio

“UTTER SPACE柳宗源”摄影艺术工作室·北京 | CUN寸DESIGN

北京知吾设计工作室室内设计 · 北京 | 知吾设计

MASONPRINCE灵感办公基地 · 深圳 |