造园,一直以来都代表着人们对理想人居环境的追求。本项目紧贴花艺工作室生产和对外展示的功能定位,以造园理念为花艺工作者提供一个创造美的必要条件。内外空间相互渗透,并以统一的建筑语言,使室内外空间与景观有机融合。打造一个静谧而又生机盎然的梦幻“花”园。

“花”——寓意着美好和生机。作为花艺工作室,这个单纯美好的小庭院位于北京大兴区红星光源工业园区内,由一处旧厂房改造而成。自由流动的曲面玻璃砖墙将室内外串联,这种连贯的建筑语言将客人由入口拱门引入,或走入室内,或盘桓于庭院,享受一片宁静。
功能 | Functions
项目功能分为内外两区:外区由280平米的工作间和180平米的景观庭院组成。满足对外展示、销售、客人休憩的营业功能,以及花艺制作和储存的生产功能。
▼改造前

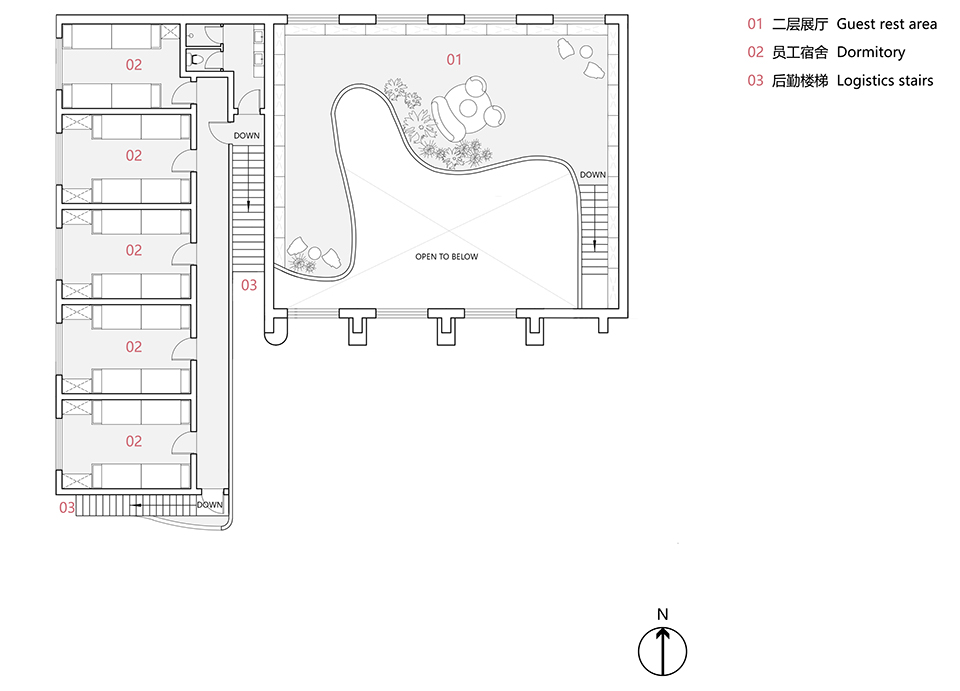
内区总面积370平米,分上下两层,用于后勤办公和员工住宿。项目在满足自身对外销售和展示的前提下,也为品牌旗下其他店铺提供后勤支持。
▼功能分区示意

造园 | Garden Landscape
庭院中心保留原有的两棵圆柏,围绕圆柏,在人体视线高度范围内种以观赏性较高的蓝雪,形成一个茂盛蓬勃的景观中心。一面7米高玻璃与红砖组合的墙面作为庭院端景,将展示区与后勤区进行划分。景观水面将这一切融化在朦胧倒影中,洗涤外界烦嚣,灵动了整个庭院。


景观选用蒙古栎、白桦等北方特色乔木映衬砖墙,则传达一股清冽而又饱满的,专属于北方大地的生命力。自由流动的曲面砖墙将客人由入口拱门引入。




一面7米高玻璃与红砖组合的墙面作为庭院端景。建筑与景观一起形成一个静谧而又生机盎然的梦幻“花”园。隐藏于主厅后侧的是员工日常办公通道。景观水面将周围的繁茂融化在朦胧倒影中,灵动了整个庭院。


室内 | Interior
主厅承担对外销售及花艺制作的功能。设计将原有窗洞扩大,形成三大落地窗,不仅使室内花材获得充足的阳光,提供明媚的展示空间,还能够把室内多彩绚丽的鲜花能映射到室外,与室外生机勃勃的庭院景观相互映衬、相得益彰。




两层通高的玻璃花墙使顾客可以任意游走于各式鲜花前采购和拍照,诠释只和花“鲜花超市“的品牌定位。二层为绿植展和顾客休息区,客人可在绿意中俯瞰鲜花制作的过程。

材料和技术 | Materials and Technology
晶莹的水波纹玻璃砖与坚实的红砖组合,利用梯形截面砖结合错峰砌筑法实现砖墙的曲面化,实现室内外空间的连贯与流动。


为保障展示花材的日常保鲜,设计利用双层墙体制造空腔冷却系统。对空腔输入冷气后,经由腔体导入各个花筒,通过花筒背后的冷气孔,精准冷却桶内鲜花。花墙后侧则为低温冷藏库房,以供更长期存放。
▼空腔冷却系统分析

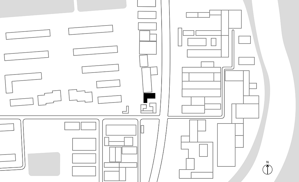
▼场地平面图

▼底层平面图

▼二层平面图

项目名称:只园-只和花花艺工作室
项目类型:商业建筑设计、商店建筑设计、办公建筑设计、工作室建筑设计、花艺工作室设计、建筑改造设计、老建筑改造设计、景观设计、庭院景观设计、花店设计
项目地址:中国 · 北京
客户:只和花
建筑设计/景观设计/室内设计:方未建筑
主创及设计团队:何威、严然、徐琳、张晓峰、李禹希、Ana Cristina Goncalves do Carmo、徐振
建筑面积:640㎡
设计年份:2020年-2022年
摄影版权:朱雨蒙
感写观览、点击文章顶部?可收藏案例
更多该设计公司案例,请点击 → 方未建筑
编辑版权©灵感LAB,欢迎转发,禁止以灵感LAB编辑版本进行任何形式转载

关注公众号

关注抖音号