项目位于北京朝阳区,套内面积56平。希望破除空间盒子的僵硬定义,模糊空间中的界限与分隔。借鉴江南园林的设计手法,从需求出发进行空间延展,如同不断展开的盒子,区别于外界的绝对的状态,营造让使用者可以放松的生活的模糊感。

生长的曲线 | S-shaped Walls
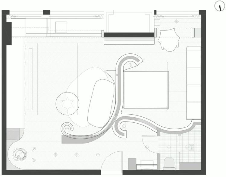
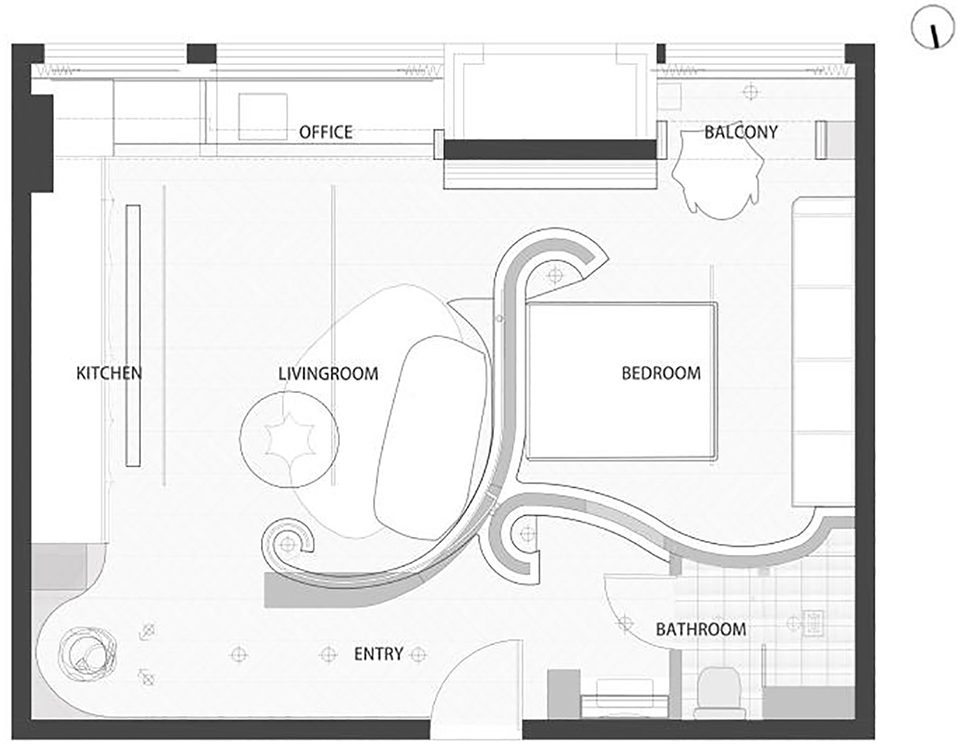
本案在空间中生长两个S型曲线用来构筑墙体,完成了对空间的基本分割,最终实现整屋建立起秩序,事物各就其位。

曲线墙体的位置走向是依据现有情况和各功能空间的需求进行生长,其凹与凸都是服务于具体功能需求,将壁龛、首饰柜、床头柜、鞋柜、书架等功能集合到了曲线墙体内。



空间中只卫生间使用了封闭的门,其他空间均未有封闭的门,致使各个空间之间形成互相的渗透。除了功能上的集合以外,曲面墙的弧线走向还很好地起到了空间之间过渡的视觉引导作用。曲线墙本身既作为空间的分割边界,同时也是空间中的一部分。


景情营造 | Setting
整体空间动线围绕着曲线构筑墙体形成一个中心式洄游动线,用穿针引线的方式将各个功能空间进行串联并形成闭合回路。这样的动线组织可以实现行走路径的最小化和使用效率的最大化,可以不走回头路地轻松到达各个空间。空间回路被打通了,进而就形成了无走动尽头的家,让行走在期间的人形成一种空间被放大了的错觉。

园林设计中很注重造景,《园冶》开篇“兴造论”有言:“园林巧于‘因’‘借’,精在‘体’‘宜’。本案在室内居室环境中也希望能够借鉴园林造景中的手法来营造一个可以游园的的家。


通过玄关就来到了由客厅、开放式厨房和书/餐桌组成的的复合空间,沙发放置于曲面墙构成的环抱空间,圆形茶几统领起整个空间,简洁和橱柜和窗户组成了主要的界面,宽敞明亮。


利用结构梁打造成Stoa式空间,最终形成三层拱形结构,强调视觉秩序,增加整个空间的景深,用绿植作为对景点缀。卧室阳台处光线投射进来,营造了古希腊式的拱廊氛围暗示空间的延展。

卧室空间的衣柜使用半透明亚克力材质,进行悬浮处理后仿佛是一面消失的衣柜,减少卧室空间的压迫感。 卫生间采用三分离,手盆外置,手盆上部的弧线从天花落下呼应了Stoa空间。



▼平面图

项目名称:屋有园
项目类型:住宅设计、公寓设计、小户型设计、精品住宅设计
项目地址:中国 · 北京
室内设计:北京逸刻室内设计有限公司
主创及设计团队:刘祖龙、衣辉乐、夏薏婷
建筑面积:56㎡
建成年份:2022.01
摄影版权:金伟琦
感写观览、点击文章顶部?可收藏案例
更多该设计公司案例,请点击 → 逸刻室内设计
编辑版权©灵感LAB,欢迎转发,禁止以灵感LAB编辑版本进行任何形式转载

关注公众号

关注抖音号