Tres Árboles住宅由建筑师Mariana Morale创立的事务所dıreccıon设计完成,是对墨西哥Valle de Bravo市的一座拥有25年历史的过时周末别墅的室内改造。设计的出发点源自屋主人的要求,即,为这所住宅重塑一个新的风格,使其能够满足更加日常的生活需求,同时保持其原本周末度假别墅的轻松氛围。

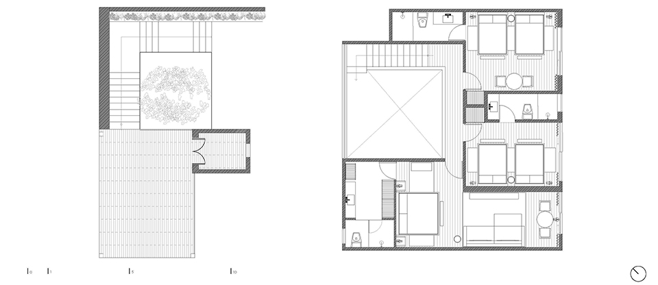
从位于街道层的停车场向下延伸的楼梯构成了住宅的主入口通道。楼梯台阶环绕在一棵美丽的大树周围,长满绿植的石质花盆将人们引向入口庭院。为了在入口处营造出整洁统一的空间氛围,设计师将原有的浴室以及倾斜的屋顶拆除,并在入口处建造了一个新的种植盆,配植了一系列天南星科植物、丁香、蓝蕨、山麦冬,以及达瓦利亚蕨。这些元素共同构成了主要室外门廊的设计。

▼入口庭院与室外楼梯


▼庭院

步入室内,通透明亮的双层通高门厅迎接着客人们的到来,顶部的玻璃高窗为整个门厅空间引入了充足的自然光线。宁静的氛围充盈着这个雕塑般的大厅,使其成为了居家休闲的理想场所。入口处大面积的玻璃也将花园中的大树景观引入室内之中。
▼门厅

▼由门厅看生活空间

▼Beatriz Zamora的黑色画作

一堵高墙将室内楼梯隐藏起来,在对面的墙上,Beatriz Zamora的黑色画作使空间的设计更加完整。地板的高差变化形成了自然的空间过渡,使门厅成为二楼私人空间与底层公共生活空间的衔接。
▼由生活空间看门厅

▼底层起居空间

▼客厅

▼餐厅

▼厨房



▼家具细部


设计的核心目标旨在为住宅塑造自然温暖的空间色调,营造出一种修道院庇护所般的隐居氛围。空间色调融合了元素的流动,每件作品和材料都经过精心地选择,进而创造出这所十分适于休息与冥想的宁静住宅。
▼修道院庇护所般的隐居氛围

▼室内楼梯隐藏在高墙之后



▼二层休息室

▼卧室


▼浴室


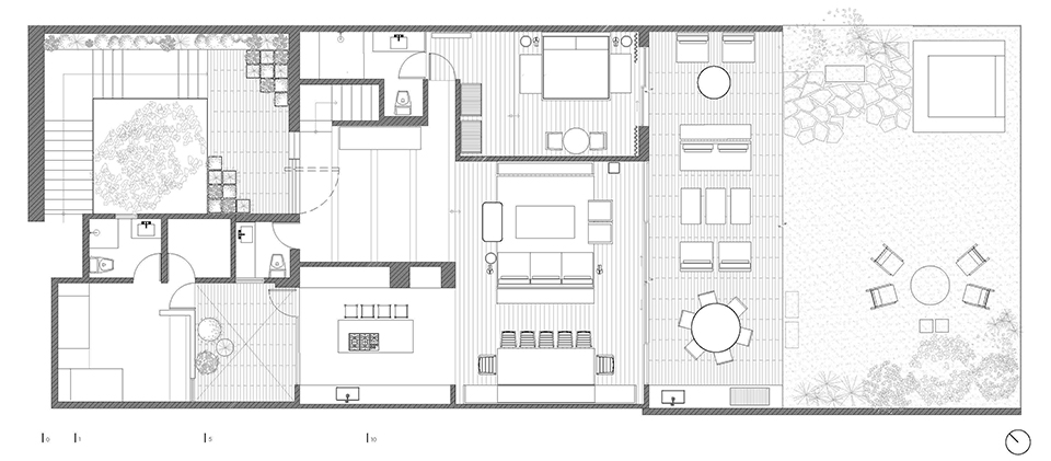
▼一层平面图

▼二层平面图

项目名称:Tres Árboles住宅
项目类型:住宅设计、精品住宅设计、别墅设计
项目地址:墨西哥
设计方:dıreccıon
场地面积:600㎡
建成年份:2021年
摄影版权:Fabian Martinez
感写观览、点击文章顶部?可收藏案例
更多该设计公司案例,请点击 → dıreccıon
编辑版权©灵感LAB,欢迎转发,禁止以灵感LAB编辑版本进行任何形式转载

关注公众号

关注抖音号