日常思绪总会将设计师带入智者所构建的,有关普世价值的造物“景观”之中,我们从中窥见场所,氛围,记忆的表现途径,感受到关于神秘性和仪式感的情绪张力。种种造物个案及现象似乎都指向人对其所在天地及时间的感知与本能反应。受造物景观的启发,设计师试图将这个转瞬即逝的会展场地雕刻成带有永恒感的空间装置,去汇聚能量,制造场地的可能性。


▼入口外观近景

设计策略 | DESIGN STRATEGY
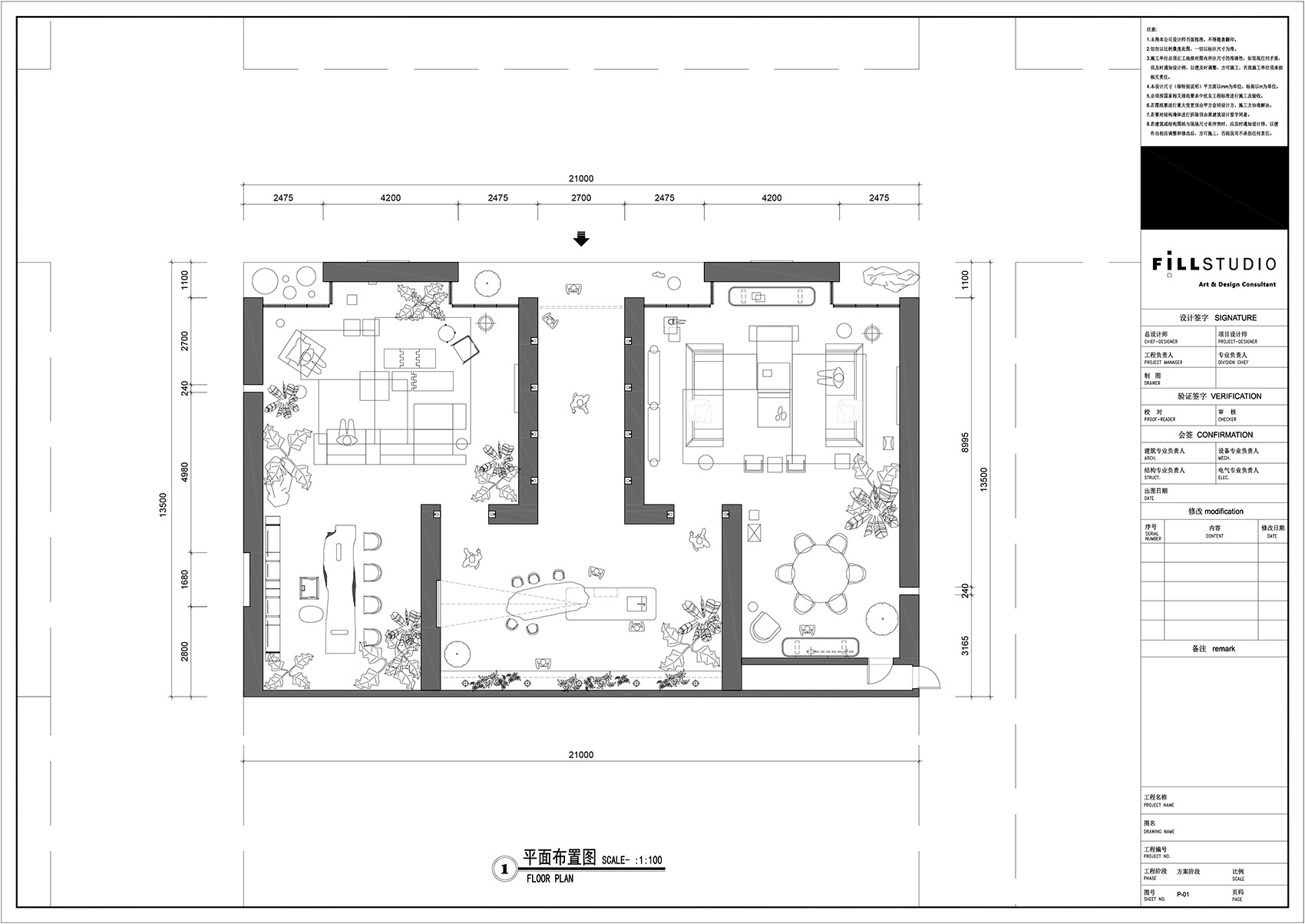
深圳时尚家居设计周SZCW展会主办方提供的是一块长21米宽14米比较方正的矩形场地,三面紧邻公共过道,设想它被拉伸一定高度便是一个立方体的形态。雕塑家擅长将方正或者异形的原材料经过雕刻磨砺赋予形体新的生命与意义,这给设计师提供一个视角,抛开惯用的空间设计手法,采用“雕塑”的方式去处理这个场地,植入功能进而完成MUUSA品牌的展示与推广。
▼平面构成

幽暗的意义 | THE MEANING OF DARKNESS
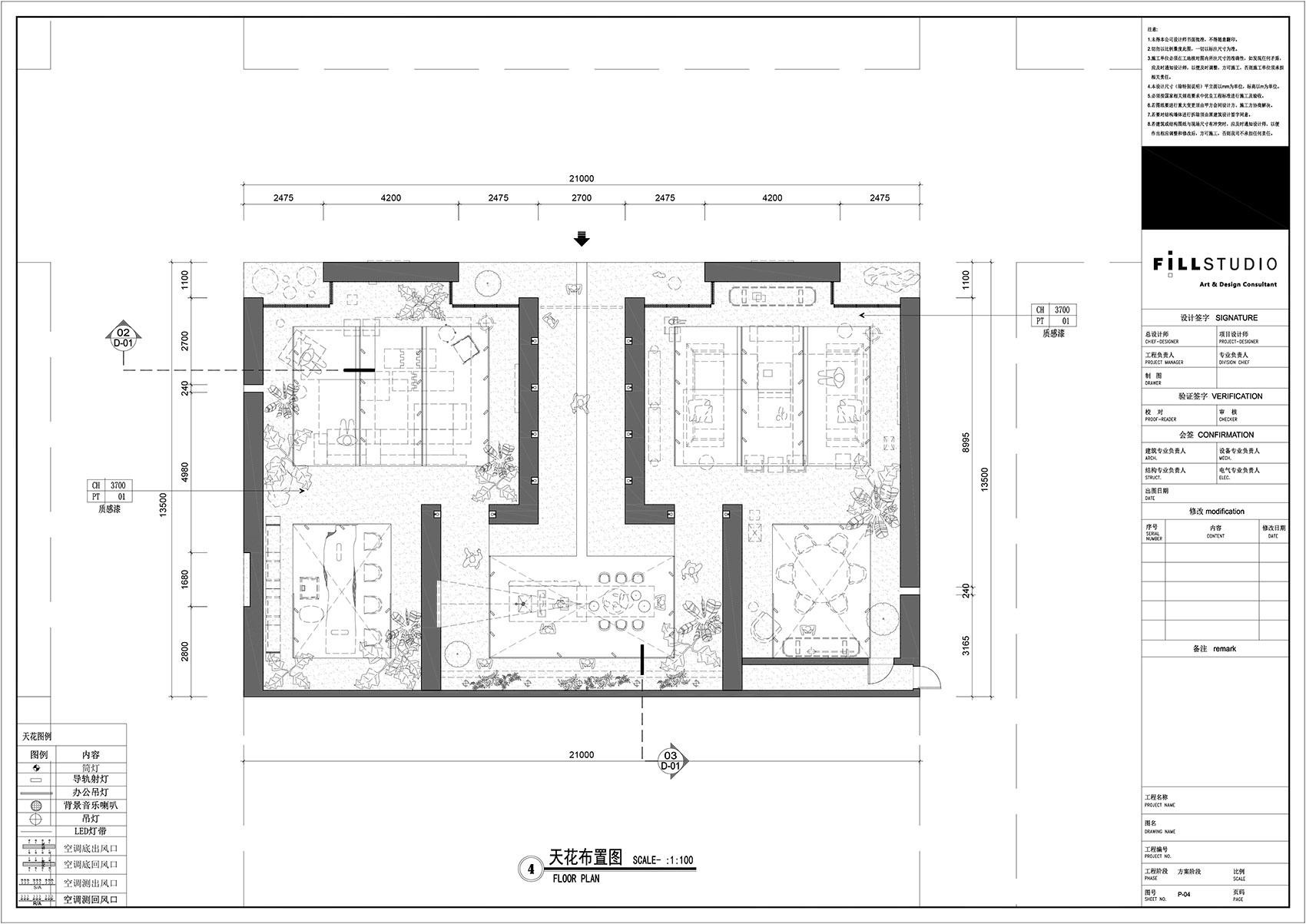
展馆的光环境由自然光和工程照明组成,它们混在一起形成一种失控混杂的光环境。设计师为扭转这种不利状况在通道上方天花形体中开了一条缝隙,使得环境光在这个狭长的通道中投下一道微弱的光线。两边对称分布的地脚灯不仅强调了过道的纵深感,还放慢抵达的节奏,幽暗静谧的过道与明亮的橱柜区形成强烈的反差,让进入的体验性得以加强。
▼入口走廊

▼由入口走廊看向内部空间

▼内部展示空间




自然材质 | NATURAL MATERIAL
在设计师看来,极简并非意味着形式,材质及色彩的技术上的统一,极简是一种经验视角,它可以打破简约与繁复的界限指向某种潜在的丰富性和包容性,在观念的干预下,一切视觉要素得以平衡,柔软地共存。
▼局部家居展示空间


在设计师看来,似乎有另一个没有物理刻度的“时间性”的存在,一些被无数讨论过的的字眼(如古典,未来,传统,当代)在本质上其实没有什么区别,“复古未来主义”这个重构词汇便可以把以上词组意涵都囊括在内。设计师精心挑选的风格各异的物件和饰品让场景极富趣味性,它们给参观的人提供了丰富的阅读性。对于此次展位的表达,从空间氛围到陈列设计,于细枝末节中聚焦到对于这种“时间性”的关注。设计师擅长将熟悉的物件和装置经重新组合之后形成一种带有陌生感的整体印象,让人在其中停留,探索,收获灵感和喜悦。
▼家具近景


MUUSA始终与国内当下市场主流家居趋势保持适当距离,试图借丰富的自然材料,高水准的设计研发和制造体系去演绎“恒久性”美学内涵,持续输出带有人文温度的,并经得起时间考验的家居设计。
▼摆件近景

结语 | CONCLUSION
设计师力图在这个场所中,去整理材质、器物、家具和空间之间的关系,让这些要素既相互独立,同时又形成一个相辅相成的整体。与其说是一个临时的展厅设计,更像是设计师进行的一场蓄谋已久的观念“游戏”的视觉呈现,借助具体的场所及人的参与,于有限中构建无限…
▼平面图

▼天花布置图

项目名称:MUUSA慕萨-家具展馆设计
项目类型:展览空间设计、展厅设计、家具展厅设计
项目地址:中国 · 深圳
室内设计:FILLSTUDIO
主创及设计团队:杨跃文、吴瑾、赵骏业、李心莹
施工方:上域展览
建筑面积:290㎡
建成年份:2022年
文案版权:杨跃文
摄影版权:花觉影像 fafaProject
感写观览、点击文章顶部🤍可收藏案例
更多该设计公司案例,请点击 → FILLSTUDIO
编辑版权©灵感LAB,欢迎转发,禁止以灵感LAB编辑版本进行任何形式转载

关注公众号

关注抖音号

HelloArt艺术客厅设计·杭州 | Artdeep艺痴设计

“Soothin素庭”家具旗舰店 · 深圳 | BloomDesign绽放设计

Tanatap框架花园 · 雅加达 | RAD+ar

盛泽坛丘缫丝厂改造 · 苏州 | 平介设计

极氪中心 · 苏州阳澄湖服务区 | HATCH Architects 汉齐建筑

柏林冷战博物馆展陈设计·德国 | TCHOBAN VOSS Architekten