
位于重庆江北区坐落在一个老社区里面,该项目前身是一个长安机械厂的居住区,社区人口大多以老年人居多,现有很多的创业年轻人在这里创业,带动了该社区的发展和人气,吸引了更多的青轻人来此打卡。








如今城市的更新越来越快,越来越多的原始老建筑被新的建筑给取代,而我们不希望把整个原来属于这个街区的建筑风貌给拆掉,做了部分的原始墙面的保留,旧的墙面和现代创意的结合,使合作村重新复苏了起来。










该剧场是要做一个不局限于一个视角、让人们觉得没有界限感的空间,让在这里发生的每一件事都有可变性,使人们可以在这里自由的探讨。没有特定的位置场景,将空间做到与人连续的互动,不断碰撞出新的火花。






剧场的搭建我们主要使用了这几种材料:木材、钢架、阳光板、钢格栅,没有过多的钢筋混泥土的堆积,采用了木钢架结构,给人感官上的温馨。为了解决光源不是很充足的情况,在二楼侧面的连廊部分使用了钢格栅,希望透光到一楼地面,引进自然光。
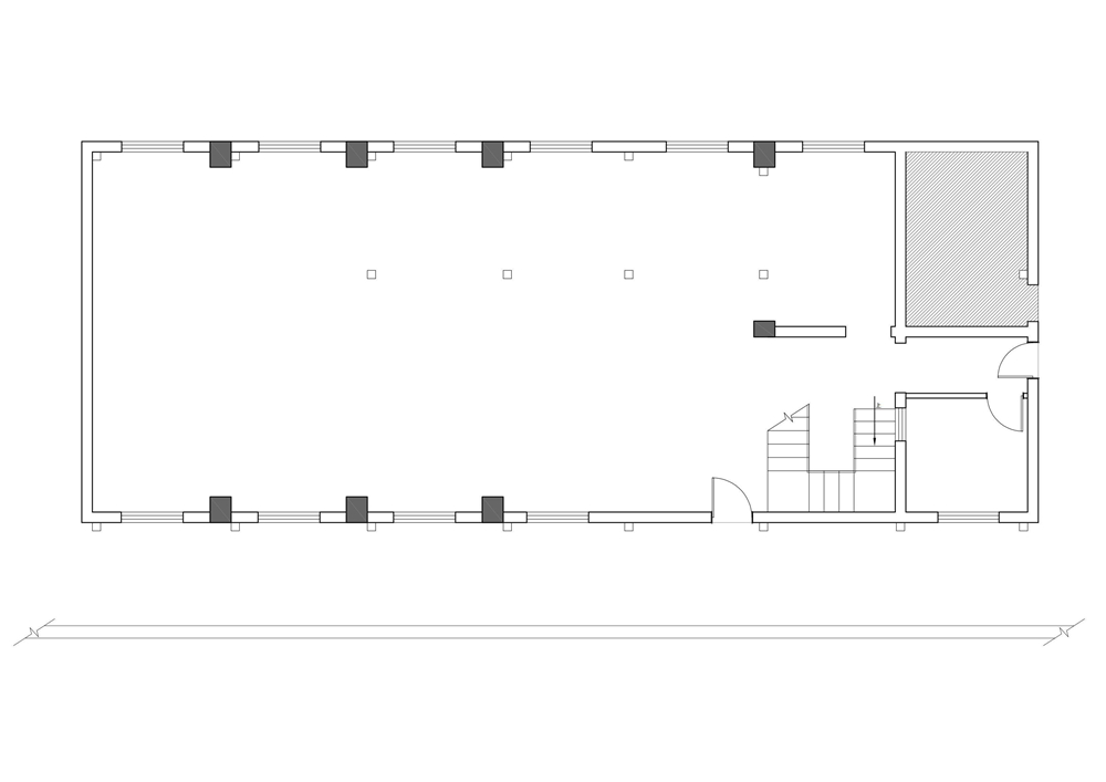
▼一楼平面

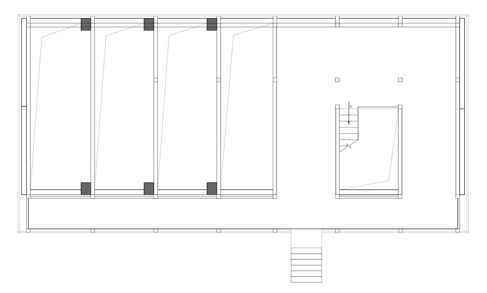
▼二楼平面


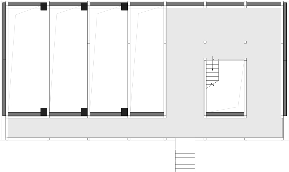
▼分析图

项目名称:合剧场
项目类型:商业空间设计、剧场设计、空间改造设计、老宅改造设计
项目地址:中国 · 重庆
客户:王朝
设计方:FX.D发喜空间设计
主创及设计团队:唐爽、key杨科
施工方:展业装饰工程
建筑面积:261㎡
建成年份:2022年
合作方:合作村青年国际社区
材料:木材、钢格栅、阳光板、金属
摄影版权:杨帆
感写观览、点击文章顶部?可收藏案例
更多该设计公司案例,请点击 → FX.D发喜空间设计
编辑版权©灵感LAB,欢迎转发,禁止以灵感LAB编辑版本进行任何形式转载

关注公众号

关注抖音号

京艷·翰林书院·北京 | LDH刘道华建筑设计事务所

荣耀全球旗舰店 · 成都 | HONOR Retail Design Studio

%Arabica coffee(宽窄巷子店)·成都 | B.L.U.E.建筑设计事务所

MASONPRINCE永庆坊店 · 广州 | TOMO東木筑造

33 COFFEE · 杭州 | 杭州壹山建筑设计有限公司

观夏(国子监)旗舰店 · 北京 | F.O.G.建筑事务所