BSH总部位于江南水城绍兴,它由大犬建筑设计团队设计。é é é建筑作为BSH总部的核心,其独特的形态在城市中脱颖而出。这是一座集零售空间、办公空间、餐厅、研发生产、观光体验于一体的综合性功能建筑。BSH品牌专注于高端羽绒寝具产品,其产品经过原料 – 洗净 – 加工 – 检查 – 充填 – 标签这一系列的生产过程,它完成了从原材料“鹅绒”到“寝具”产品的转变。白色纯净的线性结构便是依照“鹅绒”的特质所建立的视觉标识。

俯视之下,基地呈三角状。大犬建筑设计团队试图打破这个棱角分明的场地轮廓,结合“鹅绒”本身具有的轻柔感,借此营造一个柔软且有温度的场所,与周遭高密度工厂楼群形成强烈的反差,也使得é é é建筑成为整个区域内极具吸引力的场所。

由“工厂”和“办公”两大主要功能作为依据,形成双向动线的分流规划,工厂区入口位于建筑的西面,以最短的距离与园区主入口连接,产生高效的工作路径;内退30米的户外绿地很好的隔离了路面的嘈杂,形成更为独立的办公环境。并以自然绿地来引导通往建筑东南面的办公和零售区域的人流。
▼设计生成

建筑外立面是室内与室外之间的界面。它往往是一个建筑最引人注意的部分,它不但保护建筑不受外部环境因素的影响,还为舒适的室内办公环境带来契机。
建筑被设计为“虚 实”两个体块,上下组合的方式。低区为实体的清水混凝土,形成厚实且稳固的建筑基座,高区使用渐变半透明玻璃与白色曲线造型铝板的幕墙系统。清水混凝土外墙做了内退设计,使得白色幕墙更加通透,并具有悬浮于空中的质地。
▼分解轴测图

▼建筑上虚下实


建筑师在西南面工厂区采用了雾面玻璃,视觉上规避了车间繁杂的生产状态,同时雾面玻璃的运用使得室内外的视线变得朦胧,让人忍不住好奇。在工厂区,位于建筑的中心体块被抽离,工厂内部空间也随之围绕中庭展开,从而创造了一个沐浴在自然天光下的生产空间。
▼雾面玻璃立面模糊室内外视线




建筑的东南面区域,由一层至六层的室内空间分布了不同功能的场所:零售空间,办公空间,餐厅。在相应的立面上,建筑师采用了渐变半透明玻璃和透明玻璃两种材料,用来满足不同室内功能对幕墙采光的需求。同时,这两种材料也带来了由朦胧渐变的质地走向高透明视觉变化。
▼不同的玻璃材质满足不同功能需求

建筑师在南面三层的位置,设计了连接在工厂区与办公区的外挑连廊,该连廊以半户外的表现形式,悬浮在建筑外立面上,为办公区与工厂区提供了更为便利的交通动线,也为使用者创造了真正的协作空间。同时户外连廊在穿梭于白色玻璃幕墙与清水混凝土两种差异感的材质下,带来视觉上的平衡感。幕墙的白色铝板支撑结构在此处随着曲线的高低起伏,清晰可见。
▼外挑连廊

曲线铝板成为建筑最主要的特征,既强调了白色线性的自由形态,又呈现出了由曲线出发而形成的潜在律动感。运用数字算法的动态切割方式,看似简单,却展示了建筑表皮无限可能的律动关系。
▼白色曲线铝板






除此之外,它与光也形成了对话:白天,玻璃映射着周围树木、建筑、河流的轮廓的同时,曲线铝板随着太阳光照的投射,产生永不停息的变化,形成了一个富有光影节奏的外立面,而不是处在一种静止孤立的组合中。
▼玻璃映射周边环境

洁白的鹅绒便是以如此诗意的方式,行于微风的缓慢气流中,停落在建筑上。建筑开窗位置也得到了精准的考量,以消失于幕墙的语汇中实现了对应在不同室内空间中需要的位置。
▼沐浴在自然光下的室内空间

▼生产空间


观光工厂和零售空间是两个完全不同的设计类型,两者在体验需求上也存在一定的差异性。 如何在一座建筑中满足不同空间类型的功能需求,以及建立动线的紧密联系:如工厂与观光动线的连接;观光通道与零售空间的互通;以及零售与办公大堂的共享性。是大犬建筑设计 团队在本项目中面临的一个挑战。
▼工厂生产流程图

置入与连结 | Insertion and Connection
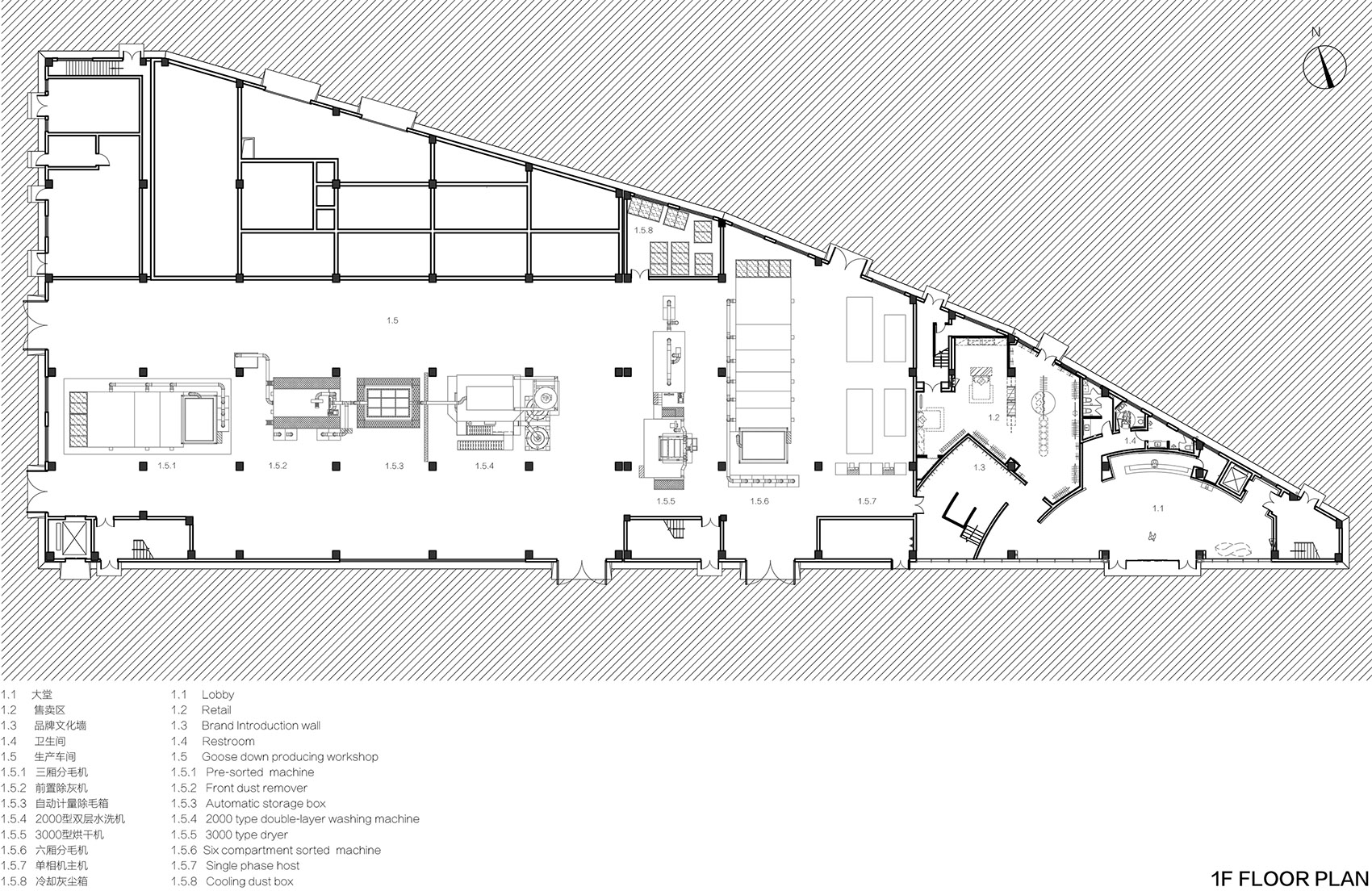
工厂具备生产效力的同时满足参观者的好奇心,把主体功能“观光工厂”置入于生产空间内, 设计师构建了一个具备“台前”和“幕后”属性的工厂。为此,设计师在其建筑的西南入口设置了参观者的观光通道动线,在一层与二层的室内空间中,构建一个既是工厂又是一个具有可读性的展厅。
▼一层展厅


▼一层展览走廊

观光通道沿用了建筑中“绒”的轻柔特质。配色基调明亮洁净的空间,给人的感觉更像是步 入了一间具有趣味感的实验室。从充绒机器中找到圆管结构,将环形半透明的充绒管道运用于展示中。同时,半透明的充绒管道也充分的运用在墙体的分割以及不同种类的“绒”陈列体系中。通过比例的放大与排列组合,形成了走道与空间的分割,实现“绒”陈列的多样性。
▼观光通道沿用了建筑中“绒”的轻柔特质



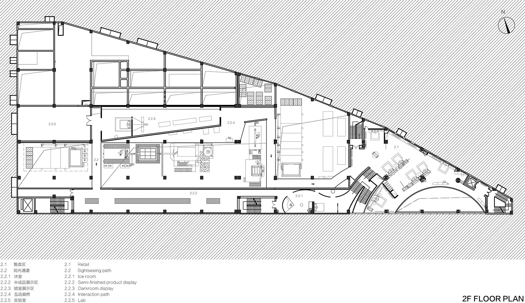
由绿色亚克力管道引导至二楼的空间,通过三维模型的讲解,展示其专业化的流程。紧邻工厂的一侧,藏匿在“幕后”的生产流程转至“台前”。设计师将工厂区域打开,透明玻璃的运用将运行中的机器展露无遗。直观的展示了它的工业环境和不同设备带来的功能性。并借助标示标牌的引导,清晰的标示每套机器对应的生产流程。
▼二层展览空间


▼绿色亚克力管道成为空间线索


具有流动感的展台贯穿整个观光通道的空间,亚克力罐中盛满了不同种类的绒,参观者可通 过“触摸”,“闻”,“看”等多感官的体验方式对其进行体验。设计师将拆解的机器零件,有序的展示在绿色廊道中。工业技术的精美通过功能性的机器物 件,直观的呈现零件与性能,生产与技术之间的联系。鹅的标本展示,被置入于透明玻璃中,具有动态感的异形发光亚克力,轻盈且生动的模拟了 鹅的栖息之所。
▼二层展览通道

▼具有流动感的展台贯穿整个观光通道的空间







▼置入于透明玻璃中的鹅标本




最远与最近 | The Furthest and The Nearest
工厂作为离消费者最远的生产流程,相对而言,零售拉近了品牌与消费者的距离。BSH 品牌将“最远”与“最近”建立了最直接的桥梁,融合社交型的零售空间,沉浸式观光体验。 向消费者体现其制作工艺的真实性,将制造与知识融合,激活厂区的活力。同时,观光工厂 与零售空间的无缝衔接,打开了工厂公共性属性与零售空间的流量值。
▼零售区



白色渐变玻璃延续了建筑的主要材质,由观光通道通向一层与二层零售区的楼梯,通过多重方向的楼梯结构带来不同空间以及上下层的动线串联。在 BSH 品牌的羽绒家纺零售区,陈列区中心置入一个可旋转的胶囊盒,前后通透的渐变玻璃可视面,动态的展示收藏级的产品。悬浮于半空中的圆形陈列柜,配合寝具的实景展示,形成系列产品的立体展示系统,给开放 的展区带来陈列节奏的变换。被填满鹅绒的亚克力绒箱与古铜金属展架的结合,为陈列道具系统增加质感的同时延续其产品的属性。
▼填满鹅绒的亚克力绒箱与古铜金属展架的结合



开放性 | Opening up
由零售区眺望至一层中心位置为接待区域。设计师打破零售区与一层空间之间的楼板,构建弧形的高挑空空间,充分延展立面高度比例,使接待入口更具张力的呈现在参观者面前。接待台从形体上融入立面造型中,弱化其体块感,使大堂空间更为整体。内嵌在墙面上的胶囊造型的玻璃体,透明且具有悬空感。设计师借助标本为空间增添童趣,同时它也成为了品 牌的IP记忆点。
▼接待区域

▼弧形的高挑空空间

▼大堂细部

体验型经济俨然成为商业的主流,由此,旗舰工厂的演变也成为公众展示品牌更高生产技术的场所。因此工厂在展现品牌价值观方面所扮演的角色正变得与办公场所或零售空间同等重 要。它在解决生产问题的同时,其潜在的吸引力为消费者带来更多重的体验。
▼细部


富有节奏的建筑幕墙随着夜幕降临,由动态转为静态,光带清晰地勾勒出了白色曲线铝板的轮廓,柔软地停留在建筑体上,犹如雕塑般。
▼夜景




▼基地平面图

▼一层平面图

▼二层平面图

▼三层平面图

▼四层平面图

▼五层平面图

▼六层平面图

▼立面图

▼剖面图

▼细部

项目名称:é é é–BSH品牌总部
项目类型:办公空间设计、总部办公室设计、商业空间设计、零售店设计、体验店设计、办公建筑设计、办公楼设计、总部大楼设计
项目地址:中国 · 绍兴
客户:百思寒羽绒品牌
设计方:大犬建筑设计
主创及设计团队:辛晋、胡志红、卢彦彪、郭林昂、顾丽玲、张晶、汪菁
手工模型:汪晨威、郑晨熹
建筑深化:上海都市建筑设计有限公司绍兴分公司
施工方:浙江荣达建设有限公司
建筑面积:18342㎡
设计年份:2017年-2019年
建成年份:2021.01
摄影版权:孟庆伟、谢亦伦、吴若铮
感写观览、点击文章顶部🤍可收藏案例
更多该设计公司案例,请点击 → 大犬建筑设计
编辑版权©灵感LAB,欢迎转发,禁止以灵感LAB编辑版本进行任何形式转载

关注公众号

关注抖音号

“漂浮”的腾讯总部 · 深圳 | 马岩松MAD

vivo总部·广东 | 中国建筑设计研究院有限公司

ZOZO总部办公楼·日本 | Hiroshi Nakamura & NAP+Takenaka Corporation

Espacio Miguel Delibes综合体·西班牙 | Rafael de La-Hoz

Pratic公司总部扩建·意大利 | geza

HENN事务所将在广州和汉诺威打造科研建筑·广州 | HENN事务所

“漂浮”的腾讯总部 · 深圳 | 马岩松MAD

国方电子-研发中心 · 苏州 | 平介设计

ZOZO总部办公楼·日本 | Hiroshi Nakamura & NAP+Takenaka Corporation

é é é–BSH品牌总部·绍兴 | 大犬建筑设计

FINNISH DESIGN SHOP总部大楼·芬兰 | Avanto Architects

Pratic公司总部扩建·意大利 | geza