社区活动中心 | Community Centre
Kladno兄弟会基督教社区中心的功能不仅仅包括在精神层面传达教义,还包含举办儿童、青年和成人的休闲活动、照顾有需要的人、帮助患有严重疾病的人、身体残疾的人或有特殊危机情况。




项目基址为一个在梯田式基础上拓展的多层建筑。这座建筑没有连接花园的通道,并且在社区中心运营时还有诸多限制,它提供的空间不适合举办各项活动。新的社区中心需要找到一个合适的位置并创建一个可灵活操作的祈祷空间,其中还包括教室、小咖啡馆、办公室和花园区,从而支持更广泛的社区活动并使它们能够进一步发展。
▼建筑外观


花园亭 | Garden Pavilion
这座新建筑被设想为一个带有角落和凉棚的花园凉亭,位于休闲区中心的入口轴线上。该建筑位于地块的边缘,因此释放了场地面积。凉亭与周围地块的发展息息相关,维持着一个低调而敏感的体量。整体结构是一个设置了多个入口的单层建筑。
▼项目入口

▼庭院概览

光 – 暗 – 阴影 | Light – Dark – Shadows
太阳射下的光线充满了整个空间,切割了整体建筑气氛。它唤起了一种宏伟的空间感受,一种期待、沉思和谦逊的氛围。同样独特的是,在这样一个神圣的空间中,黑暗的体验为其他感官让路,将感知转向内在。
▼内殿入口

▼内殿空间

光与暗的体验是整个概念的自然起点。天窗是基础照明的来源,位于入口的轴线上,形成了建筑物外部和内部感知的特征元素。它定义了重心,集中并进一步扩散营造气氛的光线。阴影,明暗之间的张力,以图形方式强调空间的轮廓,创造出一种对立的空间交响乐。
▼宣讲空间

▼仰视天窗

材料解决方案 | Material Solution
材料解决方案的独特之处是钢筋混凝土凉棚、钢结构的U型玻璃天窗、房屋内外的砖砌结构。天窗的钢结构轻盈通透,同时参考了神殿的轮廓。祈祷厅的砌砖象征着生命的脉动——朝向想象的中心、十字架、砖块聚集,而在相反的方向,它们逐渐减少、升华。
▼交谈空间

▼会议室


▼落地窗将花园景观引入室内

▼室内走廊

▼夜景




▼基址平面图

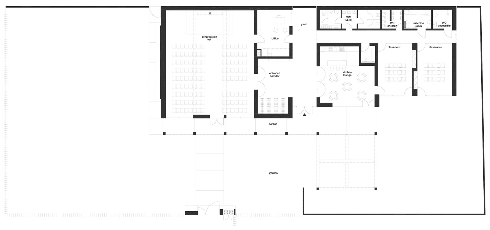
▼一层平面图

▼剖面图

项目名称:Kladno兄弟会基督教社区中心
项目类型:公共建筑设计、公共空间设计、文化/展览建筑设计、文化空间设计、宗教建筑设计、社区中心设计
项目地址:捷克
客户:Brethren Church in Kladno
设计方:QARTA ARCHITEKTURA
场地面积:1400㎡
建筑面积:470㎡
设计年份:2017年
建成年份:2022年
摄影版权:BoysPlayNice
造价:9 mil. €
感写观览、点击文章顶部🤍可收藏案例
更多该设计公司案例,请点击 → QARTA ARCHITEKTURA
编辑版权?灵感LAB,欢迎转发,禁止以灵感LAB编辑版本进行任何形式转载

关注公众号

关注抖音号

岱山南侧社区卫生服务中心、养老院、社区教堂·南京 |东南大学建筑学院UAG城市建筑设计工作室

阿那亚 · 金山岭上院 · 承德 | 大舍建筑设计事务所

Bosjes 教堂 · 南非 | Steyn Studio

KRONA知识与文化中心·挪威 | Mecanoo architecten

Castel di Lama教堂及社区中心·意大利 | Studio Contini

Kladno兄弟会基督教社区中心·捷克 | QARTA ARCHITEKTURA

又见五台山剧场 · 山西 |北京市建筑设计研究有限公司朱小地工作室

圣殿隧道花园·印度尼西亚 | RAD+AR

Papo教堂 · 韩国 | BoH Architecture

Bosjes 教堂 · 南非 | Steyn Studio

佩戈尼亚加圣灵教堂·意大利 | LR-Architetti

Kladno兄弟会基督教社区中心·捷克 | QARTA ARCHITEKTURA