箭头的指引永远是最直白的,如果不够,那就再加一个。 | The arrow’s guidance is always the most straightforward. If it is not enough, add another one.
作为新晋街头小众咖啡品牌SEVENCUPS希望通过品牌调性与受众群体之间的共性,将咖啡、品味、年轻、潮流、打卡等元素重新糅合,推陈出新,依靠小而精的空间搭配来展示品牌所追求的理念——以设计的质感传递咖啡内核,用心做好喝的咖啡。
▼由道路一侧看向门店

门面是任何线下商业空间的重头戏,如何在众多品牌中脱颖而出,闪亮登场,以新颖的风格在第一眼时就牢牢抓住大众眼球,是SEVENCUPS的首要任务。设计团队通过箭头符号这种常识标志给品牌建立形象,以最简单的符号成为品牌植入消费者的形象记忆。
▼空间生成

▼门面概览


在视觉上,我们希望仅以简单的箭头成为视觉语言,引导顾客完成空间探索。在氛围上,用暖色系为主要光源,中和了材料上的工业冷性调,形成冷暖色调差异,以此来加深视觉上的对比,更突出品牌的LOGO和招牌。
▼招牌概览

SEVENCUPS的场地面积不大,在室内结构的合理布局的基础上,以最大化利用空间为前提,制定紧凑却符合人体动线的布局,满足各个区域功能使用后,遵循“门面即空间”的设计理念,摒弃传统的开放式饮品店的设计思路,主张以“藏拙”和“推新”,从而转移顾客的注意力,营造神秘、多层次的立体空间结构,将其劣势转化为优势,在原有建筑空间内嵌套了一个新的空间形体,与外部环境自然衔接,增加空间层次。
▼点餐区

▼取餐区

不锈钢表皮的遮掩下,仅有的彩色窗口,让顾客在第一时间无法知晓其内部空间的真实结构,引发更多探索欲望,将整个空间的互动锁定在这个窗口,定制化的点单区满足了1V1的服务体验。
▼点餐区及取餐区招牌近景



不锈钢透露着简约利落,而彩色的嵌入则提升了整体色彩的丰富度。内嵌式的点单场景使得点单操作更具有仪式感和私密感。透过两侧小尺寸玻璃视口,顾客能隐约看到操作区域,引导顾客能把更多关注放在品牌与享受产品本身上。随视角变化色彩的箭头符号始终贯穿全局,并以发光的形式将点单区、出杯区和自助区依次串联,让点单、取杯、自助服务等一系列动作过度衔接自然,不仅提升店面运转效率,也规避了因为功能区分不清晰而带来的混乱和拥堵,保证顾客体验的流畅性,自助开放服务更传递了街头外带咖啡的松弛感。
▼箭头符号近景





空间只是一种外在表现,而探索空间带来的惊喜与满足才是构成内在情绪的关键,我们所做的只不过是给好奇的人一个箭头指引。
▼由室内空间看向室外

“一杯好喝的咖啡”,以这个看似简单的标准,却是对当下青年社交状态的探索。OYTT DESIGN在兼顾空间功能的同时,仍赋予其未来科技设计美感,将细节注入每一存肌理,实现具有设计质感的线下咖啡商业空间。「市井街头+休闲小聚」,满足新潮流人群喝咖啡的慢节奏,也符合周边工作人群快捷提神的需求,更是一段时间的精神锁定。
▼轴测图

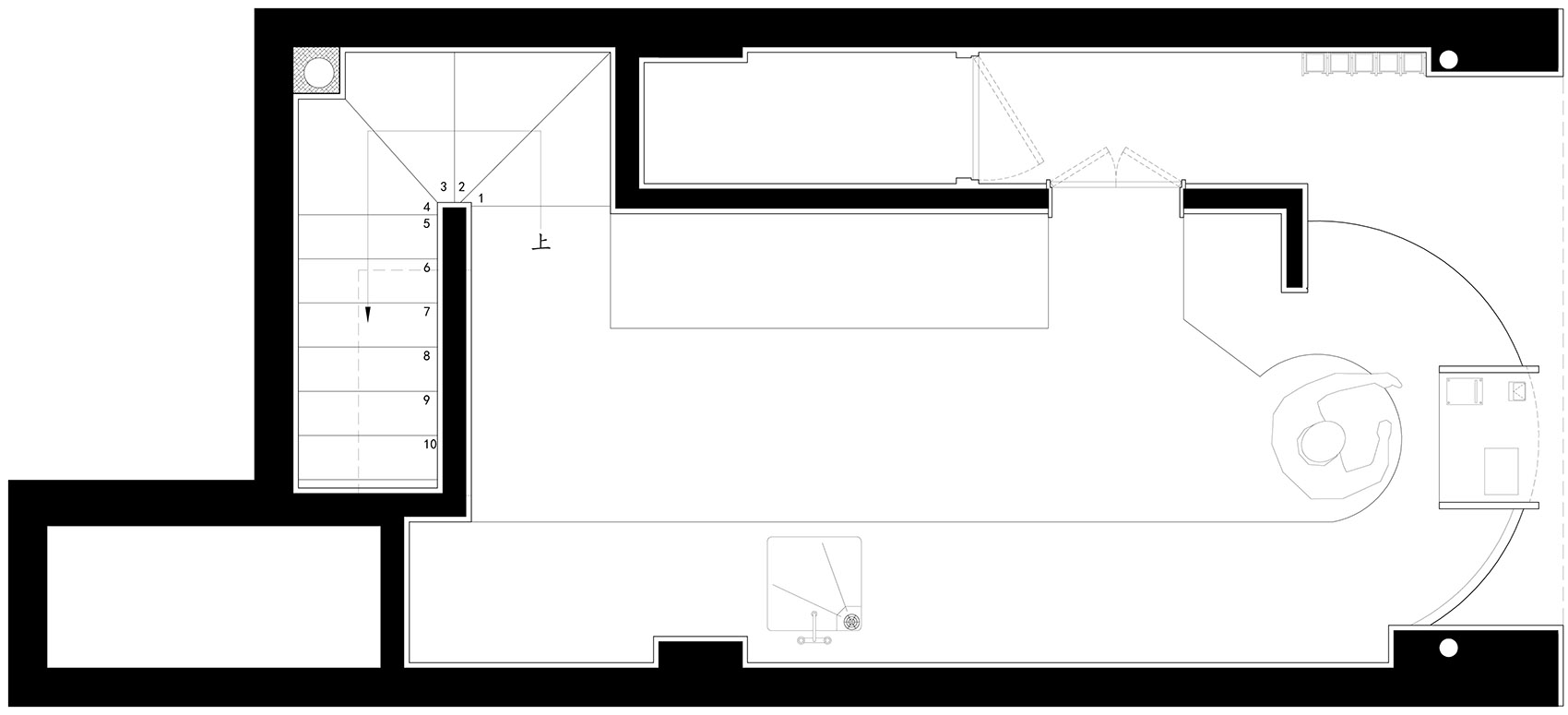
▼平面图

▼立面图01

▼立面图02

项目名称:SEVENCUPS
项目类型:咖啡厅设计、甜品店设计、饮品店设计、网红咖啡厅设计
项目地址:张家港杨舍老街
室内设计:欧阳跳建筑设计有限公司
主创及设计团队:蒋越 、欧阳跳、周丹凤、姚运、马小贝、胡姚远
建筑面积:30㎡
设计年份/建成年份:2022年8月-2022年10月
灯光设计:无锡米未照明
材料:艺术漆、砖、不锈钢、金属板
摄影版权:马利仁
感写观览、点击🤍可收藏案例
更多该设计公司案例,请点击 → 欧阳跳建筑设计有限公司
编辑版权©灵感LAB,欢迎转发,禁止以灵感LAB编辑版本进行任何形式转载

关注公众号

关注抖音号

Harudot By Nana 咖啡烘焙店 · 泰国 | IDIN Architects

「BA」新法式烘焙 品牌空间设计 · 重庆 | 勉强设计事务所

CHOUCHOU面包店 · 广州 | 几何形态设计

EUEU餐饮店 · 广东惠州 | SORA索拉设计

爱乐信糖水局 OI-LOK-SHUN BUREAU·佛山 | 广州韶康室内设计有限公司

Holiland Travel – 好利来超时空旅行旗舰店设计·上海 | SLT