▼建筑原貌

我们在杭州龙坞山林间发现了一座被遗弃的徽派建筑,建筑特有的月梁和斗拱令人着迷。古宅建于清朝,房屋的主人不可考证,但他一定是徽州的游子前来杭州,建筑寄托思乡之情。本项目会将老建筑改造成一个下午茶与餐饮的会所。



如何尊重老建筑 |
当代中国处于振兴文化的阶段,事实任重道远,人们内心深处认为中国老建筑是“丑陋”“落后”甚至是“恐怖”的,喜欢游乐场多过逛园林的当代。“烟霞闲骨格,泉石野生涯”的心境消散了;朴素不争执的建筑审美毁灭了。
我们希望徽派老建筑可以得到尊重,如何尽可能留住老建筑?“大地艺术”给了灵感,大部分改建内容从地面“生长”出来,老建筑本体的木质结构得以保留。


一块“山林雕塑”生出在天井中,造型灵感来自于中国园林“狮子林”,“齐腰”高度的造型仿佛“山林”,人走在山林之间,亦如同游子。不同的是人与山林的尺度发生了变化,人成为了巨人。
▼轴测示意

▼天井中的“山林雕塑”






以“忘年交”的方式对待老建筑 |
我们希望以“忘年交”的方式与老建筑相处,把当代之美,自己看到的有趣的事与“老人”分享。





Loop Chair环形椅摆放在入口的最前端,表明“忘年交”的态度。天井内,独立设计的吊灯悬挂在屋檐下,它具有未来复古主义气质。懒人沙发完全与传统剥离开。年轻人坐在懒人沙发,喝着咖啡,听闻鸟叫。建筑苍老的木头质感,毫不掩饰的展示在年轻人的面前。我们意在唤醒当代人,对于老建筑陈旧肌理的知觉,让越来越多的年轻人喜欢传统物品。



▼入口

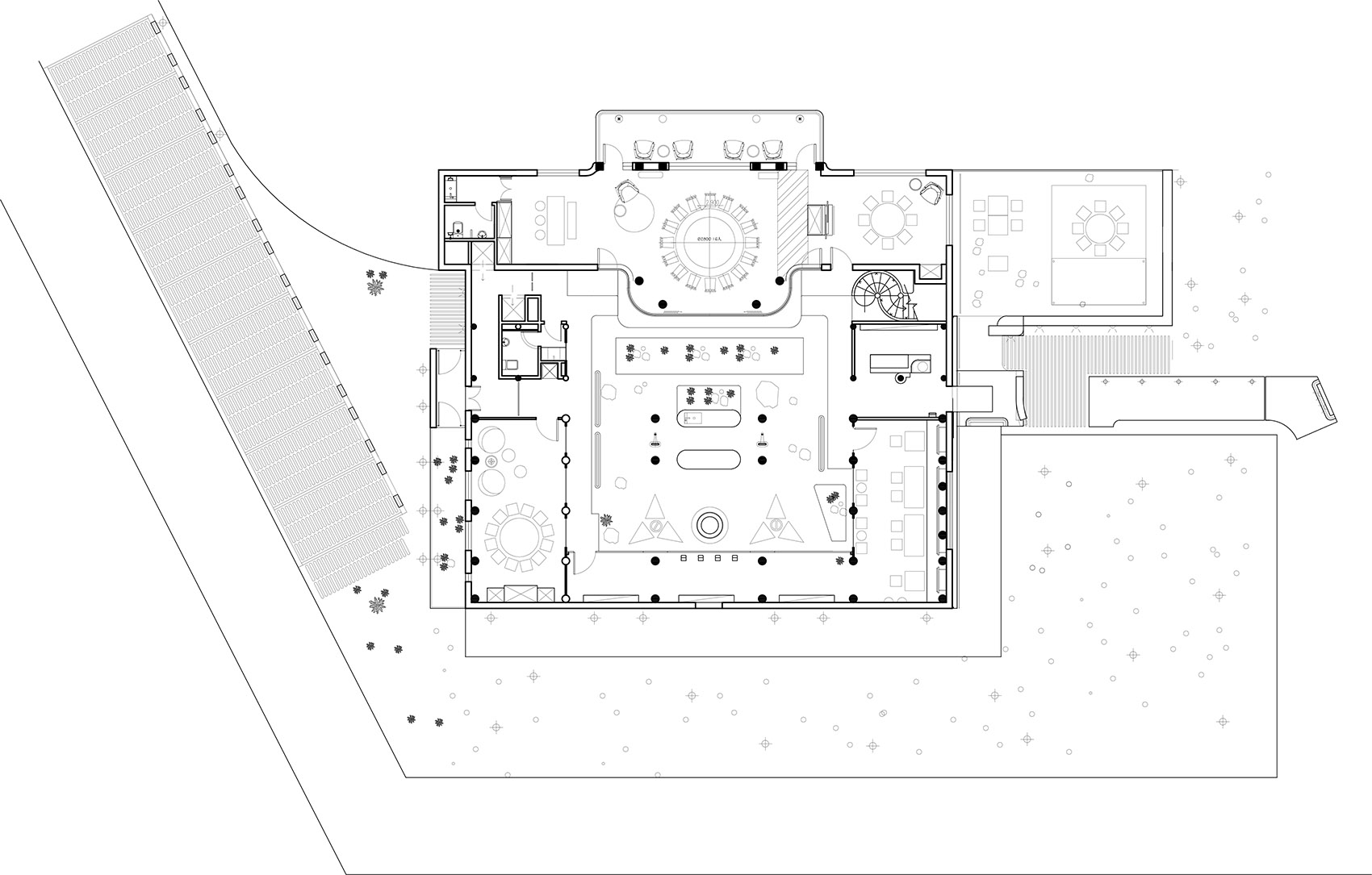
▼场地平面图

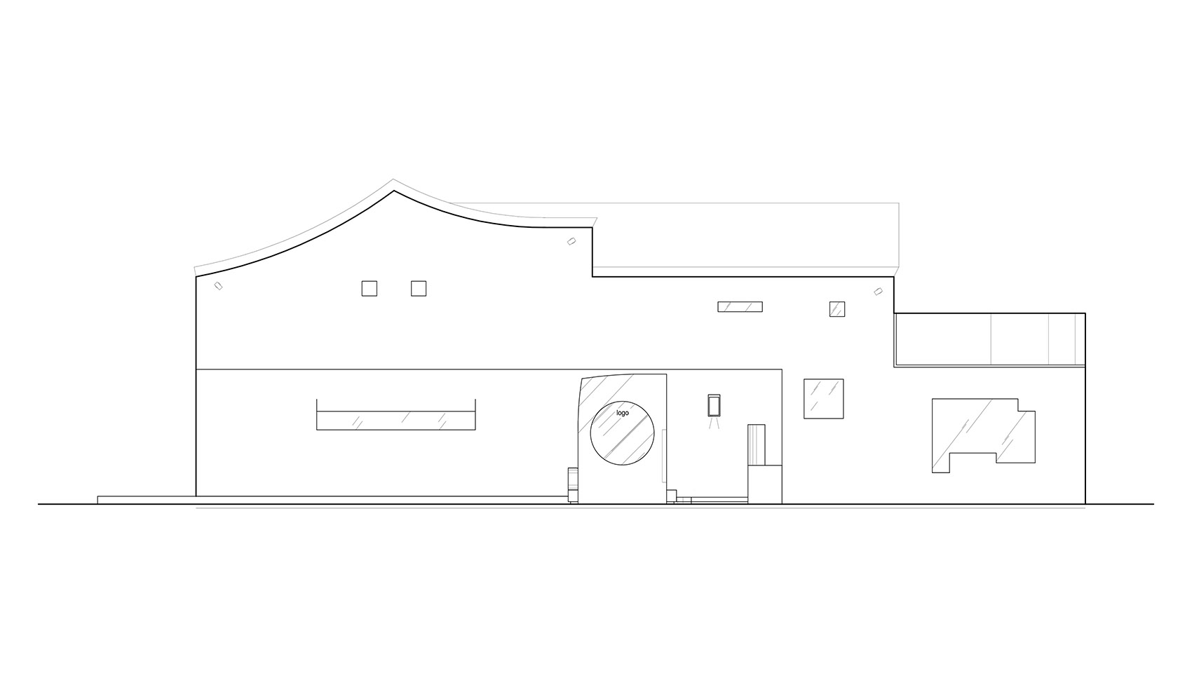
▼立面图


▼剖面图


项目名称:龙坞老建筑改造
项目类型:酒店民宿设计、民宿设计、网红民宿设计、会所设计、住宅设计、院落设计、空间改造设计、老宅改造设计、酒店民宿建筑设计、民宿建筑设计、会所建筑设计、外立面改造设计、老建筑改造设计、乡村改造设计
项目地址:中国 · 杭州
客户:RURO
设计方:等外组空间设计
主创及设计团队:王慧、彭怡、豆豆
建筑面积:800㎡
设计年份:2021年
建成年份:2022年
合作方:木芽花艺工作室 矩纵空间视觉表现(效果图制作)
材料:水洗石、微水泥、木质
摄影版权:瓶子
品牌:loop chair
编辑版权©灵感LAB,欢迎转发,禁止以灵感LAB编辑版本进行任何形式转载

关注公众号

关注抖音号