自19世纪末,张园便被称为“沪上第一名园”。张园作为近代中国最早的公共空间,推动了中国的都市生活及上海的海派文化。2022年,在张园修缮后重新向公众开放之际,蓝瓶咖啡邀请如恩在石库门老宅中,打造出一个以咖啡为对话媒介、融合沪上生活方式的当代社群空间。
▼外观

张园满载着这座城市的集体记忆。如同木心笔下所描绘的景象:“傍晚日光西射,建筑物构成阴带,屋里的人都螃蜞出洞那样地坐卧在弄堂里”。上海的里弄,阡陌纵横。而生活在其间的人们,总是能在这享受片刻闲暇。如恩希望通过设计,捕捉城市的脉络与肌理,为当地居民与往来旅客编织一段叙事之旅。
▼咖啡馆入口空间

▼由入口空间看天井庭院


出于历史保护的原则,建筑立面与天井的原有砖墙和门窗均得到了保留,延伸至室内,成为了设计师创作的语境及画布。如恩回溯建筑的本源,在室内置入了一个原始的屋舍。这个简易的“庇护所”作为动线的交汇之处、空间的视觉焦点,是咖啡师精心调制饮品的吧台区域。
▼轴测分析图

▼室内中央的屋舍结构

▼“庇护所”内的吧台区域

▼由吧台看庭院


▼从天井步入屋舍


屋舍与建筑砖墙之间的带状空间,宛如一条室内里弄,将主空间与天井连接起来。在其间,放置三两长椅,几件小桌,倚窗而坐,仿佛回到了旧日里的石库门生活。
▼室内里弄


▼倚窗而坐,娓娓而谈


为了与既有建筑的历史肌理形成对比,如恩对屋舍的结构与构造节点进行了反复的研究与推敲,使其尽可能的轻盈。屋架通体采用和纹不锈钢,屋面则是由穿孔弯折钢板制成。这些材料微妙且模糊地反映了周围的环境。旧时,居民们会在建筑立面上搭建简易的构件,将私人空间延伸至里弄中。
▼新旧并置

▼座位区

如恩受此启发,将建筑中原有的结构柱以金属杆件稍作连接,实现了灯轨、边桌、长椅和展示陈列等功能。店内除了品牌家具以外,还精心添置了的传统老家具。岁月留下的痕迹,也为这间新旧交融的蓝瓶咖啡带来了一份暖意。
▼屋舍结构细节



▼边桌细部


▼材料研究

▼蓝瓶咖啡张园店模型



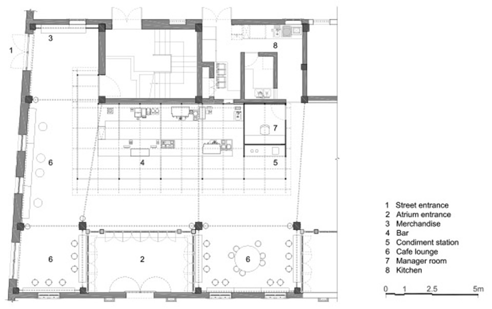
▼平面图

▼剖面图

项目名称:庐-蓝瓶咖啡张园店
项目类型:餐饮空间设计、咖啡厅设计、空间改造设计、老宅改造设计
项目地址:中国 · 上海
客户:蓝瓶咖啡
设计公司:如恩设计研究室
主创建筑师:郭锡恩、胡如珊
主持协理: 李秋橙
设计团队:张佳馨、陈僖、邹佩铮、周上云、吴震海、洪明月
软装设计及采购:设计共和
施工方:上海蓝顶装饰工程有限公司
建筑面积:175㎡
建成年份:2022.11
摄影版权:朱润资、蓝瓶咖啡
编辑版权©灵感LAB,欢迎转发,禁止以灵感LAB编辑版本进行任何形式转载

关注公众号

关注抖音号

京艷·翰林书院·北京 | LDH刘道华建筑设计事务所

%Arabica coffee(宽窄巷子店)·成都 | B.L.U.E.建筑设计事务所

荣耀全球旗舰店 · 成都 | HONOR Retail Design Studio

33 COFFEE · 杭州 | 杭州壹山建筑设计有限公司

郇厨·芦园·北京 | LDH刘道华建筑设计事务所

MASONPRINCE永庆坊店 · 广州 | TOMO東木筑造