和同时期建造的许多住宅一样,该建筑曾经不止一次地经历过翻新和重建。业主自1970年代得到布莱顿住宅的产权,随着家庭人口的增长,他们的需求也在不断增加。在1990年代,他们委托建筑师John Cuthbert进行过一次扩建。而在今天,基于不同以往的生活环境,设计团队需要以业主的退休生活为中心,重新创造能够让全家人齐聚一堂,同时考虑到孙辈成员生活习惯的居所。
▼主入口立面

▼扩建

▼扩建立面

▼外观局部

▼大尺寸窗户和镂空屏墙 | 看向餐厨区

项目的设计目标在一些地方对既有房屋的物理限制提出了挑战,虽然该住宅并非受保护的历史遗产,但所有改建和扩建的工作依然尽可能地保留了建筑和景观的既有特征。同时,作为建筑爱好者的业主也参与其中,他放弃了采用全新设计的做法,而是选择对既有建筑实施合理的干预,严谨地将新元素缝合在建筑的内部与周围。
▼半室外平台


▼客厅

▼客厅局部

通过消除房屋平面中的死角,室内空间的分区变得更加合理和开放,并且能够根据居住者的需求变化扩展或缩小。
▼通透的居住空间

▼厨房和吧台

▼吧台细节

▼厨房细节

增建部分的体量采用了最简单的材料和形式。起伏的屋顶回应了当地的住宅环境——其倾斜的提升了主要起居区的天花板高度。立面上的门窗、天花板、拱腹和户外平台均采用了产自澳大利亚的硬木。室内的木材使用低VOC(挥发性有机化合物)的硬蜡油加以处理。窗户则换上了高性能的双层玻璃。
▼倾斜的屋顶提升了主要起居区的天花板高度

▼室内以大面积木制表面覆盖

▼室内细节

该项目得以实现的关键是设计方案与既有结构在理念上的统一,即实现历史与现代元素之间的平衡。原来的壁炉被翻新和保留下来,并且成为了设计方法的灵感来源。楣梁、踢脚线和挂镜线等元素在得到精心修复的同时,也为住宅中的新空间增添了现代性的诠释。
▼卧室

旧建筑不可更改的部分为设计提供了坚实稳固的基础,从一定程度上避免了不切实际或铺张浪费的改造想法。
▼浴室


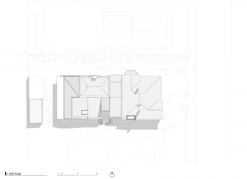
▼场地平面图

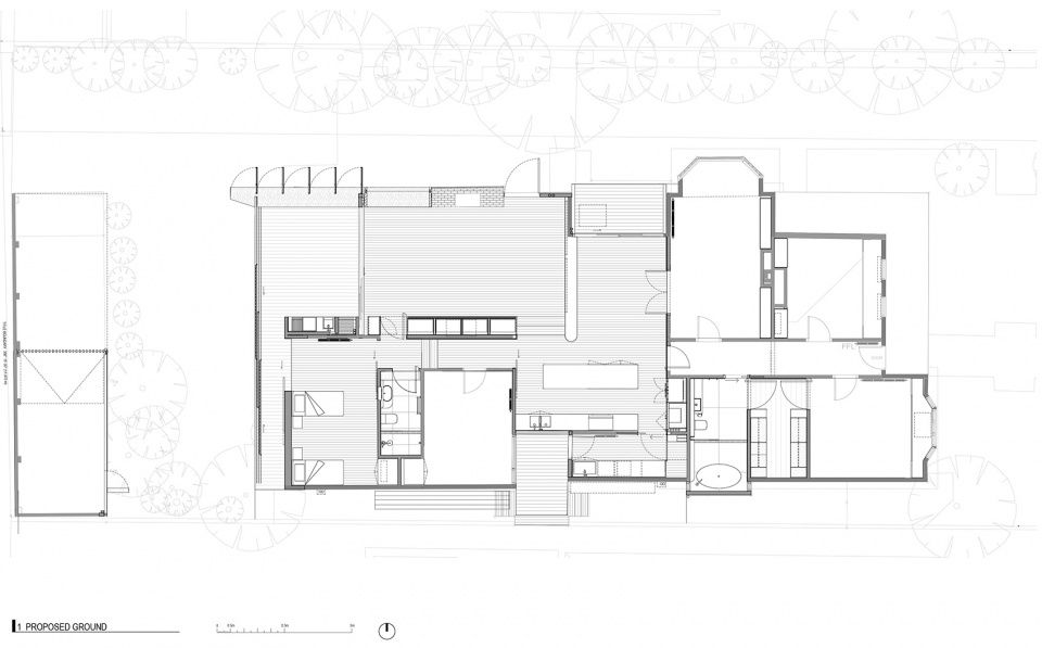
▼一层平面图

▼屋顶层平面图

▼北立面图和西立面图

▼南立面图和东立面图

▼剖面图

项目名称:布莱顿住宅
项目类型:精品住宅、独栋住宅、别墅、建筑改造
项目地址:澳大利亚
建筑设计:FIGR Architecture & Design
建筑面积:225㎡
建成年份:2021年
摄影版权:Tom Blachford
编辑版权©灵感LAB,禁止以灵感LAB编辑版本进行任何形式转载

关注公众号

关注抖音号