合院|
项目位于南京市溧水区无想山国家森林公园,场地植被丰茂,风景优美,一侧是环山道路和高耸的水杉林,一侧是竹林密布的连绵山峦。因景区发展更新需要,拟将原有的林场中队办公场所进行重建,并拓展出小型售卖服务、游客咨询和休憩等功能,使其成为一个园区管理和游览的节点驿站。同时业主在设计伊始就提出要求,希望能以一个合院为原型来进行操作。
▼建筑外观


▼现场原状

在这些前期条件的影响下,对内对外功能的梳理、合院原型和空间的弥合,以及如何更好地回应自然成为了设计需要面对的主要问题。
▼框景分析

设计思考|
设计起始于相对确定的空间布局和功能之间的整合。我们在回字形合院体量的基础上把功能拆分成两个L型的部分,一个部分是办公为主的对内空间,另一个部分是游客服务为主的对外空间。两个部分由两个角部翘起的L型坡屋面所统领,它们互相交错咬合,并在内院螺旋转折为檐廊。最终形成了带有传统山林前后层叠意向的屋面体量。
▼远景

▼回字形院落

由此,逐渐升高并隐藏围墙的景观地台和交错折叠的屋面成为了组织空间的主体,它们连同后山一起层层退后并相互错位,以此来补足场地处山体的缺陷,并表现出了近、中、远景的层次,让建筑和环境更好地融合在一起。
▼入口与后山相互错位

▼入口休息区

在这种形体关系的处理下,建筑的立面消失了,沿路的游客对于建筑的感知变为了顺应地形的景观台地和延展飘浮的层叠屋顶。“天窗”做为一个改变内部光照并指引空间趋向的要素被引入设计中。在入口、公共区域相关的体量中,平天窗和梯形的洞口引入了天光,使得立面弱化的情况下依然能较为清晰地指引主要空间的所在。而侧向天窗则被使用在办公、餐厅等功能房间,它能更好地满足采光要求同时又能减弱直射光线对空间使用的影响。
▼入口公共区域和天窗


建造策略|
因工期紧张、施工工艺不可控性等原因,我们在设计中也设置了相关的策略来减少其影响。首先建筑整体采用最为常见的混凝土框架结构,并且利用了屋面和吊顶之间的巨大空隙,让大量的结构高度、施工误差和设备空间都在空隙之中解决。
▼公共卫生间与主体建筑

其次在材料的选择上,对于视线焦点的屋面与景观台地,我们采用了青瓦和毛石这两种堆叠类的材料,而让精度较高的玻璃、窗台收口躲在了它们构筑的阴影里。以此保证在施工平整度有限的情况下,依然可以呈现出细密积累的材质肌理,并和环境相得益彰。
▼侧面的出入口



完成的建筑其延展的空间削弱了体量感,屋檐和台地的缝隙则“限定视野”,让使用者在不受道路影响的环境中把感受聚焦在自然的绿意上。最终建筑做为一个带有传统氛围感受和现代空间体验的驿站矗立在山林之中,并和自然交织在了一起。
▼餐厅,高窗限定视野

▼夜景

▼模型


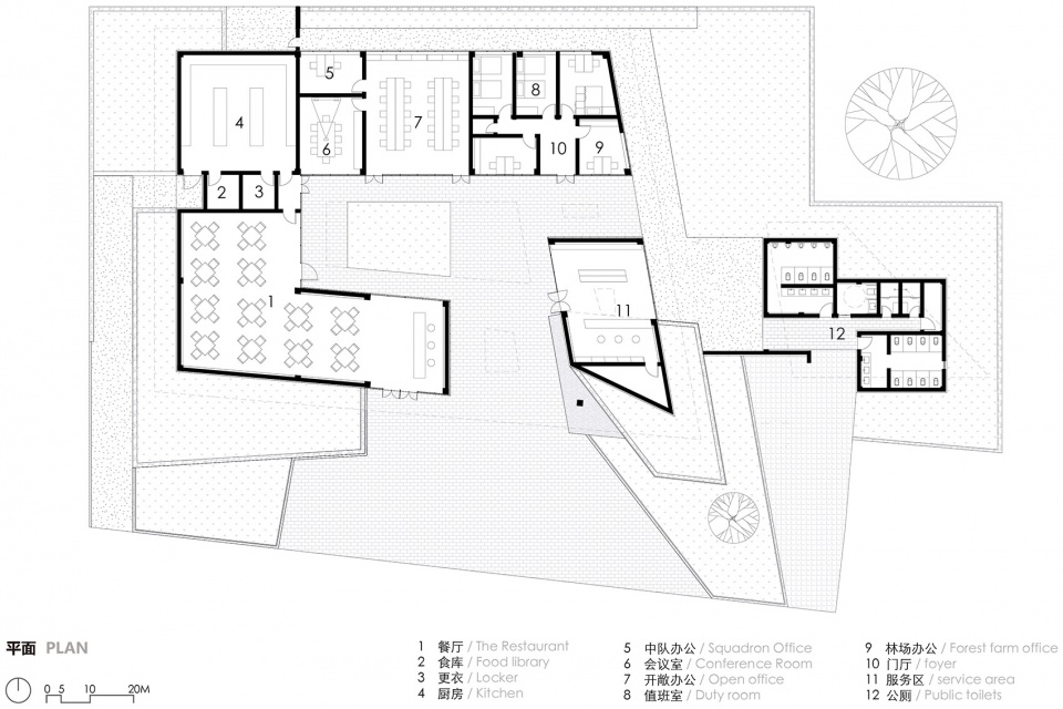
▼平面图

▼立面图

▼剖面图

项目名称:无想山秋湖驿站
项目地址:江苏省南京市溧水区无想山国家森林公园
设计公司:米思建筑
主创及设计团队:吴子夜、倪思媛、周苏宁、唐涛、彭彬、辛宇(实习)
施工图设计:江苏省建工设计研究院有限公司
施工图团队:庄昉、陈娟、陈凯、樊浩亮、王锴辉、张震宇、吴亚军、戴政卿
设计时间:2020.06
建成时间:2021.06
建筑面积:977㎡
空间主材:混凝土、木材、瓦、毛石
撰写编辑:吴子夜
摄影师:吕晓斌
编辑版权©灵感LAB,禁止以灵感LAB编辑版本进行任何形式转载

关注公众号

关注抖音号

西村·贝森大院· 成都 | 家琨建筑设计事务所

嘉兴南湖天地·嘉兴 | 上海天华建筑设计有限公司

城市垂直公共空间 – 曼谷The Commons商场·曼谷 | Department of ARCHITECTURE

岱山南侧社区卫生服务中心、养老院、社区教堂·南京 |东南大学建筑学院UAG城市建筑设计工作室

无锡田园东方二期·田园综合体·无锡 | 袈蓝建筑设计事务所

成都远洋太古里·成都 | 欧华尔顾问公司