太食獸是一家品牌文化鲜明的泰式茶餐厅,迎合当下年轻消费群体对独特餐饮品牌的需求,以EatLike a Local为主要理念 ,通过打造纯正东洋复古风格的用餐空间,来打破传统茶餐厅的庸常与喧哗,而保留其生活烟火气,同时炮制出年轻时髦的趣味室内环境。它始于西安,走过五座城市之后,在南京本地又迎来了我们和它的新一次空间合作,让食客们有机会在美式剧场般的精致空间中来 一场舌尖奇遇。坐落在秦淮区来凤街的太食獸选址于一片工业厂房改造的创意园内,前身是南京第二机床厂,富含年代肌理的工业建筑使得餐厅空间外观更具观赏趣味性。太食獸的设计构思者意图以美食作为介质,和在地的后工业文化做交互,为南京的城市饮食基因注入东南亚的美食烟火气。
▼通过独特意向景观的营造来烘托品牌文化气质

入口的候客区域利用野蛮生长的绿植营造出的自然景观与红砖厂房外立面做呼应,挑出的顶部檐台上巨兽品牌装置亦能俏皮地作为沿街迎客吉物,蜿蜒出整座休憩地带的迤逦奇观,在拥有众多的文化企业的创业园中仍以活泼的形象打破园区日常的循规蹈矩。
▼入口候客区设计

走入室内用餐空间,墨绿色基调的复古空间调性,搭配得到保留尊重的历史空间氛围,纹理柔和的餐桌椅配以沿墙布置的红色皮质沙发。水泥灰色的斑驳原始墙面镶嵌着创意古色的家具,海外所淘的骨瓷餐具彰显店主设计品味,通透率高的门窗将室外光线在高密度的室内植物间散漫地映射在斑驳的墙面与地面上,随着每日时间的流转,食客们能充分地在氛围轻松的双层空间中畅脍泰食。
▼餐厅入口营造

▼空间概览

▼一层室内用餐环境


▼走向阶梯视角细节

▼台阶细节

▼日光通过通透窗户撒入室内和绿植交互

▼二层用餐区环境



▼二层用餐区细节

▼室内柜台区细节


▼展示酒柜细节

▼(左)西洋家具与场地中的斑驳墙面和植物形成亲密的关系(右)用餐区灯具细节

结合味道浓郁的泰式餐饮,用心地烹饪成为一众美食爱好者们必达之地。秉承创意至上的太食獸, 坚持一城一店的多元迥异风格,带着她地道的泰式滋味造福金陵食客。
▼空间爆炸图

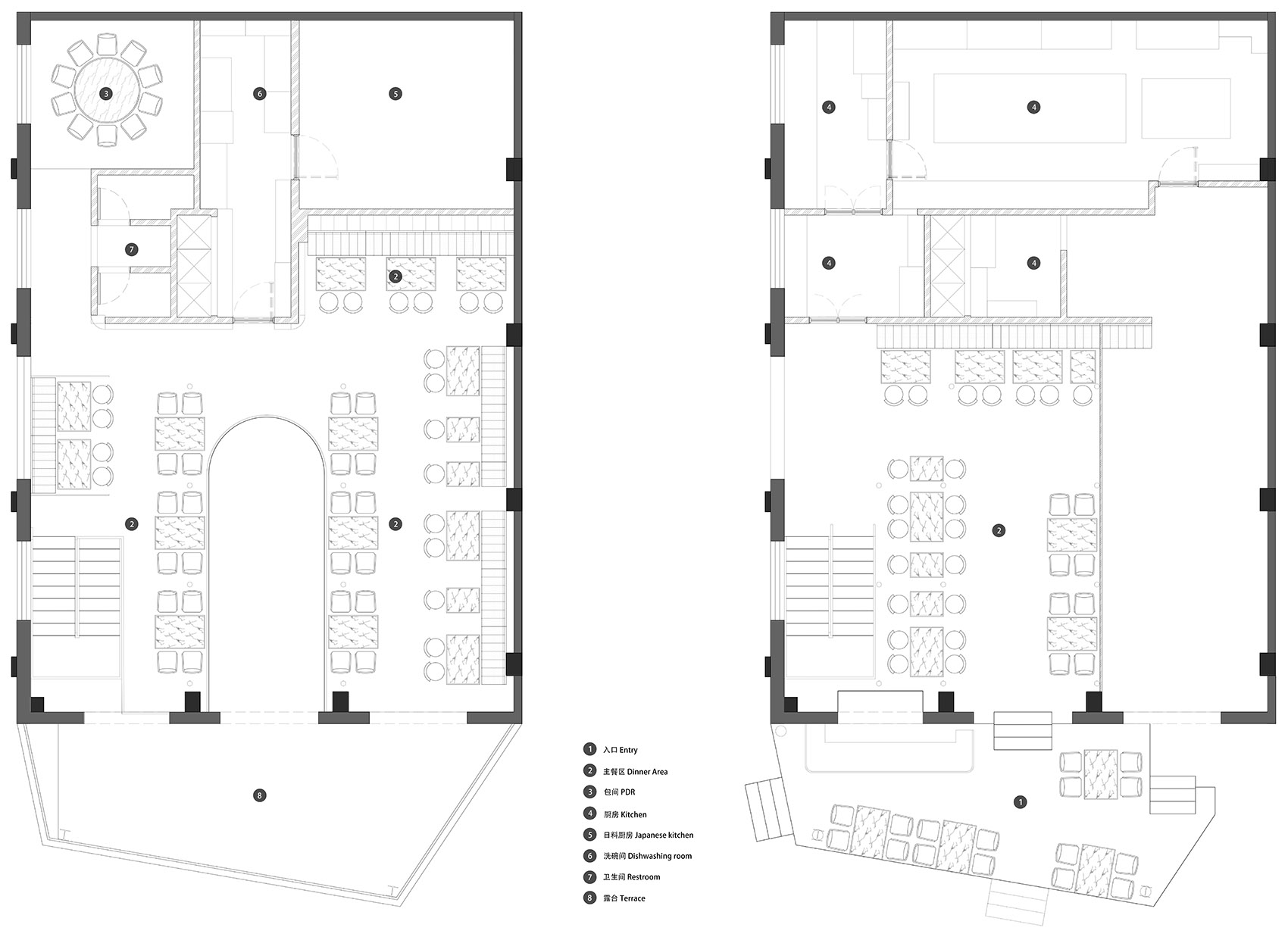
▼空间平面图

项目名称:太食獣泰式茶餐厅
项目地址:江苏省南京市秦淮区来凤街菱角市66号国家领军人才创新园内05B栋南跨102号
设计公司:三厘社triostudio
合作团队:南京柏泉装饰
项目客户:THAI FOOD SHOW
项目年份:2020年
建筑面积:380㎡
空间主材:铁艺、涂料、木材、瓷砖、木地板、砖石、玻璃、绿植
摄影师:EMMA
编辑版权©灵感LAB,禁止以灵感LAB编辑版本进行任何形式转载

关注公众号

关注抖音号