让会议、展示、体验和自然公园生态共生 |
项目背景 |
白象公园是白象集团在河北高碑店新建的生产基地,用地面积达20万平方米。为了推广面食文化、展示农业文明史,白象集团将绿色生态公园引入生产基地,把生产工厂转化为城市公共空间,供市民参观体验。白象博物馆便是公园的主要展示空间。
▼博物馆主入口

▼博物馆轴测图

▼ 博物馆鸟瞰图

显/隐 |
博物馆位于公园主入口区,对于生产基地而言,有展示品牌形象的作用,需要彰显其体量;而对于生态公园来说,博物馆应融入园区,需要弱化其体量。面对这一矛盾,我们想到了“亭”这一传统建筑形式:“亭”在中国传统造园技法中有点睛之用,多为园林的视觉焦点;同时“亭”为开敞式结构,供人停留、观景,和“园”融为一体。我们便把“亭”这一手法用于博物馆设计,使建筑既可以展示品牌形象,也可以成为公园景观的一部分。
▼ 晴峦萧寺图(局部)

▼ 在公园东侧看博物馆

▼ 在公园西侧看博物馆

▼ 黄昏中的博物馆

光 |
我们把博物馆的屋顶切分,高低错落,形成多个天窗。阳光穿过天窗照入室内,连通了室内外,模糊了空间之间的界线。随着时间的推移,光线也在持续变化。在不同的时间和不同的季节,阳光都赋予了博物馆特有的空间氛围。
▼ 天光分析图

▼ 博物馆入口大厅

▼ 开放式展示区

▼ 从展示区看博物馆大厅

共生 |
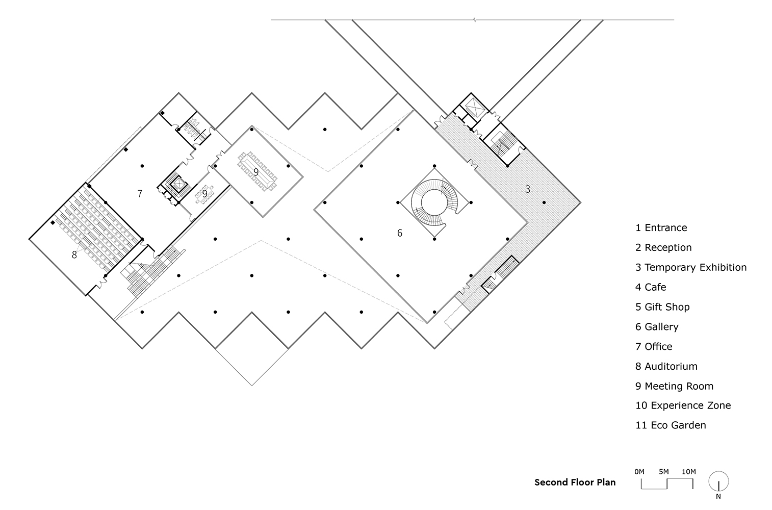
博物馆有三大功能区:会议区、展示区和体验区。会议区对内,供集团内部使用;展示区对外,供市民参观;体验区两者兼用,内外共享。我们把会议区和展示区各自独立设置,互不干扰;在两大功能区顶层设置共享体验区,用空中连廊连通。最后把生态公园引入室内, 结合参观流线设置立体花园,让会议、展示、体验和自然公园生态共生。
▼ 概念意向图

▼ 博物馆轴测分解图

▼ 博物馆功能分析图

▼ 首层平面

▼ 二层平面

▼ 三层平面图

▼ 四层平面图

▼ 屋顶平面图

▼ 剖面图

▼ 立面图

项目名称:白象食品博物馆
项目地址:河北省保定市高碑店市
设计公司:SITUATE上下四方建筑事务所
主创及设计团队:张明慧、蒋昊、宋瑞铭、许羲、张朕
联合设计:崔刚建/北京联结咨询有限公司
策划咨询:李青/白象文化研究院
咨询团队:陈超、赵雅婷、王晓倩
建筑面积:10000㎡
空间主材:铝单板、玻璃幕墙、拉丝不锈钢、实木多层板、玻璃砖、水磨石
项目客户:白象食品集团
编辑版权©灵感LAB,禁止以灵感LAB编辑版本进行任何形式转载

关注公众号

关注抖音号