探索一次“生命的意义” |
蒋勋说“孤独是与自己在一起”。
在城市飞速发展的今天,每个人的心中都长出了一座孤岛,孤岛之外的物质空间在膨胀,快速的时空变换遮蔽了孤岛之内精神世界的需求。这个时代最大的幸运是,越来越多的企业意识到了这个现象背后的成因,他们不再只是传统消费领域中只关注产品的卖货人,他们更成为了探索新消费时代的先驱者。生意,也可以理解为“生命的意义”,焦点在哪里,成果就在哪里。倍轻松就是这样一个企业,而我们则与倍轻松一起,借助“设计载体”探索了一次“生命的意义”。
▼倍轻松研发办公总部“未来体验厅”

倍轻松奋达办公区为其生产技术部门下成立的研发办公室,为品牌再生产、科技再造的中间过程提供高质量服务。本项目是一乘建筑为倍轻松研发办公所设计的全新空间,业主诉求为希望通过空间设计传递出公司做人做事的正念价值观、以及科技以人为本的企业理念。
▼奋达科技园毗邻石岩水库,从侧窗能够瞭望到水面一角

▼现场照片

本案灵感很大一部分源于创始人马赫廷董事长之于倍轻松的经营哲学。设计团队从一开始研究倍轻松品牌时便发现,蕴藏在倍轻松企业背后的,是一套以阳明心学为基础的底层经营逻辑:敬道、厚德、正心。
▼倍轻松员工手册

▼倍轻松网页截图

▼倍轻松品牌解读


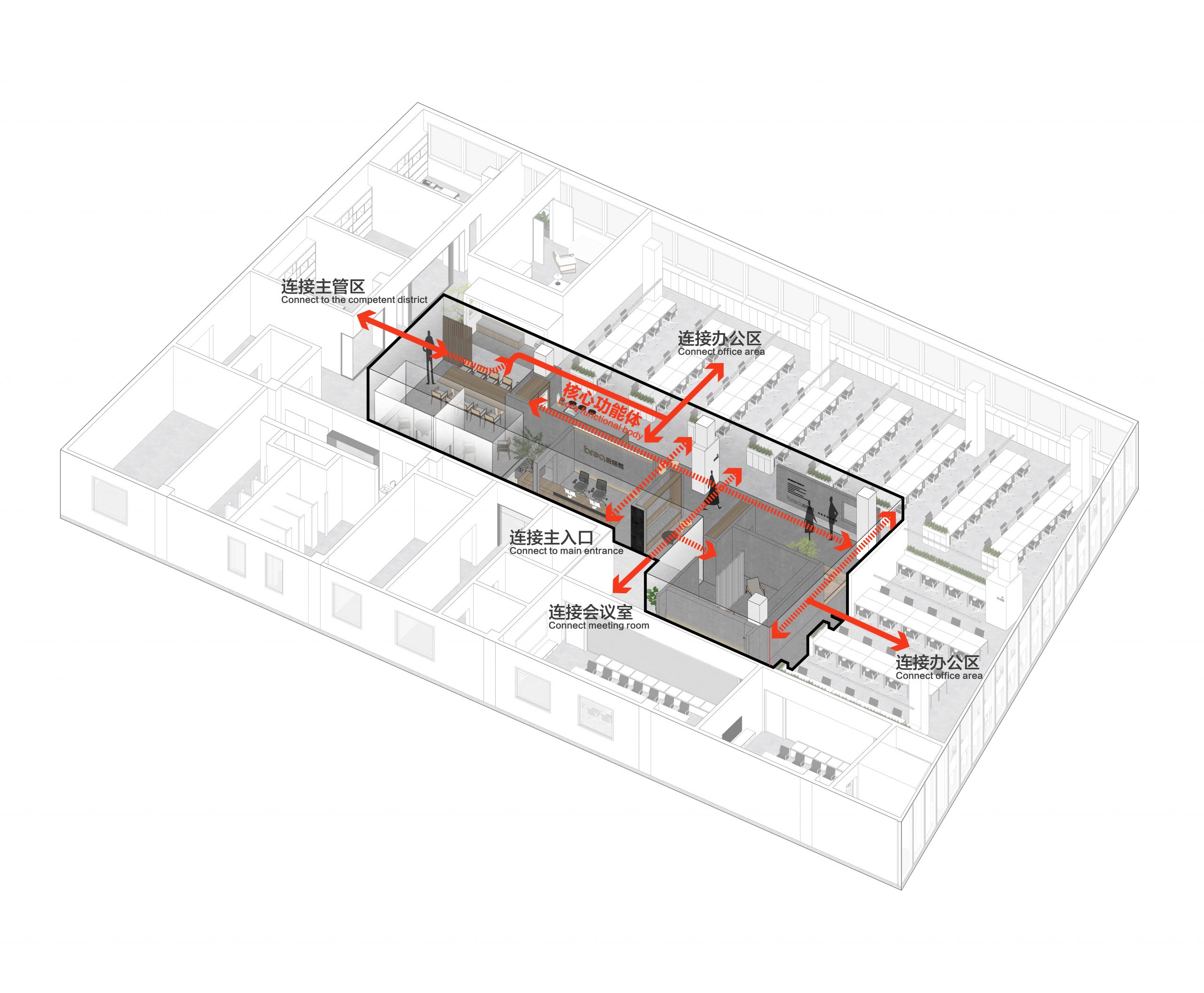
一乘以品牌为切入点,将“企业产品理念”本质的关系转译为空间使用的功能诉求,从复杂的空间形态中提取出契合业主企业文化的四个空间关键词,以此诠释空间的功能结构以及对应的使用形态。办公室位于塔楼高层,设计师将公共办公功能设置在视野和采光最佳的位置,将优质资源为所有人所共享,体现出企业公平、平等的价值观。在办公区的中间则设置了核心功能区,既作为内外的功能过渡,同时也形成内外的动静分区。
▼空间结构生成

空间序列以“体块”出发,从二维到三维渐次生成,一个个“盒子”转换为功能的载体。
[ 给思想一个空间 ] | Leave a space for thoughts
▼需求思考

在业主原本提供的功能需求中,没有设置产品展示和体验,而本案作为产品的研发办公室,一定会接待众多的客户与上下游企业,设计师经过反复的思考和功能排布,在征得业主同意后,最终从紧张的面积需求中,开辟出展示区和一个独立的体验厅,结合公共空间形成产品和文化展示,为品牌建立用户桥梁,传达企业的品牌精神价值。
▼倍轻松研发办公总部“未来体验厅”光彩变幻


产品体验厅“未来体验厅”是本案最独到的设计之处,设计师希望通过对“光”的主动设计,来传达人类对未知的探索精神,暗藏着倍轻松通过科技探索人类未来健康的方式。产品体验厅是一个独立的空间,空间体的六个面均采用混凝土质感的材料,传达出企业的品牌观念是回归本质,中心的墙体设置了一块平面的光洞,它仿佛是通向宇宙未来的窗口,隐喻着人类对科技文明的勇敢探索。
▼倍轻松研发办公总部“未来体验厅”


参观者在这个沉浸式的空间中可以感受到宁静与平和,而这也是倍轻松作为健康领域的科技企业希望传递给用户的体验感受。
[ 空间的本质-无界体验 ] | The essence of space – boundless experience
项目原始场地非常规整,限制为中轴对称的格局,一乘设计团队巧妙地将传统园林的精神体验引入空间序列。根据原始场地规整的格局,设计在空间的组织和梳理中,沿着空间中轴,将各个公共功能单元依次置入,同时穿插多个空间节点,以园林空间意象的思考,打造起承转合,层层递进的空间序列。
▼核心功能拆解图

原有的采光朝向限制了空间,但也给出了新灵感,设计巧妙地以“游走”的空间形式串联,承序游园之感,让光线在空间中次第渗透。整个公共核心区形成了一种流动的空间格局,给人以“无边界”的回归本质的空间体验。
▼空间动线分析图

▼空间的流淌 / 倍轻松前台空间


黑白灰与木质的比例营造出的高级感,以及黑色线条在矩形体块之上形成的韵律感,都让空间过渡充满着吸引力与进一步探访的好奇心。
▼空间的流淌 / 无边界的展示体验





依据功能的区域划分而形成的回路,是空间表达的明线,依据视觉引导动线则是心理与行动牵引的暗线,大至建筑空间,小到元素的转折,以及体块故意为之的动线约束,皆是为这一主动策划来服务。产品展示区通过混凝土片墙的穿插、退让、留洞,形成大道至简的空间状态。极简的现代风,与自然氛围的亲近融于一堂,重新定义人与城市与自然的关系。产品展厅设置在核心动线上,与“未来体验厅”相邻,是一个开放式的空间。通过对视觉感受的提纯,有意设置的对望洞口,都使得展厅与其相邻空间的感受相互融合。大面积的开窗成全了室内与室外的互联,空间中裸露的原顶是设计匠心的一部分,空间场景始终在为办公和展示的体验而助力。对空间的解构与重组,让空间形成了内建筑的表达手法。
▼开放办公区



[ 无界-光的指引 ] | Boundless – guidance of light
▼光的指引 / 展厅局部

空间是流动的,在每一个洞口的另一头,都是光在指引。这是一种行为上的隐喻,表达了科学研发工作者在无尽宇宙中对事物底层逻辑的探索。
▼前台接待区

▼光的指引 / 通道尽头的灯光装置

▼光的指引 / 链接前台与公共空间的通道

由光与空间形成的相互渗透的体验,是建筑赋予人的心灵对话,突破实体的框架,延伸思想的广域。
[ 植物与光 ] | Plants and light
居于前台西侧的接待与讨论区,空间的分割则采用了透明的玻璃,两侧视线上的穿透,强化整体的视觉联系。空间周围延续了挑檐游廊,配合透明的墙体,是园林意向里花窗的提炼性表达,呈现似隔非隔的多重层次景观。
▼前台接待区


▼开放交流区



带有过渡性质和户外庭院似的轻松氛围,可以看作是类似内部一样的外部空间,和类似外部一样的内部空间。而内里空间完整的形态和水泥色墙漆的应用,更加强了这种“模糊内外”的用意。
▼已投入使用的公共吧台区

[ 结语 ] | Epilogue
一乘团队希望本次设计以办公空间为载体传达企业自身的文化精神,创造属于品牌自身的精神与态度,空间中建构通透与闭合的元素符号,通过提取与品牌精神相关的理念及经营哲学逻辑,演化为设计方法置入空间,以视线穿插来产生强烈戏剧性的空间体验。
▼“未来体验厅”


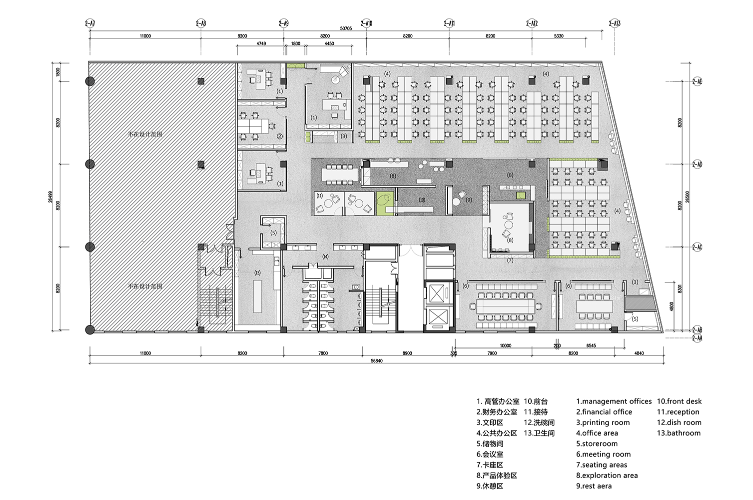
▼平面图

项目名称:倍轻松-奋达科技园-研发办公室
项目地址:深圳市
设计公司:一乘建筑空间设计事务所
主创及设计团队:王晶晶、张永彬、贺子英、郭妍辛、叶润泽
项目业主:深圳市倍轻松科技股份有限公司
施工单位:姚为红
灯光设计:PUDI
办公家私:SIMPLE森朴
建筑面积:1000平方米
空间主材:混凝土、木材、玻璃、瓷砖、拉伸铝网、不锈钢
摄影师:彦铭
编辑版权©灵感LAB,禁止以灵感LAB编辑版本进行任何形式转载

关注公众号

关注抖音号

HelloArt艺术客厅设计·杭州 | Artdeep艺痴设计

“Soothin素庭”家具旗舰店 · 深圳 | BloomDesign绽放设计

Tanatap框架花园 · 雅加达 | RAD+ar

极氪中心 · 苏州阳澄湖服务区 | HATCH Architects 汉齐建筑

盛泽坛丘缫丝厂改造 · 苏州 | 平介设计

柏林冷战博物馆展陈设计·德国 | TCHOBAN VOSS Architekten