TASTE NATURE 是一个推崇原材料自然清新的法式甜点品牌。该项目是一个连接后方烘焙房的餐饮空间,业主希望我们为前方34平米的小空间设计具有舒适安静就餐谈话区、带有手冲咖啡台且契合品牌理念的小型甜品店。
▼外观

在外墙面和原始铁门无法进行改动的状况下,我们试图将入口向内延伸以得到基于内部的新“外立面”。
▼入口空间

进门处设置了1/4圆的“屏风”和弧形天花板,压缩进门空间得到具有邀请感的入口,并使后方形成安全的谈话就餐区。路过的行人可以看到内部在吧台制作手冲咖啡的咖啡师从而获得这是一个休闲餐饮空间的明确信息。
▼从入口看向吧台

正对入口的吧台功能被简化,使其以轻盈的状态呈现。在满足进行手冲咖啡制作与蛋糕装盒工作的同时,拉近客人与工作人员间的距离,使交谈放松和平等。
▼咖啡吧台

▼看向后门

弧形的定制坐凳部分嵌入“屏风”,并被设计成可移动的形式以满足3-4人组队就餐的状况。
▼可移动座位

▼用餐区

在项目进行之初与业主交流的过程中,业主提出希望我们能以白色为主基调设计一个干净明亮的、“温柔”的空间。我们将不同功能的白色道具进行块状处理,使其如蛋糕置于餐盘上。不同材料带来微妙的色彩变化。绿色大理石的道具、可变色的灯带成为点缀,并为空间提供了更多功能与气氛上的可能性。
▼弧形的定制坐凳

我们为空间设计并制作了部分灯具及产品包装,使其与空间匹配。
▼定制灯具




▼TASTENATURE系列包装

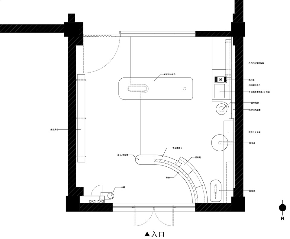
▼平面图

▼剖面图

项目名称:恬然Taste Nature甜品店
项目地址:浙江省杭州市拱墅区祥符街道学院北路50号
设计公司:杭州不序建筑设计事务所
主创及设计团队:潜坤、寿如松
施工单位:杭州智悦装饰工程有限公司
项目业主:TASTE NATURE
项目年份:2020年
建筑面积:34㎡
空间主材:大理石、浅色岩板、不锈钢、浅色人造革
摄影师:潜坤
编辑版权©灵感LAB,禁止以灵感LAB编辑版本进行任何形式转载

关注公众号

关注抖音号

Harudot By Nana 咖啡烘焙店 · 泰国 | IDIN Architects

「BA」新法式烘焙 品牌空间设计 · 重庆 | 勉强设计事务所

CHOUCHOU面包店 · 广州 | 几何形态设计

爱乐信糖水局 OI-LOK-SHUN BUREAU·佛山 | 广州韶康室内设计有限公司

EUEU餐饮店 · 广东惠州 | SORA索拉设计

Holiland Travel – 好利来超时空旅行旗舰店设计·上海 | SLT