喜悦,从来不在我们的掌控之中,而快乐常常都是可以掌控的。我们要掌控,掌控今晚可预测的快乐,掌控今晚去向迷离的旅⾏,掌控故事流动的方向,掌控未来的方向。什么是未来?现在,是过去的未来;未来,是现在的未来。寸匠熊猫NANA基于CONTROL品牌概念,提取漳州的城市精神,以极具机械感,科技感,未来感的空间体验,诠释专属于CONTROL的酒文化。
我们将竭尽全力的和那些过时的、盲信的、被罪恶的博物馆所鼓舞着的旧信仰做斗争。我们要反抗陈腐过时的传统绘画、雕塑和古董,反抗一切在时光流逝中肮脏和腐朽的事物。我们要有勇于反抗一切的精神。
——《未来主义绘画宣言》翁贝特·波丘尼
粗野、先锋、无畏 | 将是空间的本质因素
打破COCKTAIL&WHISKY BAR的传统定义,将源自未来主义的粗野、先锋、无畏的美感,通过艺术感与科技力构筑的室内场景加以体现。营造出身处未来世界的空间错觉。设计从建筑外立面开始发力,将扭曲若水的网路转译为建筑的一部分,二维的墙面带来出三维的视觉体验,从而把商业的普通立面转变成一座极具美感的雕塑。同时为商业提供更加积极的视觉吸引力,吸引着来往消费者的眼球,进一步吸引消费者进入空间促进消费。


整个空间打破所有框架和定义,从建筑立面到室内空间,无处不在的圆润曲线与网格,让整个空间充盈着现代化的数字氛围。除此之外,无论是玄关处的太空人,还是大吧台的 “孕育中的人类”,都是专门为CONTROL创作的。除了增加空间的辨识度之外,也是为消费者提供“打卡位”,消费者可以装置为背景拍照发布于社交平台,吸引更多其他年轻的猎奇客群。





宏伟的世界获得了一种新的美 |速度之美 |从而变得丰富多姿
如同未来主义绘画一般,在室内设计上我们也试图呈现具有动感美学的空间,利用有机的曲线,变幻的光线,带来多感官沉浸式的空间体验。有机的曲线构成的三维视觉网络墙面,打破空间内的硬质边界感与轴向关系,也打破横平竖直的构图并呈现具有先锋性的视觉体验。



光与色彩是空间的主题。灯光可以根据不同的音乐风格、场景需求改变颜色和闪烁的频率,也最大限度兼顾不同的消费人群。当灯光反射至不锈钢墙面,整个光线遍布空间各个角落,空间体验也转变成为完整沉浸式体验,整个空间赋予一种由光线、色彩带来的变换与动感。




时间已于昨日停滞 |
无论何种设计方式,都需要从商业命题出发去呈现一种简单的状态。让时间在此停止,让消费者愿意在空间内更长时间地停留,让来过的消费者愿意再次前往甚至引流。从而营造高粘性的商业空间。








为了满足这一目的,首先需要满足新时代背景生活方式的场所认同感和归属感,在设计之初,考虑功能、运营、场景的极致化,以CONTROL(掌握)未来为核心进行空间设计之余,我们也进行了品牌方面的设计。品牌设计上我们沿用了空间设计中的迷离、先锋、科幻之感,不同纹理材质、高饱和色彩、辅以各类复古科技元素,呈现同空间知行合一的视觉感染力。










让空间设计与品牌设计进行通力合作,让消费者在满足基层的应用、心理(体验感)层面之外,还从社会层面给消费者带来的社会身份认同感(财富、地位、成就)与社会身份归属感(阶层、族群、社交)。从而驱动消费者对品牌从认同到喜欢乃至忠诚的核心驱动力。
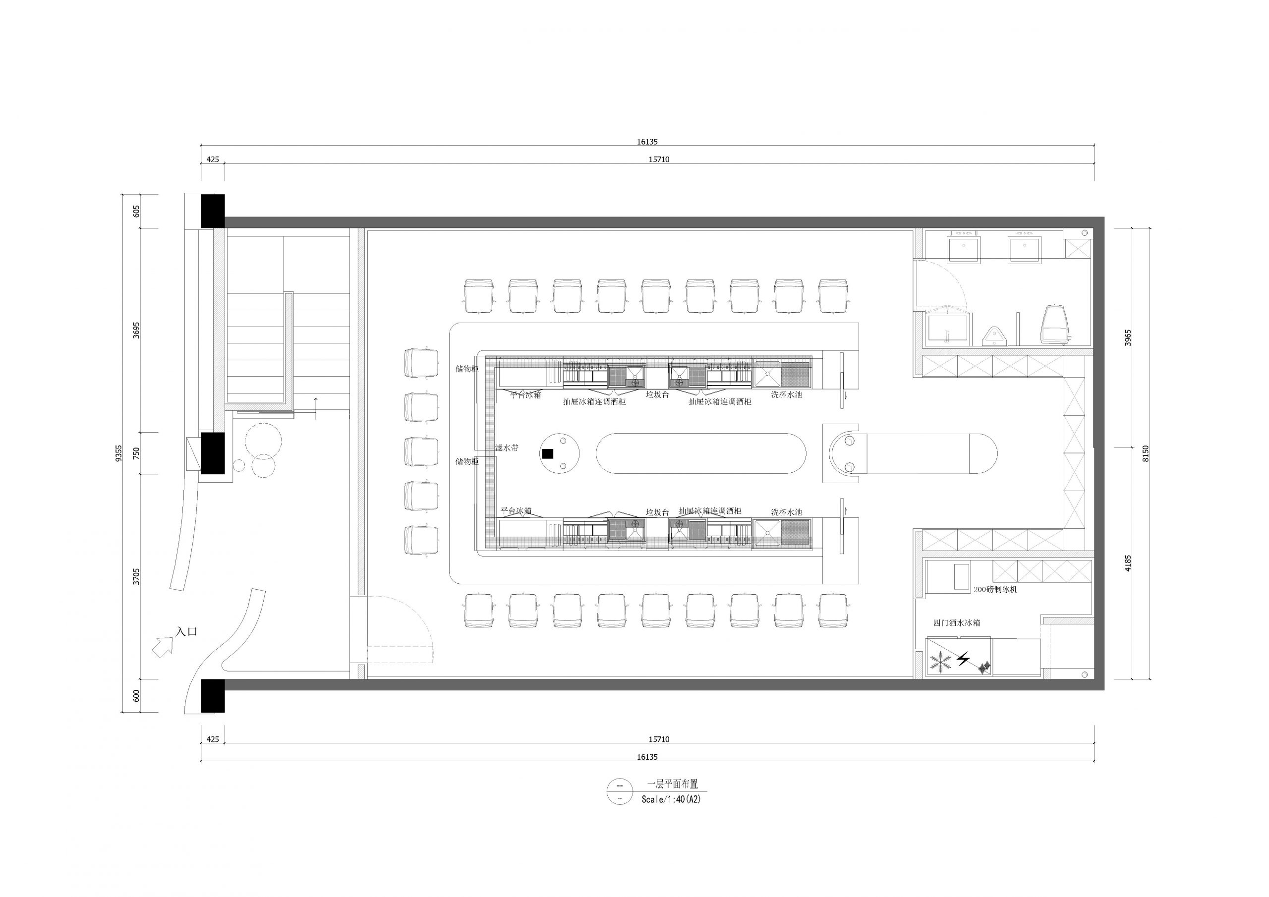
▼一层平面图

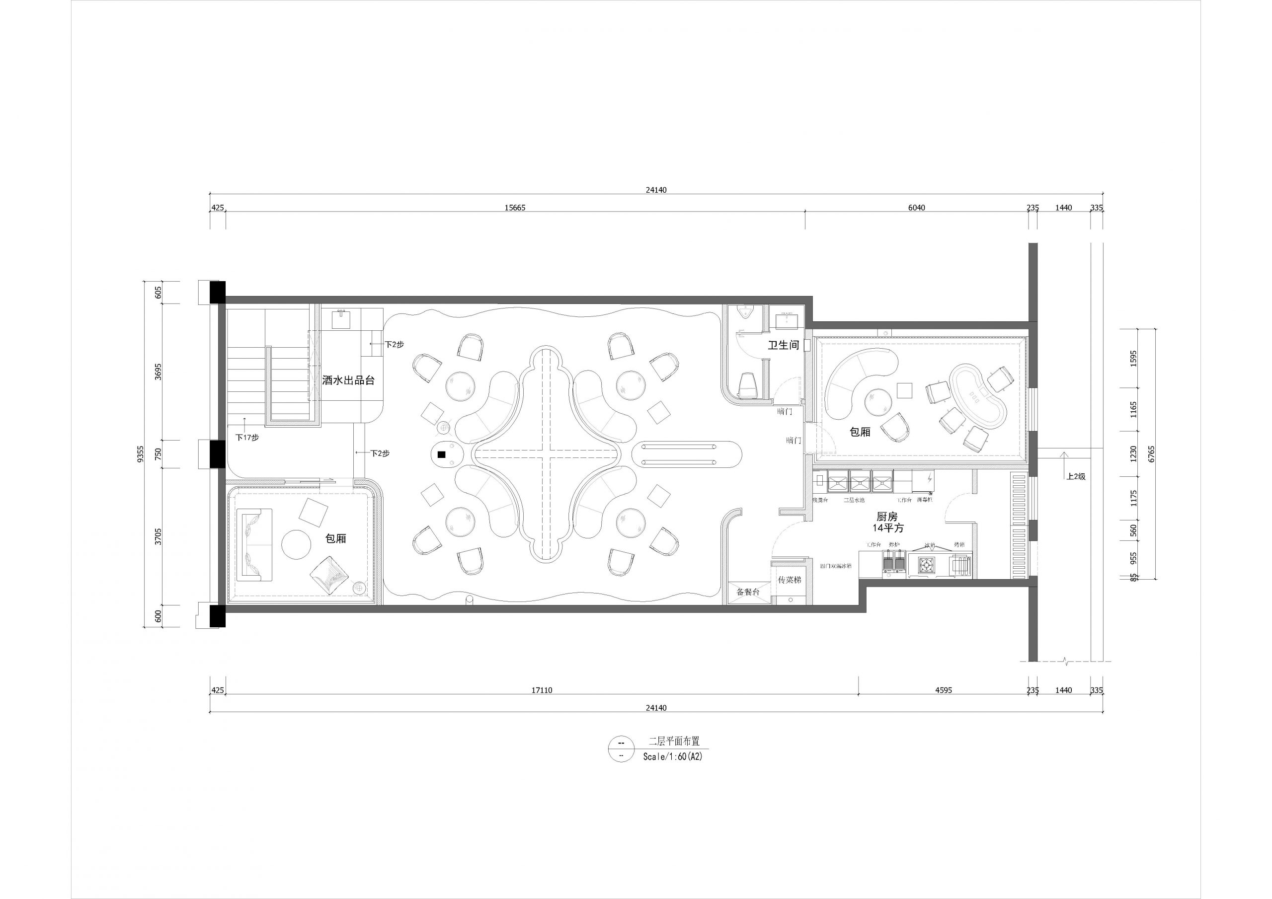
▼二层平面图

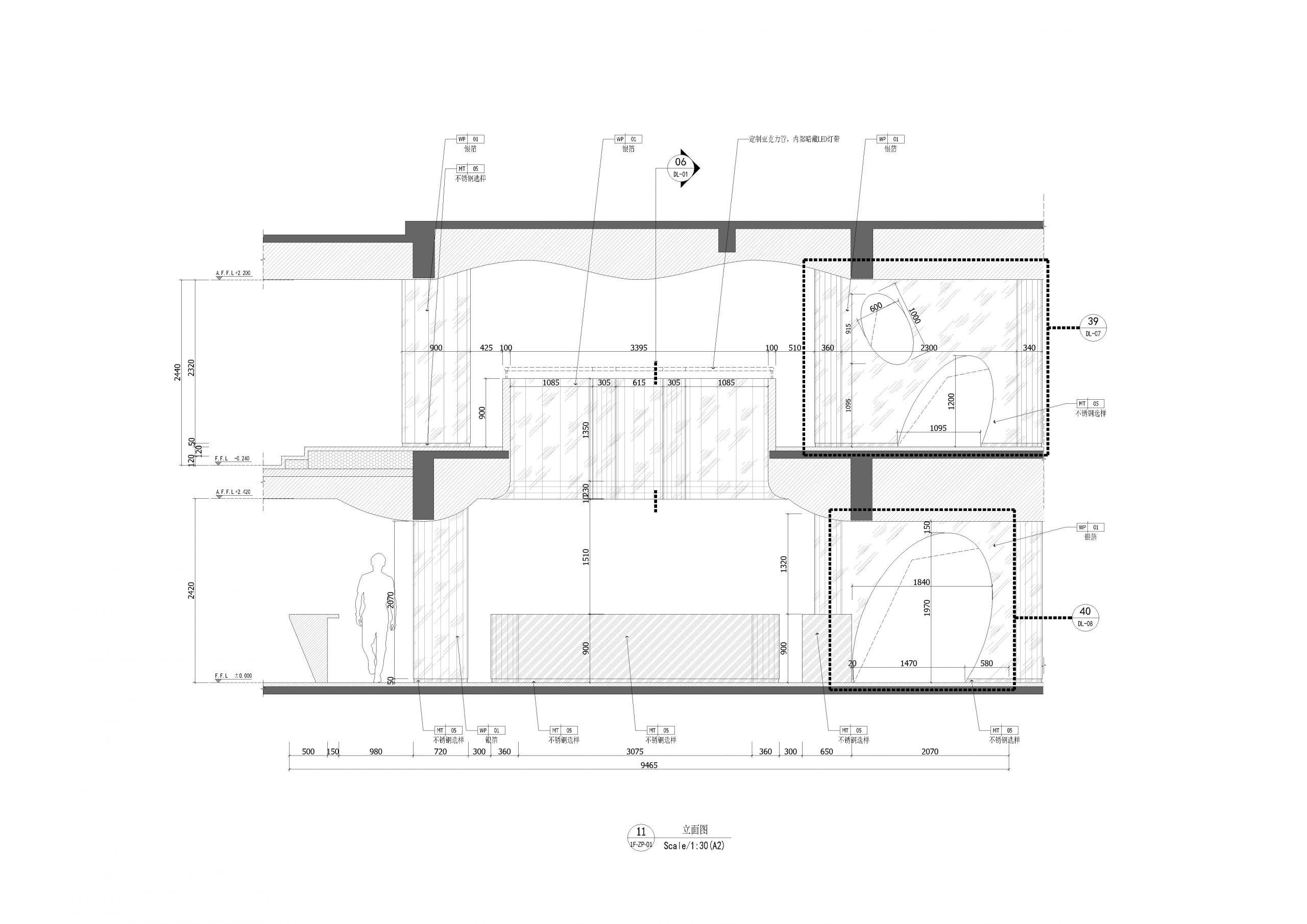
▼立面图

▼剖面图

项目名称:CONTROL酒吧
项目地址:福建省漳州市腾飞路华元小区南门沿街店面27幢8号
设计公司:寸匠熊猫NANA团队
主创及设计团队:蔡泫娜
设计年份:2021.3
建成年份:2021.11
建筑面积:300㎡
空间主材:不锈钢、不锈钢方格、夜光美缝剂、银箔、砖
摄影师:刘星昊_言隅建筑空间摄影 羽视觉
编辑版权©灵感LAB,禁止以灵感LAB编辑版本进行任何形式转载

关注公众号

关注抖音号

北平机器Peiping Machine精酿啤酒吧(纳福店) · 北京 | ATLAS

檀谷单向空间及十三邀小酒馆 · 北京 | BUZZ庄子玉工作室

EUEU餐饮店 · 广东惠州 | SORA索拉设计

Hello Tea Bar茶酒调饮研制所 · 杭州 | 哈喽品牌设计Hello Brand Design

Rick Bella意大利餐厅 · 广州 | 朴开十向

Cuisine de Garden BKK主题餐厅设计·泰国曼谷 | ntegrated Field