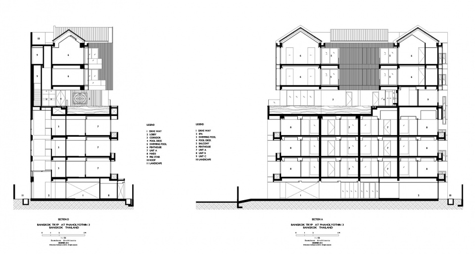
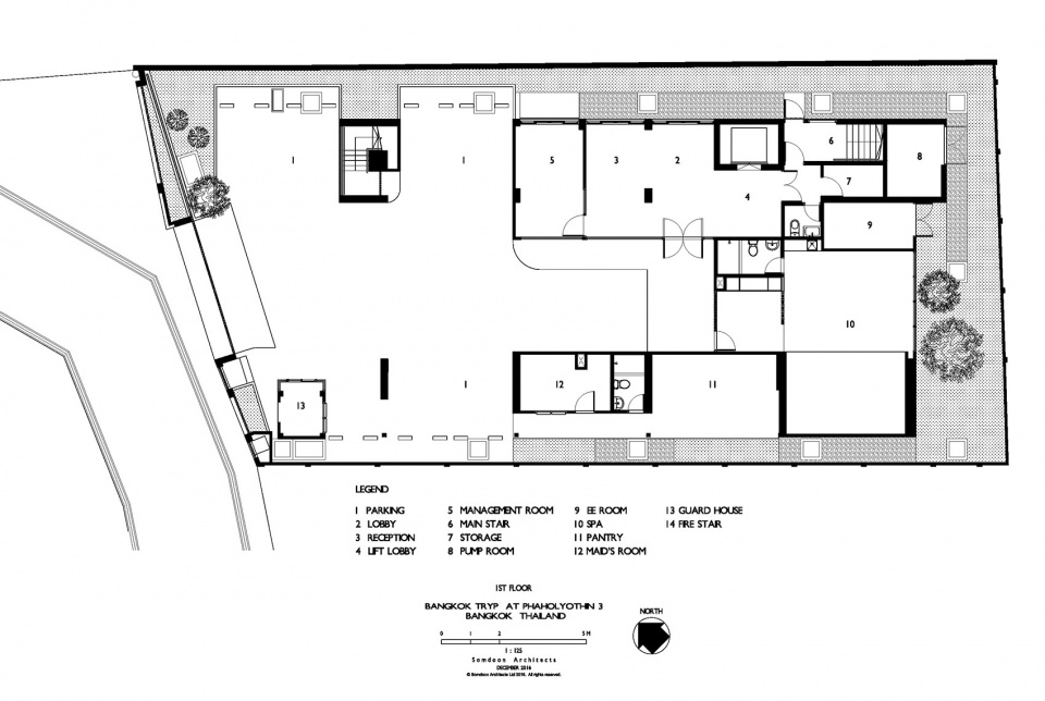
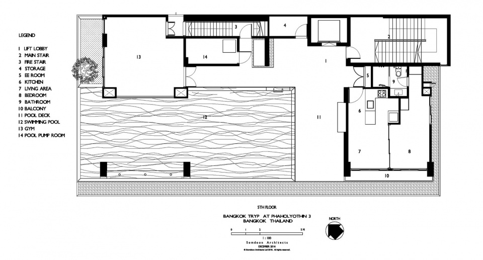
曼谷TRYP是一个位于市中心的混合住宅项目,绿地空间十分有限。因此,建筑师希望用“垂直花园”整合建筑方案,为住户和邻里创造出绿色环境。项目中,大堂、spa、停车区域布置在1层,对外的公寓式酒店是二到四层,公共设施在五层,业主的私人住宅则安排在六和七层。
▼项目远观,场地位于市中心,绿地空间有限

▼建筑下层为酒店,中间布置公共设施,上层是私人住宅

▼建筑立面,用“垂直花园”整合建筑方案

楼梯、电梯和走廊位于建筑物北侧,对面是一幢高层建筑。建筑师还设计了三层高的半室外单人走廊,作为连接酒店部分的交通空间,可为一层大堂提供自然采光。酒店房间基本上都能够欣赏到西部和南部的美景。建筑立面上配置有高度合适的树与灌木,与铝制的格栅相组合,遮挡住每户的空调外机。建筑立面的设计不仅满足了遮阳的需求,更拉近了景观与客人之间的距离。所有公共设施都位于5楼,分隔开业主居住的上层与下层的公寓式酒店。游泳池一直延伸至建筑边缘,为住户提供了绝佳的视野,健身房位于正前方,视野所及是游泳池和花园的美景。
▼建筑立面,植物与铝制格栅遮挡住空调外机


▼绝佳的泳池视野

▼大堂的自然采光

▼通高的交通空间

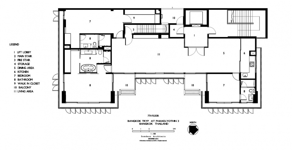
建筑师为私人住宅的两层设计了别致的坡屋顶,看上去就像在大楼顶端放置了小房子。客厅的位置与屋顶形状对应,以保证空间高度最大。房屋主要朝南,需要用铝制格栅完全遮挡。暖棕色的立面格栅不仅为建筑遮阳降温,也保证了业主能够享有私密的空间和开阔的视野。
▼位于顶层的私人住宅,别致的坡屋顶

▼单人走廊,被铝制格栅遮挡

▼私人住宅,坡屋顶加高起居室

▼房间环境

▼夜景

▼分析图

▼立面图

▼剖面图

▼首层平面图

▼公共层(五层)平面图

▼顶层(七层)平面图

项目名称:曼谷TRYP
项目地址:泰国曼谷Soi Phaholyothin 3号
设计公司:SOMdoon Architects
项目负责人:Punpong Wiwatkul
主创及设计团队:Thitipan Chueasaward ,Nutchanun Boontassaro, Panit Limpiti,Sumet Kamolsiriwat ,Waraluk Panthongkham ,Suchada Kasemsap
室内设计:Jadesupa Pipatsuporn,Kitiya Dicharat
客户:Teep Property Co.,Ltd
结构工程师:SET COM Company Co.,Ltd.
MEP工程师:Forward Design Co.,Ltd.
景观设计师:SOMdoon Architect
室内设计:SOMdoon Architect
环评顾问:Earth&Sun Co.,Ltd.
施工单位:V&N Design & Construction Co.,Ltd.
室内承包商:D’MIX Design Co.,Ltd
立面承包商:Totaline Solution Co.,Ltd
设计年份:2012.12
建成年份:2016.8
建筑面积:1650㎡
空间主材:木材 金属 铝板 铝合金
铝立面:Fameline products Co.,Ltd.
内置家具:Rodena Co.,Ltd.
卫生洁具:Hafele (Thailand) Ltd.
摄影师:Ketsiree Wongwan
编辑版权©灵感LAB,禁止以灵感LAB编辑版本进行任何形式转载

关注公众号

关注抖音号

Escenario SHIROKANE住宅综合体·日本 | Sasaki Architecture + YTRO Design Institute

“天府新兴•和盛田园东方”田园综合体·成都 | 袈蓝建筑设计事务所

盐城穆沟村新型农村社区设计实践 · 江苏 | 南大设计院周凌工作室

迪桑娜皮具工业园·广东 | Diller Scofidio + Renfro

崖顶咖啡厅及塔居 · 山东 | 迹·建筑事务所(TAO)

Bottière Chénaie 综合体·法国 | KAAN Architecten