这间酒店综合体被构思为巴黎旅程中的一个重要节点,它的起始路径被设置在屋顶的接待处,以一种逆向的方式来引导人们感受巴黎。开放的空间序列在一个无限的连续体中展开,在纯白的城市背景中成为一处壮观的存在、一个惊人的场所、一种不受束缚之事物,或者说,一种对于巴黎的独到解读。
▼建筑外观

建筑的容量使其得以成为“有人居住的城市景观”,其外观延续了Dentreprises Binet商务酒店的特征(由Atelier Zundel Cristea设计),犹如一本展开的书,所有建筑元素的搭配都遵循了同样的秩序语言:基座部分被适度地拉长,使上方的体量能够像山脊般延伸,同时为下方带来纵深的空间。堆叠的造型为每种特定的功能提供了足够宽敞的空间,使整个建筑得以在一种极为清晰的秩序下不断向高处攀升。
▼建筑在纯白的城市背景中成为一处壮观的存在

▼整个建筑在一种极为清晰的秩序下向高处攀升

▼由下至上尺寸逐渐变大的开窗

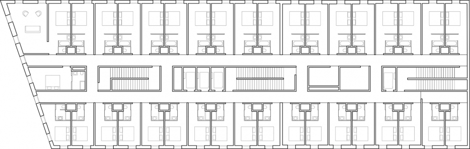
不同的功能区域被谨慎而连贯地排布在核心筒两侧,每层楼的平面布局无论从空间还是技术的角度上看都十分缜密且高效。中央核心筒容纳了纵向的交通空间,为建筑带来更多可以灵活使用的空间,同时也使立面得到重充分的利用。总体上看,建筑的平面简单、合理且易于辨识。在每个楼层,走廊的两端均设有宽阔的窗户,使呈横向分布的室内空间能够充分地享受自然光照。
▼平面图

▼中央核心筒容纳了纵向的交通空间,使立面得到重充分的利用

▼从城市公路望向建筑

▼场地平面图

▼功能分布示意

项目名称:蒙马特Binet综合体
项目地址:法国巴黎
客户:Spie Batignolles Immobilier
设计公司:ECDM
主创及设计团队:Agence MOHA
建成年份:2018年
建筑面积:7025㎡
空间主材:石材 钢 混凝土 玻璃
摄影师:Salem Mostefaoui
编辑版权©灵感LAB,禁止以灵感LAB编辑版本进行任何形式转载

关注公众号

关注抖音号

Moos Euterpe保障性住房 · 荷兰 | Concrete Amsterdam

Stadthaus M1 绿城酒店和公寓项目·德国 | Barkow Leibinger

郑州万科城·郑州 | 朴隅建筑设计有限公司

蒙马特Binet综合体·巴黎 | ECDM

MAD“南京证大喜玛拉雅中心”最新建造现场·南京 | MAD

上海崇明体育训练基地一期项目1、2、3号楼 ·上海 | 麟和建筑工作室