在巴黎建立分公司之后,荷兰建筑事务所 KAAN Architecten 与法国事务所 PRANLAS-DESCOURS architects & ASSOCIATES (PDAA)共同设计了位于法国里尔的新法兰西工艺贸易商会建筑(CMA)。该建筑是国际竞赛的优胜作品,并且作为城市的新门户,是 80 年代 Euralille 区、Euratechnologies和Eurasante 共同合作的城市发展项目的一部分。
▼建筑外观

工艺贸易商会(CMA)位于前 17 世纪沃班要塞的边缘,现在被一条高速环路所取代。北面,一条铁路和里尔植物园(Jardin des Plantes de Lille)界定了基地的边界。南面,阿贝拉德街划定了一个由KAAAN Architecten 建筑事务所和 PDAA 共同设计的范围更大的总体规划区域。它包括了 CMA 商会总部大楼、五座建筑组成的未来综合体和一个公园。公园横跨场地,作为附近花园的沿伸。
▼场地平面图

▼场地鸟瞰

建筑整体简约剔透,拥抱并保护了场地周边的自然环境,加强了该地区不同元素之间的对话。
▼简约剔透的体量

▼立面细部

贸易工艺商会坐落于宽阔的平原上,占地 80 米×80 米。拔地而起的三层建筑为手工艺业的教育和发展提供了空间。每一层都与景观保持着紧密的联系:在二楼,KAAN Architecten和PDAA设计了一个突出的悬臂,框起了里尔和花园的景色。
▼二层设计了一个突出的悬臂

▼广场视角

该建筑两个位于不同楼层的公共广场引人注目。位于底层的是新的工匠广场(南面),而二层北面是一个宽敞的露台。露台使项目与阿拉斯郊区街(Rue du Faubourg d’Arras)通过一座桥连接起来。两个公共入口都由一系列具有代表性的空间连接起来:南部广场、入口大厅、礼堂及其门厅,以及一个可以俯瞰北部露台的宽阔开口。此外,每个入口服务于两个主要的建筑区域:学徒培训中心和致力于手工艺事业发展的办公室。
▼首层空间

▼从入口大厅望向广场

▼广场

▼从门厅望向礼堂

▼礼堂内部

▼舞台区

▼从礼堂望向大厅

CMA商会围绕着六个天井对称布置,为大部分流线空间提供自然光线,将建筑划分为四个部分使其承载不同的功能。六个天井沿伸至每个楼层。内部功能从本地和区域管理到研究和教育设施(美发学校、烹饪学校、实验室、教室)各不相同。新建筑充当商会和相关培训学校的枢纽。这些学校以前分散在里尔老城市中心。
▼天井和交通流线示意

▼大厅

▼天井为大部分流线空间提供自然光线

为了与城市肌理和周围景观加强联结,建筑师非常注重使用自然材料:玻璃和石材。首层和三层由模块化的双层玻璃幕墙包裹,确保了室内环控制和高质量的声学效果。每个通高模块都有一个可以打开的内部抛光铝窗和一个固定的外部玻璃面板。外部玻璃面板上渐变的反光印刷图案,使建筑融入自然的同时,在视线高度创造出一个完全透明的区域。
▼首层和三层由模块化的双层玻璃幕墙包裹

▼外部玻璃面板上渐变的反光

▼每个通高模块都有一个可以打开的内部抛光铝窗

此外,天井外墙的大型抛光铝窗框设计独具匠心,包裹瓦尔斯石英岩。这是一种非常结实、紧凑和抗霜冻的瑞士石材。这种石材也被用于庭院地板和入口大厅,以强化室内外之间的联系。
▼天井

▼外墙的大型抛光铝窗框包裹瓦尔斯石英岩

▼天井为室内带来采光


▼被天光照亮的走廊

CMA商会希望通过这种坚实的材料,在吸纳和反映周围的景观,可以同时作为一个新的地标性元素脱颖而出,打造一个具有公共性的人文景观。
▼一个新的地标性元素

工艺贸易商会与奥赛的ISMO分子科学研究所代表了 KAAN Architecten 建筑事务所最近在法国设计的两个项目。另外两个大型综合设施也处于建设的最后阶段:一个靠近里尔的EuraTechnologies,另一个在南特的ZAC Bottiere-Chenaie。与此同时,位于巴黎奥贝维利耶(Aubervilliers)的一处写字楼综合体,目前处于设计阶段。它将重振巴黎从前的边境物流区。
▼夜间整体鸟瞰

除了 CMA,PDAA 最近还交付了一个由停车场、办公室和体育设施组成的 Black Diamond 项目。该项目获得了 ADC 年度综合建筑奖。PDAA 目前正在开发几个建筑和城市尺度的项目。例如凡尔赛 Satory 区域的开发,这是大巴黎地区的主要项目之一(55 万平方米的城市项目,12 公顷的公园和测试轨道)。
▼场地平面图

▼首层平面图

▼立面图

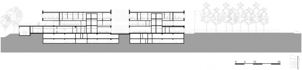
▼剖面图



项目名称:新法兰西工艺贸易商会建筑
项目地址:法国里尔,CS 1201059000工匠广场
设计公司:KAAN Architecten + PRANLAS-DESCOURS architect & ASSOCIATES
主创及设计团队:Christophe Banderier, Delphine Bresson, Louise de Chatellus, Sebastian van Damme, Gustav Ducloz, Paolo Faleschini, Raluca Firicel, Marylene Gallon, Michael Geensen, Renata Gilio, Julie Heathcote-Smith, Kees Kaan, Maud Minault, Hannes Ochmann, Vincent Panhuysen, Fabien Pinault, Ismael Planelles, Jean Pierre Pranlas-Descours, Ana Rivero Esteban, Anne Roullet, Dikkie Scipio, Marianne Seyhan
客户:Chambre de Métiers et de l’Artisanat Hauts-De-France, Lille
结构顾问:EVP Ingénierie, Paris
财务顾问:Martin&Guiheneuf
安装和可持续发展顾问:Martin & Guiheneuf
立面顾问:巴黎T/E/S/S d'ingénierie工作室
厨房安装顾问:Creacept restauration,Lezennes现场工作:URBATEC,Bussy Saint Georges
景观:TN+,巴黎
控制办公室:DEKRA Construction, Lesquin
结构:Demathieu et Bard,Marcq en Baroeul
立面:PMN, Lesquin
室内固定装置、门、窗:SDI、Haubourdin Baswaphon
天花板:Enterprise Michel、Saint Brévin les Pins
技术楼层:Comey SAS、Villeneuve sur Yonne
绘画:Cabre、Courrières
石质地板:Surface carrelage, Wattrelos
木地板:Parqueterie de la Lys, La Chapelle-
电力:Cegelec Nord Tertiaire, Wasquehal
管道、通风和供暖:MGC、Templemars
电梯:Schindler, Wambrechies
固定家具:Atelier 41, Saint-Calais
厨房设备:Cofrino, Lambersart
现场工作:COLAS,Nancy
设计年份:2009.7-2013.1
建成年份:2019.1
建筑面积:14,800㎡
空间主材:石材 石英石 金属 铝 立面系统 幕墙
摄影师:Fernando Guerra FG+SG; Sebastian van Damme
编辑版权©灵感LAB,禁止以灵感LAB编辑版本进行任何形式转载

关注公众号

关注抖音号

成都SKP · 四川 | Sybarite

紫马岭公园香山书房 · 中山 | 广东中山建筑设计院股份有限公司

零碳公园:深圳City Walk新标地 · 深圳 | 欧博设计

第11届江苏省园艺博览会博览园未来花园(景观) · 南京 | 北京多义景观规划设计事务所/北京林业大学园林学院

齿轮花园 · 四川德阳 | 大小营造

嘉兴南湖天地·嘉兴 | PLAND博度景观设计工作室