该项目以开放的整体化空间使MiCasa家具店综合体得到了完善。MiCasa综合体包含A栋建筑(由studio mk27在2007年设计)、B栋建筑以及新设计的C栋建筑(本案)。
▼建筑外观

▼建筑立面由聚碳酸酯板和白色的金属板构成


多功能的内部空间满足了灵活的布局需要,兼具了商店、展览空间和艺术家临时住所的功能。所有的空间均集中在一个宽敞的体量之中:15x15m的楼层面积,以及7.5米的天花板高度。双层高的对称中庭空间悬挂着野口勇设计的吊灯,凸显出室内空间的纵向维度。
▼下沉庭院


▼入口立面




▼所有的空间均集中在一个宽敞的体量之中




▼双层高的对称中庭空间悬挂着野口勇设计的吊灯,凸显出室内空间的纵向维度



为了建造一座轻盈的展馆,设计师采用了木结构系统,在延续事务所近期实践研究主题的同时,也实现了干净且迅速的施工过程。一系列胶合木框架为建筑赋予了大约15米的跨度。在二层楼板处,每两个模块会使用钢条进行一次支撑。下层结构支撑了建筑的表皮,在立面和立柱间形成间隙,从而带来更加明显的韵律感,凸显出木结构元素的简洁特质。
▼一系列胶合木框架为建筑赋予了大约15米的跨度


▼下层结构在立面和立柱间形成间隙

▼室内细部


▼木结构系统细部



相比于A栋建筑“笔直”的钢结构以及B栋建筑粗犷且裸露的混凝土结构,C栋建筑如同一盏日式的灯笼,轻轻地漂浮在地面之上。建筑的外墙由两种材料折叠而成:上方使用了半透明的聚碳酸酯板,下方则使用了白色的金属板材。在白天,周围的树木在立面上投下阴影,为室内空间带来诗意的光影变化。
▼夜间的建筑如同一盏发光的日式的灯笼



▼庭院视角


▼夜间鸟瞰

▼轴测示意图

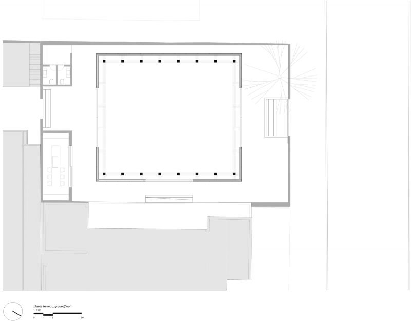
▼首层平面图

▼夹层平面图

▼剖面图

项目名称:MiCasa家具店C栋
项目地址:巴西圣保罗
设计公司:Studio mk27
主创及设计团队:marcio kogan、marcio tanaka、carlos costa . diana radomysler . laura guedes . mariana ruzante . mariana simas . oswaldo pessano . raquel reznicek . renata furlanetto . samanta cafardo . tamara lichtenstein
工程师: luis esteves、 edson Kimura、silvio lopes
施工单位:all’e engenharia
设计年份:2015.5
建成年份:2018.2
场地面积:460㎡
建筑面积:230㎡
空间主材:木材 胶合板 钢 聚碳酸酯
摄影师:fernando guerra
编辑版权©灵感LAB,禁止以灵感LAB编辑版本进行任何形式转载

关注公众号

关注抖音号

科威特驻文莱大使馆· 文莱 |Architectkidd + Arkitek Rekajaya

又见五台山剧场 · 山西 |北京市建筑设计研究有限公司朱小地工作室

首都国际会展中心(CIECC)· 北京 |Zaha Hadid Architects

CIFF2024 广州三朗家具展厅·广州 | 互建筑

九江渡口文化空间改造 · 佛山 | 玳山设计

山下有松空间 · 北京 | 建筑营设计工作室