整个建筑综合体是由多个相邻地块拼接的,可以从Trnaca的三条不同的老街进入。重建前地块上建有一些带有走廊的多层住宅,彼此之间通过后院连接。建筑师将这些相邻地块连接起来以后,内部形成了一个新的开放空间,建筑师再在新的空间里加入新的元素。Nádvorie(庭院)的新公共空间就是这样形成的。
▼建筑概览

人们可以从Trojicne广场,Stefanikova街的三个原有入口进入建筑群,未来计划在Pekarenska街再开设入口。重建的建筑曾经是带走廊的多层住宅。
▼建筑的三个原有入口


重建后的建筑综合体有着多种半开放性和私密性功能,可以以多种方式不同频率来激活新的公共空间——比如餐厅露台和零售商店每天都能给公共空间生机,偶尔的不定期活动能让公共空间充满活力。四棵树,建筑物表皮的改造,照明,一起定义了多功能中央空间。可移动的花盆里都种上了绿植。人行道处处体现着之前考古调查和历史上土地分割的痕迹。
▼南部体量外立面

▼西部体量外立面

▼北部体量外立面

▼北部竣工部分保持之前建筑的质量和标准,并存留了钢架结构以及和建筑群东部的连接部分

▼从建筑北部望向南部

我们尽最大努力来保留重建对象中所有重要的时间轨迹,统一材料语言,遵循重建原则。基地内部建筑的历史可追溯至14世纪,在16到20世纪之间随时间而变化着。这些建筑承载着不同的功能——文化中心,餐厅,面包房,零售店,办公室,或是相互联系的阁楼公共办公空间。
▼北部建筑入口大堂

▼从大堂望向庭院

▼餐厅入口

▼餐厅室内概览

▼吧台

▼用餐区域

▼厨房

▼通往地下仓库的楼梯


▼地下仓库

▼面包店

北部竣工部分保持之前建筑的质量和标准,并存留了钢架结构以及和建筑群东部的连接部分。北部有一个文化中心的露台,学生宿舍,零售商店,以及一个和重建部分衔接的餐厅。不同时间段完工的建筑之间风格的转换, 赋予整个空间一种特别的氛围,尤其是识别度极高的吊顶结构——从哥特式到巴洛克式再变为混凝土天花板。混凝土地板和家具让整个空间保持统一风格。
▼北部建筑学生宿舍

▼公共空间

▼北部建筑文化中心大堂

▼文化中心

建筑师在建筑南部设计的多功能体量作为建筑本体的延伸,为新建庭院注入活力。从平面图上看,它很窄,大部分朝向庭院。新建体量与原建筑高度一致,立面材料却有明显的区别。南侧新体量规模向Trojicne广场的方向逐渐扩大。规律的节奏感和所使用的材料使立面的形态产生了对比效果。周围的结构保留了自然的城市肌理。南部体量的布局很简单,竖向依次分为出租空间,办公空间,以及阁楼公寓。
▼南部建筑走廊

▼南部建筑交通空间

感谢 Vallo Sadovsky Architects 予gooood分享以下内容。更多关于:Vallo Sadovsky Architects on gooood. Appreciations towards Vallo Sadovsky Architects for providing the following description:
整个建筑综合体是由多个相邻地块拼接的,可以从Trnaca的三条不同的老街进入。重建前地块上建有一些带有走廊的多层住宅,彼此之间通过后院连接。建筑师将这些相邻地块连接起来以后,内部形成了一个新的开放空间,建筑师再在新的空间里加入新的元素。Nádvorie(庭院)的新公共空间就是这样形成的。
The entire complex was created by joining multiple adjacent sites, which had access from 3 different old – town streets in Trnava. The sites originally contained multi-storey houses with a passage and were connected through backyards. After uniting these adjacent sites, a new open space was created. The space was then complemented with new objects. This is how the new public space of “Nádvorie”(Courtyard) was created.
▼建筑概览,over view
人们可以从Trojicne广场,Stefanikova街的三个原有入口进入建筑群,未来计划在Pekarenska街再开设入口。重建的建筑曾经是带走廊的多层住宅。
The entire complex has access from Trojicne square, Stefanikova street by 3 original entrances with a future plan to enter from Pekarenska street.The reconstructed adjacent buildings were originally built with multi-storey houses with a passage.
▼建筑的三个原有入口,3 original entrances
重建后的建筑综合体有着多种半开放性和私密性功能,可以以多种方式不同频率来激活新的公共空间——比如餐厅露台和零售商店每天都能给公共空间生机,偶尔的不定期活动能让公共空间充满活力。四棵树,建筑物表皮的改造,照明,一起定义了多功能中央空间。可移动的花盆里都种上了绿植。人行道处处体现着之前考古调查和历史上土地分割的痕迹。
A diversity of semi-public and private functions are contained on the premises, which activate the new public space in multiple ways on a daily basis (terrace of the restaurant, retail) and occasionally (events). The multifunctional central space is defined by four trees, surface alterations, and the illumination. The green is filled with mobile pots. The findings from the archeological survey and historical parcellation are presented in the pavement.
▼南部体量外立面,south volume façade
▼西部体量外立面,west volume façade
▼北部体量外立面,north volume façade
▼北部竣工部分保持之前建筑的质量和标准,并存留了钢架结构以及和建筑群东部的连接部分,The north completion adheres to the mass of the original, as well as the steel structure with a connection to the eastern object of the complex
▼从建筑北部望向南部,Looking south from north of the building
我们尽最大努力来保留重建对象中所有重要的时间轨迹,统一材料语言,遵循重建原则。基地内部建筑的历史可追溯至14世纪,在16到20世纪之间随时间而变化着。这些建筑承载着不同的功能——文化中心,餐厅,面包房,零售店,办公室,或是相互联系的阁楼公共办公空间。
We tried to preserve all important time traces in reconstructed objects, taking care of the unified material language, respecting the principles of restoration. The history of the buildings dates back to the 14th century, with changes from the 16th-20th century. Objects cluster a number of different features as a cultural centre, restaurant, bakery shop, retail, offices or co-working spaces in the inter-linked attic.
▼北部建筑入口大堂,Entrance hall in north part
▼从大堂望向庭院,Looking out from the lobby to the courtyard
▼餐厅入口,Restaurant entrance in north part
▼餐厅室内概览,Restaurant interior view
▼吧台,bar counter
▼用餐区域,dining area
▼厨房,kitchen
▼通往地下仓库的楼梯,the staircase leading to the underground warehouse
▼地下仓库,the underground warehouse
▼面包店,bakery
北部竣工部分保持之前建筑的质量和标准,并存留了钢架结构以及和建筑群东部的连接部分。北部有一个文化中心的露台,学生宿舍,零售商店,以及一个和重建部分衔接的餐厅。不同时间段完工的建筑之间风格的转换, 赋予整个空间一种特别的氛围,尤其是识别度极高的吊顶结构——从哥特式到巴洛克式再变为混凝土天花板。混凝土地板和家具让整个空间保持统一风格。
The north completion adheres to the mass of the original, as well as the steel structure with a connection to the eastern object of the complex. It contains a terrace for the cultural centre, student accommodation, retail and connects to the restaurant in the reconstructed part. This translation between several periods of completions gives it a specific atmosphere, recognizable notably through the ceiling structures, changing from gothic vaults to the baroque beam ceiling or concrete slab. Concrete floor and furniture help unify the whole space.
▼北部建筑学生宿舍,Living area & student residence in north part
▼公共空间,public space
▼北部建筑文化中心大堂,Cultural center lobby in north part
▼文化中心,cultural center in north part
建筑师在建筑南部设计的多功能体量作为建筑本体的延伸,为新建庭院注入活力。从平面图上看,它很窄,大部分朝向庭院。新建体量与原建筑高度一致,立面材料却有明显的区别。南侧新体量规模向Trojicne广场的方向逐渐扩大。规律的节奏感和所使用的材料使立面的形态产生了对比效果。周围的结构保留了自然的城市肌理。南部体量的布局很简单,竖向依次分为出租空间,办公空间,以及阁楼公寓。
▼南部建筑走廊,corridor in south part
The new mixed-use object in the southern part is designed as an extension, built to the blind wall of the neighbouring building in order to activate the newly created courtyard. The object has a narrow floor plan and is mostly one-sided towards the courtyard. The heigh is held with the original part while the material is vertically divided and creates a gradual increase of the scale from the house in Trojicne square. The contrasting morphology of the facade is moderated by the regular rhythm and the used materials. The surrounding structure thus preserves the natural character of the inner city fragmentation. The simple layout is vertically divided into a rentable space, office space and an attic apartment.
▼南部建筑交通空间,circulation space in south part
▼南部建筑展览空间

▼南部建筑阁楼公寓

▼夜景

▼街区轴测图

▼街区轴测图

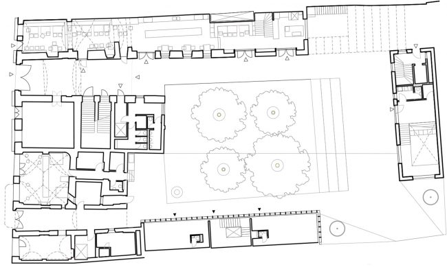
▼首层平面图

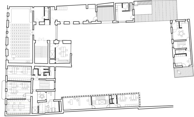
▼二层平面图

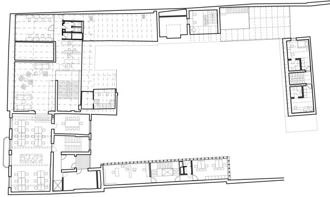
▼三层平面图

▼四层平面图

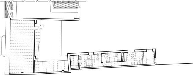
▼地下一层平面图

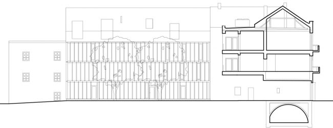
▼北立面图

▼东立面图

项目名称:Nádvorie综合体改造
项目地址:斯洛伐克
设计公司:Vallo Sadovsky Architects
编辑版权©灵感LAB,禁止以灵感LAB编辑版本进行任何形式转载

关注公众号

关注抖音号