




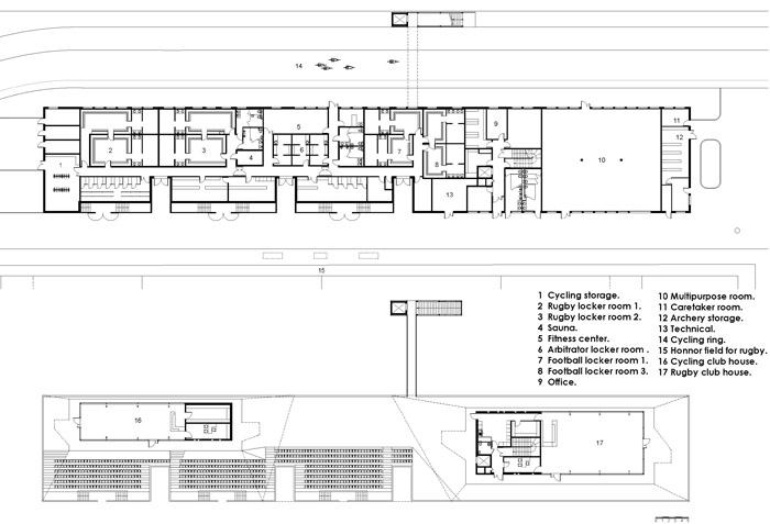
这是由OLGGA Architectes设计的一个体育场综合体。这个建筑位于法国巴黎Grande Synthe的一个体育场中,这里可以展开五项不同体育项目。该体育综合体有617个座位,两个会所,更衣室,社区娱乐室和相关行政办公区。场地为当地4000名会员提供服务,有三个橄榄球球场,两个足球场,一个射击场,一个跑道,一条1300米长的自行车道,以及即将完工的小轮车赛道。场地占地12公顷,建筑宛若体育场灯塔,屹立在体育场入口处。建筑在地平线上伸展,清晰的轮廓与自然相容。庞大的建筑是一个简练的平行四边形体,笼括了客户所需要的各种功能。紧凑的排布得以让观众席和会所存在,同时可以适应各种不同运动项目需求。其不是面向某个特定区域的单向性构筑,而是开放的面对所有运动。底部,屋顶,以及露台完整而统一。
材料选择耐久以及便于维护的。基础采用混凝土,里面包含的功能有橄榄球及足球设施屋,行政办公室,桑拿浴室,举重室。光滑的外观随着阳光的移动而产生不同的变化。上层部分色彩更明亮,两端是橄榄球及自行车会所,中部是一个掏空区域。会所的玻璃面板可以看见外面的全景景观。会所外表皮是由玻璃,中空空间,微穿孔张拉织物构成的双层表皮系统。这使得建筑具有更好的热工性能以及提供更好的比赛环境。同时为俱乐部成员提供一个具有隐私的舒适的,可以欢快讨论的理想场所。
宽敞的露台提供了开阔的视野。沉重结构巧妙的隐藏,空间脱离了结构的制约,这是一个非常好的公共空间。看台可以从主题建筑或者一侧的人行天桥进行访问。人行天桥的线路设置,可以保证自行车比赛时,观众流线与比赛流线分开。浅色的席位与主体建筑形成优雅的搭配。
建筑师与客户遵循可持续发展原则,保护生态环境,让该建筑成为环境建设的榜样。严格遵守THPE2005标准,采用耐用材料,加强热工效率,内部使用节能照明。屋顶配置700平方米的太阳能光伏电池板,所产生的电力将卖给电网。其中40平方米的太阳能光伏电池板产生的热源可以满足建筑热水加热能源的50%。并在北部安放了风力发电装置,同时运用雨水储藏系统,让一个8立方米的水箱提供厕所和清洁用水。这个全力打造的低碳建筑无疑是公共建筑的楷模。

OLGGA Architectes是由Alice Vaillant, Guillaume Grenu 和 Nicolas Le Meur在2006于巴黎创建。2008年,他们的里尔分公司开设。现在工作室运营良好。OLGGA这个名字表达着这个建筑事务所充满活力与俏皮的理念。他们拒绝平庸,认为建筑应与场地适应,并在场地中独特,在大量的分析工作之后,得出一个全新的结果。




























项目名称:Du Littoral体育馆
项目地址:法国门德斯大道
设计公司:OLGGA Architectes
主创及设计团队:Alice Vaillant, Guillaume Grenu, Nicolas Le Meur
客户: City of Grande Synthe – France
施工单位: Sogeti ingénierie
施工管理:Demathieu et bard / Couturier / Littoral couverture / Loison / Blas / Kiecken / Denis / Cri / Dpr /Crystal / Ineo / ThyssenKrupp / Screg.
项目年份:2011.9
建筑面积:2433㎡
环境认证:THPE 2005
空间主材:金属线网 光伏电板
摄影师:©Julien Lanoo
编辑版权©灵感LAB,禁止以灵感LAB编辑版本进行任何形式转载

关注公众号

关注抖音号

成都SKP · 四川 | Sybarite

多龄化混居社区·哥本哈根 | C.F. Møller and Tredje Natur

嘉兴南湖天地·嘉兴 | 上海天华建筑设计有限公司

岱山南侧社区卫生服务中心、养老院、社区教堂·南京 |东南大学建筑学院UAG城市建筑设计工作室

南开大学新校区图书馆及综合业务楼·天津 | 天津市建筑设计院绿建策划中心

无锡田园东方二期·田园综合体·无锡 | 袈蓝建筑设计事务所