1958年,苏州工人文化宫落成,作为兼具休闲和政治功能的城市公共活动空间,向广大职工和群众开放,承载了几代人的集体记忆;2016年,因苏州城市区域的扩张、职工人数的增长以及带来的对综合性文体建筑的需求提升,苏州市总工会计划在苏州市相城区修建第二工人文化宫。
▼整体透视

消解体量
相城位于苏州古城区北部,是一个正在快速发展中的新城区。场地周边的城市环境呈现了中国城市发展中具有普遍性的新城同质现象,其背后反映出城市历史文脉消逝的危机。
▼方案生成

如何弥补城市文脉割裂、记忆消失的现状?如何让建筑设计更有责任地介入城市环境?在文化宫的设计中,建筑师放弃了传统文化宫中心集合式的布局,而以苏州传统民居的空间布局模式进行组织。
▼空间组织

我们将大体量的综合空间“化整为零”,依据不同动线分解为若干独立单元,有序布置于场地之中,形成苏州传统民居街巷聚落。不同聚落之间由院落链接,通过与建筑单体的有机组合,建构主次分明的室内外空间组织系统。整体功能布局垂直分层,各个功能单元既相对独立又互相联系。
▼连绵的坡屋顶

▼屋顶细部

通过回应传统民居的空间模式,建筑单元被有机地组织于屋面之下,仿佛是一片有着连绵坡屋顶的苏州街巷聚落,映射出古城图景、重拾起城市记忆。
▼南立面局部之坡屋顶

▼北立面

取意园林
在中厅及庭院的空间设计实践中,我们从直接的空间体验出发而非对形式的单纯模仿,取意园林背后的设计思想,从而对苏州园林内在本质予以再现和重释。
▼东侧庭院

中厅的空间借鉴了留园中部主景区,或登山越水,或远眺俯瞰,或步移景异的空间处理手法。曲折的“悬桥”,取意留园自远翠阁至闻木樨香轩的经典 “游廊”,在半空蜿蜒漫回,联系多维度多层次的功能场景,承载不同状态的人,人与景在“桥”所建构的立体动线上相遇,获得连续性的游园式漫步体验。
▼中心庭院

▼以园林的意象来营造多维共享空间

▼17m弧形玻璃幕墙

不同高度的立体化园林隔而不断,以园林的意象来营造多维共享空间。西侧庭院向城市开放并与中心庭院相接,延续至内部中庭,形成连续的园林意象——绿植花木,廊桥步道,木色的异形块体仿佛夕阳下的嶙峋山石,山野意趣,别致呈现。
▼连续的园林意象——绿植花木,廊桥步道

解放空间
空间组织系统的中心被有意识地留出,用以形成第二工人文化宫的共享空间——中厅。富有园林意境的中心庭院沿中厅一侧展开,室内外的空间界面被弧线的全玻璃幕墙消解;中厅内部置入一座形态自由而舒展的“悬桥”,作为联系各单元的通路。
▼中厅无柱空间、天窗采光与庭院景致

▼悬桥末端形成阶梯式观众席

▼中厅活动场景

▼“悬桥” :轻盈舒展的漂浮状态

▼“悬桥” 细部

为再现园林自由、疏阔、明朗的流动空间,作为主要公共活动空间的中厅需要从结构的束缚中释放出来。高20米、长约140米、最窄处约20米的中厅内部被设计为连续无柱空间,顶部以连续的玻璃天窗引入自然光线,通过白色铝制格栅板获得柔和变幻的光影。17米高的全玻幕墙将庭院景致引入内部,弧线的形式加宽了“自然山水画卷”的横幅。无立柱的“桥”以刚拉杆“悬”于中厅之中,营造出一种轻盈舒展的漂浮状态。
▼曲折的“悬桥”取意留园“游廊”

▼游园式的漫步体验

▼“悬桥”刚拉杆

回应建造
大跨度连续折屋面完美呈现的背后,装配式结构体系的综合应用大大节约了施工周期,取得了良好的经济效益。更为重要的是,建筑师创造性地应用了现代钢木结构回应地域木构传统。考虑减少钢结构锈蚀带来的寿命折损问题,与结构工程师充分沟通后,建筑师在方案阶段即选取了适宜的结构体系融合空间设计——泳池空间不设吊顶,直接采用了双向交叉张弦胶合木梁结构体系。富有韵律的钢木结构是连续折屋面的内部延续,更是对传统建筑结构美学的致意。
▼室内篮球场

▼钢结构大跨度连续折屋面

在苏州第二工人文化宫的空间实践中,建筑师并未一味追求大体量的“地标”属性,而是将一大型文化综合建筑消解并重构为苏州传统民居街巷聚落,从直接的空间体验再现和重释苏州地域建筑特征,修补建筑与城市文脉的关系、重拾城市的集体记忆。
▼游泳馆钢木结构:双向交叉张弦胶合木梁结构体系

我们所倡导的‘延续’不是目的,而是一个不断发展的过程,是一个需要不懈探索、不断创新的过程。
▼南立面夜景

▼夜景鸟瞰

▼总平面图

▼一层平面

▼二层平面

▼三层平面

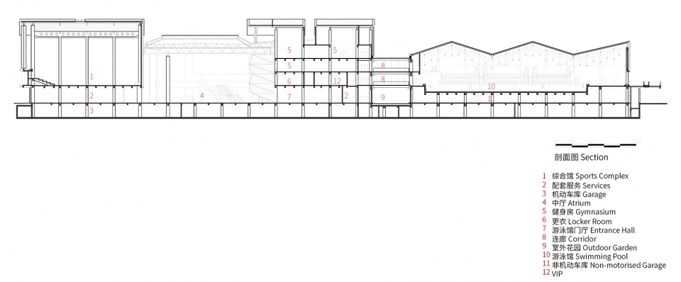
▼剖面图

▼ 细部构造

项目名称:苏州第二工人文化宫
项目地址:江苏省苏州市相城区玉成路219号
设计公司:中衡设计集团
客户: 苏州市总工会
主创及设计团队:冯正功、高霖
建筑:胡湘明、曹丽婷、王涛、章宁
结构: 张谨、谈丽华、路江龙
景观: 胡砚、张骏腾、陈雨菲、高霞
电气:傅卫东、杜广亮、刘义勇
暖通:张勇、冯卫、姜肈锋、冯琳
给排水:薛学斌、程磊、杨俊晨
弱电:王志翔、王啸
幕墙:沈筠、张成宝、许峰、章启明,陆体操
绿建:李铮
内装: Harold Guida,宋洋
泛光:胡洪浪
VI :王登坤
建筑面积: 80,743㎡
撰文:冯正功、高霖、吕彬、陈婷
编辑:陈婷
空间主材:石材 木材 金属 钢 混凝土 玻璃
摄影师:侯博文,秦伟
编辑版权©灵感LAB,禁止以灵感LAB编辑版本进行任何形式转载

关注公众号

关注抖音号

嘉兴南湖天地·嘉兴 | 上海天华建筑设计有限公司

成都自然博物馆-成都理工大学博物馆 · 四川 | Pelli Clarke & Partners + 中国建筑西南设计研究院有限公司

UCCA陶美术馆 · 江苏宜兴 | 隈研吾建筑都市设计事务所

“天府新兴•和盛田园东方”田园综合体·成都 | 袈蓝建筑设计事务所

盛泽坛丘缫丝厂改造 · 苏州 | 平介设计

笙白艺术空间 · 北京 | 日常建造

改新村乡村振兴配套基地 · 普洱 | 平介设计

Byrasandra社区中心· 印度 | Samira Rathod Design Atelier

又见五台山剧场 · 山西 |北京市建筑设计研究有限公司朱小地工作室

首都国际会展中心(CIECC)· 北京 |Zaha Hadid Architects

在水美术馆·山东日照 | 石上纯也建筑设计事务所

九江渡口文化空间改造 · 佛山 | 玳山设计