网球场与活动大厅一体化空间。该综合体坐落于布尔根施托克地势最高处,海拔高度达874米。由菱形结构拼合而成的巨大穹顶形如岩洞水晶,让人印象深刻。
镶嵌在布尔根施托克的钻石
这栋既作为网球场地又容纳重大活动的建筑综合体,因其造型奇异的屋顶而得名“钻石穹顶”。该建筑坐落于瑞士布尔根施托克的山脊上,是当地酒店和旅游机构的配套设施。原厂地的建筑可追溯至1872年。随着2011的重修工程启动,Katara Hospitality Switzerland AG企业为当地建筑风格掀起了现代化的浪潮。
▼鸟瞰图

前期调研成果
有关这栋综合体建筑和俱乐部重建工程的前期调研工程开始于2010年,此次重修计划需基于对一个世纪前该建筑的重新思考。该项目的原始构思为一个户外网球场馆以及分设两边呈对称形态的两栋室内网球场馆。独特的外貌使其成为山坡上的风景线。令人惊叹的玻璃顶棚覆盖在巨大的开放空间之上,如同镶嵌在地势中的巨大水晶石。通向网球场的服务道路直接行驶入挑出的建筑之下,此处如同入口廊道一般,将来往车辆迎入并引向停车场等公共区域。一百年前,这栋老俱乐部建筑就沿着路边而建。如今新的建筑间会议室,衣帽间和接待处都布置在建筑入口处的中央区域。建筑前院融入了全新的步行区域,并以此强化了布尔根施托克度假区的低流量交通特征。
▼建筑倚靠在山坡上

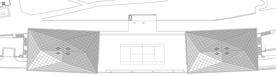
在获得了前期的研究成果之后,设计师秉承基本的设计理念并进一步开展了全新的设计构思,即为建筑加入如水晶般的屋顶与大厅。两栋对称的室内网球馆以一个户外网球场地为中心对称布局,到了冬季,位于中央的户外场地还可以转换为户外冰场。重新设计和规划的网球场馆成为山坡上最引人注目的风景。
▼中心对称布局

老俱乐部适应新挑战
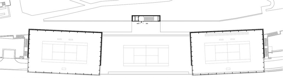
原有的俱乐部建筑建造于街道一侧。在全新的规划中,该部分被安置在步行道之下,面朝户外网球场地。俱乐部的入口位于两栋室内网球场馆的正中间。俱乐部房间,衣帽间和接待处彼此相接位于俱乐部建筑的中心区域。俱乐部内部地面全部铺以Ramflex橡胶地板。冬季里穿着溜冰鞋的运动者们可以轻松的从户外穿过室内到达衣帽间,化解他们冬日里的通行不便。而配套的升降梯等服务设施也为身体不便的体育爱好者们提供了更为便利的参与途经。
▼俱乐部面朝户外场地

精美的形态和材料
建筑整体以户外网球场为中心呈中央对称形态。两栋拥有水景屋顶的室内场馆与中央场地紧密相接。包含酒吧,衣帽间和接待处的俱乐部建筑背靠山坡坐落在场地一侧。在原场地规划中,俱乐部建筑被安置在道路一侧。与之不同 ,新的场地规划将俱乐部建筑布置在道路下方,来访者从街道上穿过入口廊道后便可进入建筑之中。货车和多层停车场入口位于网球场下方,因此在球场内休闲的访客不会受到交通流的侵扰。
不同于以往建筑与环境的互融关系,重修后的建筑为来访者打造了俯瞰山谷和山川的绝佳观景体验。建筑立面由天然石材铺面,完美契合了原度假区的建筑风格。而对于建筑的“第五个立面”,即屋面的设计,设计师则有意将其打造成由玻璃构成的透明外貌。最终在客户的强烈要求下,建筑屋顶被打造成由铝板贴面的多边形梁结构。
▼建筑外立面由天然石材铺面且保持整体一致性

建筑形式和材料应当传达出天然特性。
如钻石般的金属屋顶是该建筑的视觉焦点,而其余的可见立面均采用天然石材铺面。令人惊叹的屋顶木结构暴露在室内场馆中。独立的屋顶结构覆盖于22米宽37米长的矩形建筑之上。独特的造型令其如同镶嵌在山中的闪耀钻石,而该建筑更是因此而得名。穹顶下的空间由4.2米高的胶合木为支撑柱,其东、西和北侧由混凝土墙壁填充。为实现一个连续的如钻石般的屋顶结构,屋顶结构需营造一系列不同程度倾斜的表面,并将所有钢结构部件隐藏其中,且所有构造均需要控制在极小的公差之内。
▼屋顶下三侧立面由混凝土墙面围合

变形预测
另一个需要考虑的问题即是建造过程中可能出现的屋顶变形。由于该屋顶覆盖在三面坚实的混凝土墙壁之上,而南侧墙壁则为相对“灵活”的玻璃立面。该屋顶结构在四个预制装配塔的协助下组装而成。屋顶支撑结构架设在这四座装配塔之上,且体型略大于装配塔。装配过程中,支撑结构已经处于某种预拉伸的状态。一旦三层面板组装完成并实现了与钻石屋顶的完全静态衔接,四座装配塔便会被下压。而一旦这预计好的屋顶结构变形发生了,它便可以完全固定在三面混凝土墙壁上,也意味着由可变屋顶荷载所引起的建筑变形便只能对玻璃立面产生影响。
▼菱形木结构屋顶

多用途运动空间
建筑的夏日通风依靠屋顶和立面的排风系统。因此,建筑亦可用作活动大厅。而冬天,位于户外的运动场地则可以转变为溜冰场,使该网球活动中心展现出多功能性。建筑的一切可视部分的外立面如入口门廊,网球场馆及朝向户外场地的俱乐部南立面均由天然石材铺设。对Dolomite Muschelkalk这种独特地质岩石的采用也是对布尔根施托克环境的呼应,使该建筑与周围环境相匹配。
结构玻璃幕墙的设置让网球馆获得充足的自然光照。建筑屋顶由铝板铺面,其色调与立面石材相匹配,并让建筑周身展现出一致的外貌。与此同时建筑的室内装饰也与建筑设计主题相契合。简单的材料运用,少量却富有表现力的色彩搭配,加上优雅考究的室内家具摆设,完善了空间构成。网球场馆内采用绝缘半透明的多层板材以防止眩光对网球运动员的侵扰。
▼场馆享受充足的日照环境

▼平面图

▼剖面


项目名称:网球馆与活动中心
项目地址:瑞士
设计公司:RÜSSLI ARCHITEKTEN AG
主创及设计团队:Justin Rüssli, Remo Niess, Regula Kammermann, Marc Theis, Stefanie Jelinic, Felix Sager
客户:The Bürgenstock Selection, Katara Hospitality Switzerland AG, 6300 Zug, Bruno Schöpfer– Managing Director
客户代表/项目管理:Bürgenstock Hotels AG 6363 Obbürgen施工单位:
零件总承包商:Medava+Partner GmbH
木材工程师:Besmer&Brunner GmbH、Neue Holzbau AG/
木材工程:Neue Holzbau AG、Brawand Zimmerei Holzbau AG
项目年份:2011-2017年
建筑面积:9500㎡
空间主材:石材 木材 胶合板 混凝土
室内设计:MKV设计
景观设计师:Hanke Knappes+Kollegen
摄影师:Leonardo Finotti (BRA)
编辑版权©灵感LAB,禁止以灵感LAB编辑版本进行任何形式转载

关注公众号

关注抖音号

成都SKP · 四川 | Sybarite

多龄化混居社区·哥本哈根 | C.F. Møller and Tredje Natur

嘉兴南湖天地·嘉兴 | 上海天华建筑设计有限公司

岱山南侧社区卫生服务中心、养老院、社区教堂·南京 |东南大学建筑学院UAG城市建筑设计工作室

南开大学新校区图书馆及综合业务楼·天津 | 天津市建筑设计院绿建策划中心

无锡田园东方二期·田园综合体·无锡 | 袈蓝建筑设计事务所