项目坐落于南墨尔本,由Wood Marsh建筑事务所设计,是业主Piccolo的全新总部,堪称Piccolo旗下公寓住宅的范本,彰显了其品牌文化。建筑师与业主之间的紧密合作基于相互的尊重与共同的信念,即打造前卫精致的高品质住宅。
▼项目远观

受到周边环境的启发,建筑师保留了场地上原有的历史建筑,并将Piccolo之家的底层与之结合起来,使建筑从周边历史环境中脱颖而出。最终建筑以简洁有序的框架结构,精细雕刻的混凝土与彩色的反光玻璃立面的形式呈现在人们眼前,以全新的方式诠释了周边建筑的砖砌色调,营造出温暖的秋日氛围。建筑整体宛如一尊石刻雕塑,框架结构为主体的建筑体量彰显出力量之美。
▼项目概览

作为一栋综合体建筑,Piccolo之家涵盖了零售、酒店、商业以及豪华住宅等多重功能,整体氛围和谐统一。独特的地理位置,使建筑在街道中得到了全方位的展示。此外,多卡斯街(Dorcas Street)一侧的带有维多利亚式露台的原始建筑群,经过修复与改造,现已成为了一个活跃的商业中心。这些历史建筑,在为私人商户提供栖身之地的同时,为项目增添了丰富而生动的街景,加强了项目与周边环境的联系。
▼项目底层周边的商业区


项目的底层沿查尔斯街(Charles Street) 的一侧,采用了锈蚀程度不一的耐候钢版作为外立面,灵感源自理查德·吉布利特(Richard Giblett)的当代大都市绘画,这种设置以建筑的语言将Piccolo之家转化为名副其实的城市艺术。当夜晚降临,光线通过穿孔的耐候钢板表面照亮街道,形成一幅光之画作,与丹·弗莱文(Dan Flavin)的艺术作品有着异曲同工之妙。此外,被照亮的查尔斯街,与过去相比,更能为人们带来安全感。
▼由查尔斯街一侧看建筑

▼锈蚀程度不一的耐候钢版作为底层外立面

▼立面细部

建筑的形式与人们在室内所得到的体验息息相关。由位于约翰街(John Street)的主入口进入建筑,镜面玻璃与黑色金属构成的饰面营造出强烈的仪式感。接待大厅的内部采用了带有秋日气息的镜面玻璃,呼应了建筑色彩缤纷的外观。大厅上方的四个楼层内设有一居或两居的住宅公寓,这些公寓都经过精心设计,在这里,人们可以尽赏墨尔本壮阔的城市天际线。
▼大厅

▼住宅公寓概览

项目的顶层则是Piccolo的豪华办公室,办公室室内采用了银色的凝灰石,进一步增强了项目的整体性,使建筑的雕塑感在室内得到了升华。Piccolo之家室内设计采用了深色的主色调,主要由深色木材,黑色与古铜色的金属构成,彰显出高品质的住宅氛围。
▼顶层办公室概览

▼办公区采用了深色主色调


▼办公室空间与走廊细部

▼办公室木色色调细部

▼开放式的露台提供了无与伦比的景观视野

▼顶层露台

Wood Marsh事务所将历史、建筑、室内外空间、商业区,以及住宅巧妙地结合在一起,最终使项目完美地彰显出业主的品牌理念与商业价值。通过高品质的设计,Piccolo之家成为业主与开发商的化身,它不仅为业主提供了办公之所,同时也为建筑开发与出租产业树立了一个优秀的典范。
▼夜景


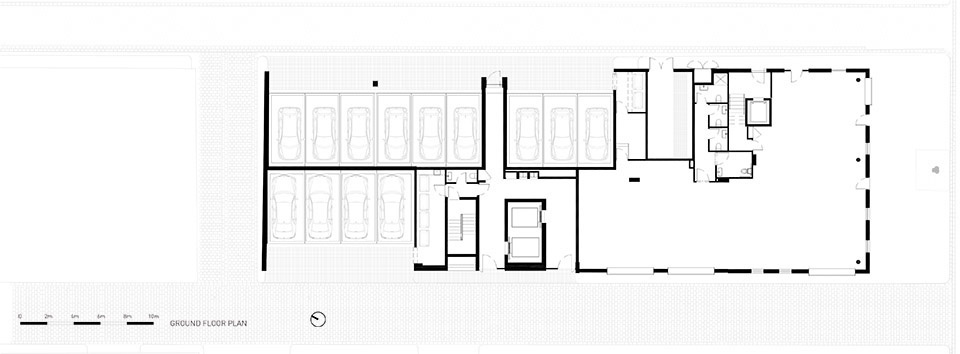
▼底层平面图

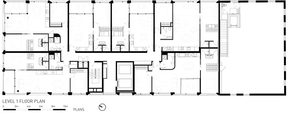
▼二层平面图

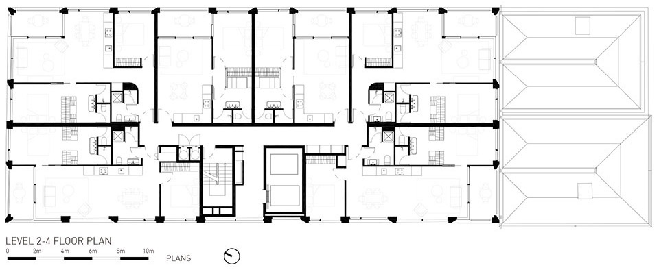
▼标准层平面图

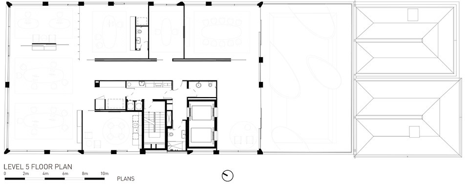
▼顶层平面图

▼剖面图


项目名称:Piccolo之家
项目地址:澳大利亚,墨尔本
设计公司:Wood Marsh
开发商:Piccolo
空间主材:木材 金属 锈蚀(耐候)钢 青铜 混凝土 玻璃 彩色玻璃 灯光
摄影师:Trevor Mein
编辑版权©灵感LAB,禁止以灵感LAB编辑版本进行任何形式转载

关注公众号

关注抖音号

Escenario SHIROKANE住宅综合体·日本 | Sasaki Architecture + YTRO Design Institute

“天府新兴•和盛田园东方”田园综合体·成都 | 袈蓝建筑设计事务所

盐城穆沟村新型农村社区设计实践 · 江苏 | 南大设计院周凌工作室

迪桑娜皮具工业园·广东 | Diller Scofidio + Renfro

崖顶咖啡厅及塔居 · 山东 | 迹·建筑事务所(TAO)

Bottière Chénaie 综合体·法国 | KAAN Architecten