总部位于马德里的国际建筑事务所FRPO设计了Estación San José综合楼。项目位于墨西哥州州府托卢卡,是一栋混合用途的大楼。该综合楼位于Avenida Juárez街北端,街道贯穿了历史街区与大学区。新综合楼的建设为该地区注入了活力,在区域和市域层面上建立起新的文化、经济与活动中心,将分散的活动聚集起来。
▼项目概览

▼轴测图

该综合楼扮演着社会凝聚者的角色,振兴了墨西哥人口密集的城市中心。设计需要充分利用区位优势,并考虑高密度建设与历史环境及其他复杂的场地条件。作为回应,设计师提交了一个结构灵活的解决方案,以满足平面布局的重复与重叠。该方案创造出丰富的临街空间,内部可容纳停车场、办公室、共享办公空间、文化空间及商业空间。这些功能区上方覆盖着公共屋顶花园,提供了观赏历史建筑和壮丽的Nevado de Toluca火山的绝佳视角。
▼综合楼外观


▼屋顶露台

▼临街底层

设计采用裸露混凝土结构,大胆丰富的几何体块呼应着城市环境,高耸的天际线远近可见。大楼的基础框架由柱列构成,上方支撑着双层细梁,形成统一的整体,又包含着独特的细节。一方面,连续折叠的空心板梁形成了停车空间,另一方面,结构上的钻孔可构成对角与垂直的关系,使内部空间更加丰富。建筑外覆盖着精致的轻金属表皮,包裹住整个体量,开口处的露台朝向景观设置,可在此观赏大教堂、植物园与西南群山。
▼裸露混凝土结构

▼空心板梁形成停车空间

▼从室内看建筑表皮

▼室外露台

▼屋顶露台

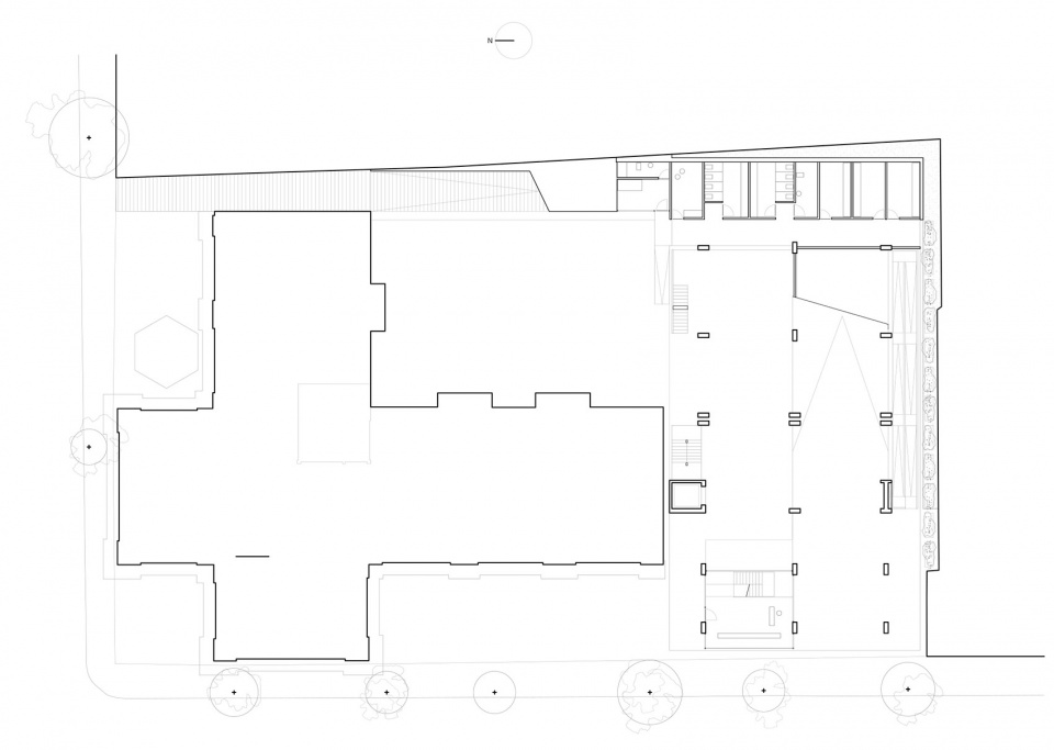
▼场地平面

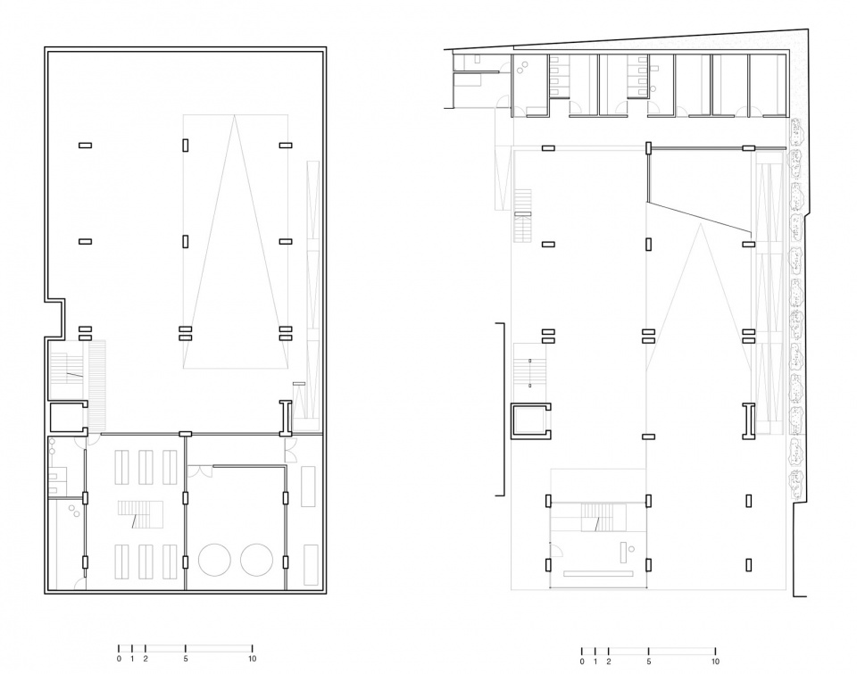
▼首层和二层平面

▼六层和屋顶平面

▼立面图

▼剖面图

项目名称:Estación San José综合楼
项目地址:墨西哥托卢卡
客户: Private
设计公司: FRPO
项目负责人:Pablo Oriol, Fernando Rodríguez
合作方:Francisco Díaz, Ricardo González, Ana Suárez-Anta, Esther Ibáñez, Jaime Hortal
顾问:Axiom Ingeniería、Pablo Urbano、Antemio Vargas
设计年份:2015.11
建成年份:2010.11
建筑面积:6300㎡
空间主材:金属 混凝土
摄影师: LGM Studio
编辑版权©灵感LAB,禁止以灵感LAB编辑版本进行任何形式转载

关注公众号

关注抖音号

嘉兴南湖天地·嘉兴 | 上海天华建筑设计有限公司

成都自然博物馆-成都理工大学博物馆 · 四川 | Pelli Clarke & Partners + 中国建筑西南设计研究院有限公司

UCCA陶美术馆 · 江苏宜兴 | 隈研吾建筑都市设计事务所

“天府新兴•和盛田园东方”田园综合体·成都 | 袈蓝建筑设计事务所

盛泽坛丘缫丝厂改造 · 苏州 | 平介设计

笙白艺术空间 · 北京 | 日常建造

改新村乡村振兴配套基地 · 普洱 | 平介设计

Byrasandra社区中心· 印度 | Samira Rathod Design Atelier

又见五台山剧场 · 山西 |北京市建筑设计研究有限公司朱小地工作室

首都国际会展中心(CIECC)· 北京 |Zaha Hadid Architects

在水美术馆·山东日照 | 石上纯也建筑设计事务所

九江渡口文化空间改造 · 佛山 | 玳山设计