
来自建筑师:
谁没有迷恋过飞行这一构想?虽然航空旅行已卸下它曾经奢华的身价,成为全球普及的旅游模式,但在踏入机场的那一刻,联想到即将展示在眼前的大千世界,我们仍不禁激动万分。HPP的建筑师们将这一情绪融入其最新项目,LOOP5的建筑表达之中,成为德国第一个主题购物中心。建筑面积超过10万平方米,坐落于邻近法兰克福和达姆施塔特之间A5高速公路Weiterstadt的出口边,LOOP5是一座以“航空旅行”以主题的独特的购物中心。

易识别,易抵达,独特性
易识别,易抵达,和独特性是葡萄牙专业购物中心开发商Sonae Sierra在2006年5月委任HPP时,为项目提出的主题。由于购物中心位于工业区沿近高速公路的特殊地理位置,业主对项目设计提出了要求:建造一座吸引力可涵盖至其所在区域外的购物目的地。Weiterstadt是德国政府批准建造大型郊区购物中心的最后地块之一。在绿地中放置一个“ 大盒子” 所引伸的问题在过往的实例中是显而易见。然而,项目的限制和挑战也正为HPP建筑师提供了创作独特主题购物体验的最佳机会。

主题购物体验
在德国,主题购物体验仍处于起步阶段,功能性购物为德国的主要商业模式。LOOP5 将成为主题购物的先锋推动者,并成为莱茵河区独特的地标。“航空”主题的灵感源自于其邻近的法兰克福机场和达姆施塔特的欧洲太空控制中心。

识别性
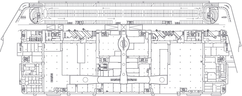
320m x150的LOOP5由主体购物中心建筑和可容纳3000辆车位的9层停车场组成。购物中心共为4层,包含地下1层,和退进8米的屋顶夹层。停车场位于购物中心前部,紧邻高速公路。两座建筑物由通行桥梁连接,并在地下设有附加通道。建筑立面中的弧形转角和垂直纹理幕墙在视觉上将两座单体连为一体。

购物中心外立面以“速度”为灵感,彩砂幕墙面板以充满节奏感的偏移,勾勒出多变多彩的建筑外壳。围绕建筑顶部的金属穿孔齿冠,用光影日夜点亮了LOOP 5直线型的外立面。

通达性
大部分顾客将经由A5高速公路开车抵达购物中心停车场。除连接停车场与购物中心的两条通道外,行人也可通过主入口进入。LOOP5是一座环形购物商场,除地下一层为T形布局,设置超市、电子产品商店、技术服务和交付区。三组自动扶梯连接起商场的垂直通行,其流通布局路线触及到购物中心的各个角落。整座建筑共提供175个25m²至3420m² 的零售单位,1430m²的美食广场,及1200m²的休闲娱乐设施。餐饮区位于二楼中庭,通连屋顶夹层。
▼First Level Floor Plan

▼Basement Floor Plan

独特性
漫步购物中心环道 ,顾客可在购物中心中体验四种不同的设计空间。商场的室内设计引用了航空发展史的元素,并以早期飞行、黄金时代、喷气机、现代航空为副主题,通过红、黄、蓝、紫四个副主题色,结合照明,将购物中心划分为四个区域。六米高的购物中庭犹如教堂礼堂般的空间感,积极渲染出两侧零售区域的魅力。墙面及地面中的螺旋桨、机翼、舵盘、悬翼元素及无处不在的平面设计,将顾客引入独特的购物体验。



LOOP5的每一处细节皆传递和唤起与飞行相关的快感和情绪。LOOP5将购物延伸为充满感染力的体验之旅,作为德国第一家主题式购物中心,它将成为欧洲下一代购物中心的领军者。自2009年10月初开业至今,LOOP5已经成为在莱茵 – 美茵地区最繁忙的购物目的地之一。






▼ Section

HPP 设计购物中心已有 20 多年的历史。
建筑师在HPP1980 年代开始设计购物中心。这是德国城镇中心和内城零售业的规划失败首先受到批评的地方。结果是购物在城市结构中的更强的整合。位于科隆的“ Oli vanden hof ”( 1988 )是一个成功整合城市中心内零售单位的典范,同时也标志着商业模式的开始。HPP的设计购物中心,如莱比锡中央火车站的“ Promen aden ”( 1997 年),构成了车站振兴计划的一部分,莱比锡的“ Peters bogen ”或科隆的“阿卡登”( 2005 年)或柏林的两个“环形中心”( 1997 )。HPP 目前正在设计勒沃库森的“ Rathaus galerie ”( 2010 )和索林根的“霍夫加滕宫”( 2011 ),这两个项目都是零售开发项目,将被安排在市中心的中心地带。
项目名称:Loop 5 购物中心
项目地址:德国Weiterstadt
设计公司:HPP Architects
业主: Loop 5 Shopping Center GmbH
开发商: Sonae Sierra
建筑师: HPP International Planungsgesellschaft mbH
项目合伙人: Werner Sübai
项目管理: Johannes Holthausen, Meike Behmann
主创及设计团队:Stephan Heimann, Karoline Ludwig, Yvonne Migura, Nadja Moche, Kirsten Neumann, Nathalie Rehm, Claudia Roggenkämper,
Robianto Sugiri, May Lin Tan, Stefan Winkelmeyr
设计年份:2006.5
建成年份:2009.10
建筑面积:96.000㎡
空间主材:混凝土、纤维水泥板、 铝
摄影师:Jens Willebrand
编辑版权©灵感LAB,禁止以灵感LAB编辑版本进行任何形式转载

关注公众号

关注抖音号