联系我们投稿
灵感LAB - 空间灵感补给实验室
Fresco工业风餐厅+咖啡厅·阿根廷 | Hitzig Militello Arquitectos
0 FAVORITE1629 VIEWS0 COLLECTIONS
2022-03-22 RELEASE DATE
北欧风格

黑白色调|

该项目受到现代,中立和工业细节的影响。中性由其材料和白色阴影的平衡给出。除了波纹铝板和黑色橡胶地板的细节外,其所有材料均已用于黑白色调的平衡。从一开始,我们就知道该品牌就是它的名字(Fresco意思是西班牙语中的Fresh),这个地方的特征在于其简单的材料,新鲜和天然的产品。从这种反思,我们建议实现一种活生生的存在和突出的性质,避免陷入静态性质的使用。这种性质在其所有干预措施中都是形式和功能,它们既充当照明系统,又充当其多个酒吧中的活跃景观。

 

阿根廷·Fresco工业风餐厅+咖啡厅阿根廷·Fresco工业风餐厅+咖啡厅阿根廷·Fresco工业风餐厅+咖啡厅阿根廷·Fresco工业风餐厅+咖啡厅

 

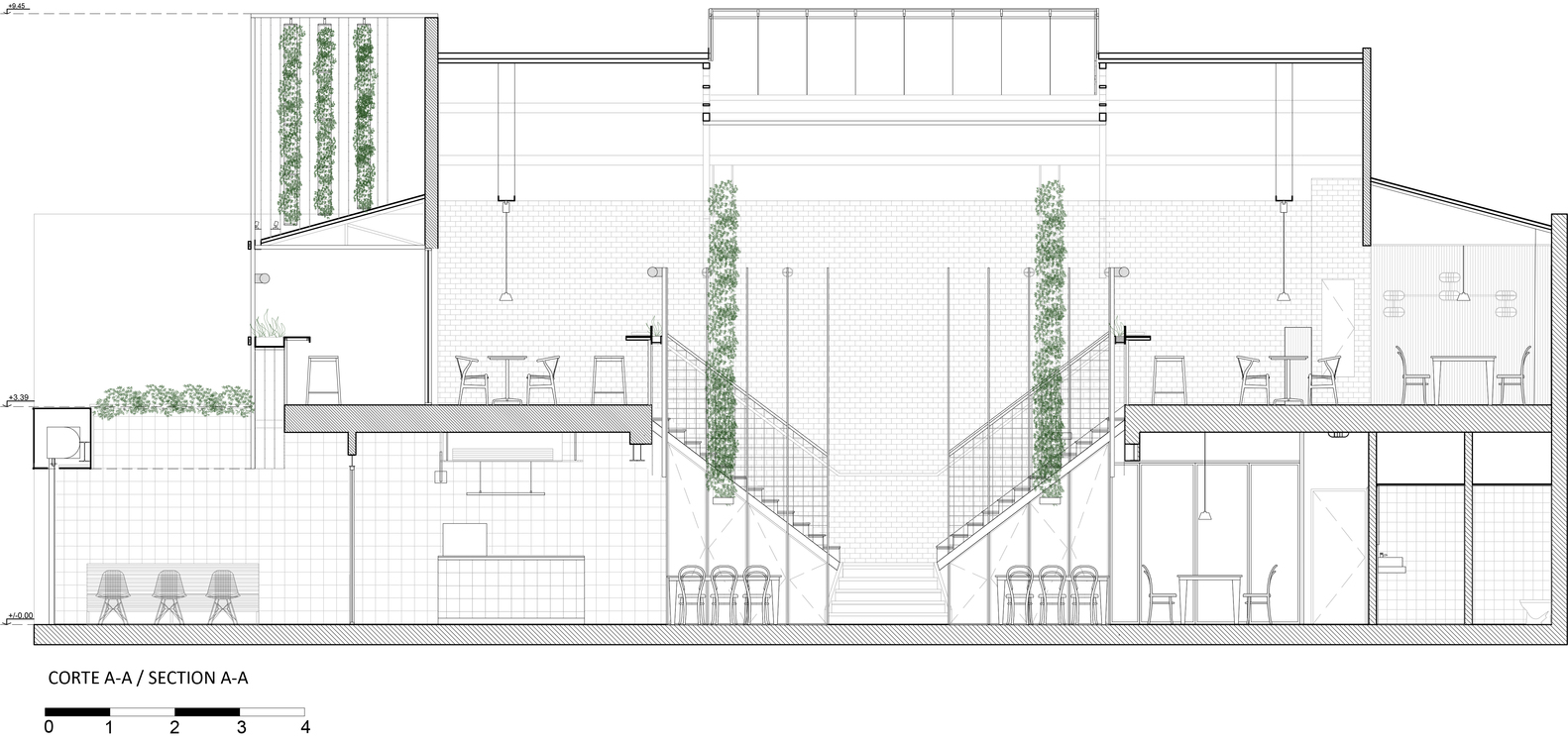
它与五十年代直接相关的材料建议从其立面的模块化组织中识别出现代线条的组成系统。丝网是该项目的基本组成部分,由一个简单的15×15丝网组成,该丝网会产生不同的深度,如面纱,从而可以在其网格之间看到建筑物的原始原始外观。我们在第一层“阳台”中部的中央空间应用了不同深度的同一网格系统,该系统由一根看向该核心的横杆组成,并由六个被植被包围的大型照明支架加冕。所使用的植被种类有蕨类植物,各种爱树木,各种蕨类植物,柠檬或绿色的碳酸钾,Calatheas,Dracenas,Zamioculcas,crotones,Spatyfilium等。我们通过在第一层的两个以前未连接的区域之间建立并连接(作为桥梁)来扩展上层。这将整个上层统一了一个大的围栏。

 

阿根廷·Fresco工业风餐厅+咖啡厅阿根廷·Fresco工业风餐厅+咖啡厅阿根廷·Fresco工业风餐厅+咖啡厅阿根廷·Fresco工业风餐厅+咖啡厅阿根廷·Fresco工业风餐厅+咖啡厅阿根廷·Fresco工业风餐厅+咖啡厅阿根廷·Fresco工业风餐厅+咖啡厅阿根廷·Fresco工业风餐厅+咖啡厅阿根廷·Fresco工业风餐厅+咖啡厅

 

在幕墙中,我们使用了位于不同深度的金属网,以整合通过圆柱体设计的植被。这种策略使我们能够可视化旧外观,这表明有兴趣保留旧建筑物的历史。通过此操作,我们设法统一了阳台正面和正面的线条,从而实现了半覆盖的使用空间。重复和调制使我们能够从提议特别设计的照明灯的地方建立秩序,使人联想起五十年代。同样,木制壁板代表了与此时期相关的美学。我们提出了一种生态感知的体验,在这种体验中,大多数游客会感觉好像他们是在带有模拟神奇植被元素的旧温室或花园中。

 

阿根廷·Fresco工业风餐厅+咖啡厅阿根廷·Fresco工业风餐厅+咖啡厅阿根廷·Fresco工业风餐厅+咖啡厅阿根廷·Fresco工业风餐厅+咖啡厅阿根廷·Fresco工业风餐厅+咖啡厅阿根廷·Fresco工业风餐厅+咖啡厅

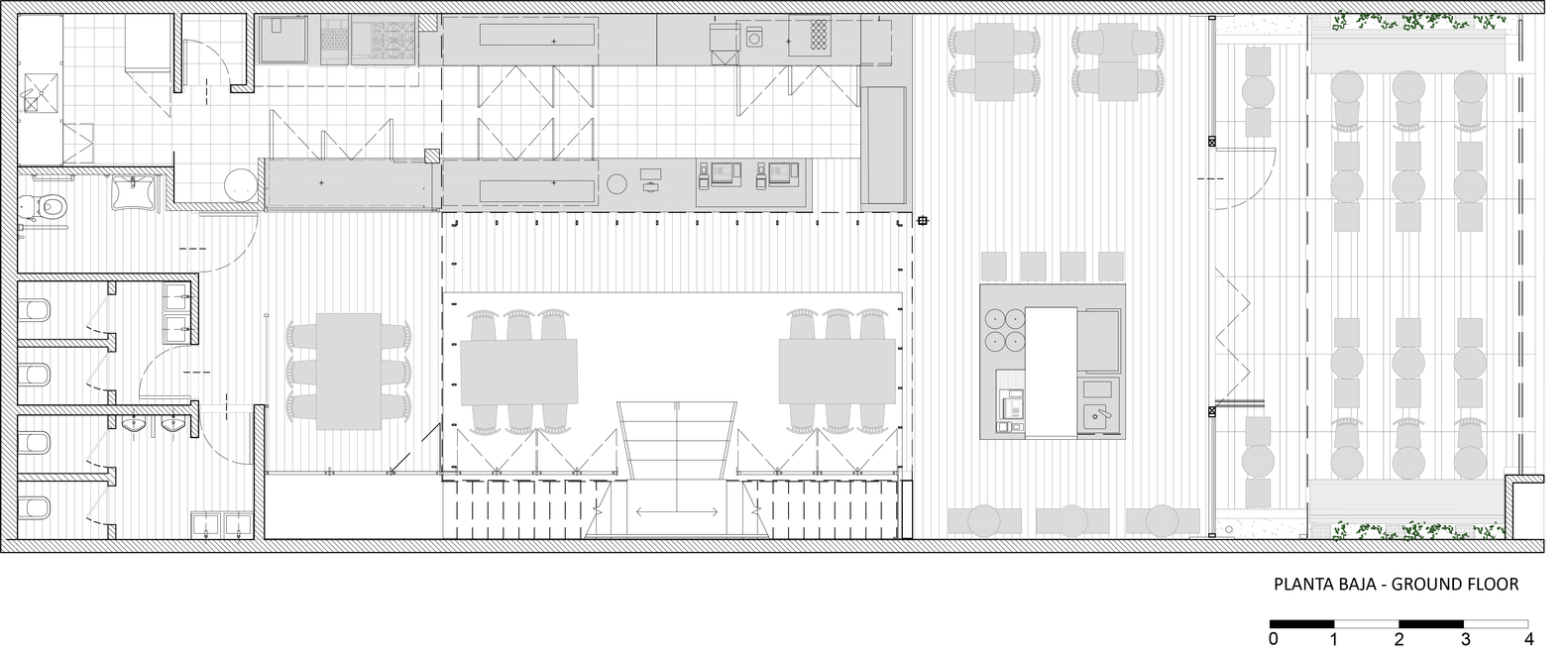
平、剖面图:

阿根廷·Fresco工业风餐厅+咖啡厅阿根廷·Fresco工业风餐厅+咖啡厅阿根廷·Fresco工业风餐厅+咖啡厅阿根廷·Fresco工业风餐厅+咖啡厅阿根廷·Fresco工业风餐厅+咖啡厅

 

项目名称:Fresco工业风餐厅+咖啡厅
项目地址:阿根廷 洪都拉斯 5656 C1414BNF CABA
设计公司:Hitzig Militello Arquitectos
建筑面积:400㎡
空间主材:波纹铝板、钢材、黑色橡胶地板、木地板、砖墙、瓷砖、压纹玻璃、涂料
摄影师:Federico Kulekdjian
编辑版权©灵感LAB,禁止以灵感LAB编辑版本进行任何形式转载

关注公众号

关注抖音号