“将纽约市区的生活方式带入上海”|
该服装店是美国纽约高端街头服饰“Canal St.堅尼街”,由Sò Studio设计,旨在“将纽约市区的生活方式带入上海”。该工作室认为,尽管地理位置不同,但两个主要城市仍有很多共同点。

Sò Studio表示:“在纽约,您可以看到几百年前在工业时代与尖端艺术,时尚和流行文化共存的元素的共存。”设计师补充说:“上海的独特精神是建立在中国传统文化以及近一个世纪的特许权基础上的。” “一直存在着紧张关系,这里的一切新事物也都随着时间的流逝而被抛光和沉淀。”纽约主题也适合店铺的名称-运河街是曼哈顿下城东到西的主要道路。

从商店平面图的中心移除了一个楼梯,以创建一条类似于纽约地铁的短走道。两个塑料橙色色调的座椅靠在墙上。高架悬挂了一系列金属环,模仿了站立的地铁乘客在旅途中通常握住的把手。一个黄色的发光标志(类似于通常在火车前部描绘目的地的标志)已用于指出商店的更衣室,门道部分覆盖着银色金属百叶窗。




新楼梯旁竖立的绿色玻璃框和两个展示产品的方形绿色展示架提供了色彩的飞溅。整个两层楼商店的其他工业风格包括钢制挂衣杆,结构柱中的裸露螺栓和金属丝网隔板。几个展示台的照明台面上还覆盖着网格金属片,以模仿人孔-在纽约周围点缀的开口可以进入地下下水道。最初,整个Canal St的表面都需要用油漆清扫一下。但是,在完全取消了以前的装修后,工作室觉得现有破旧的混凝土墙更好地反映了纽约对新旧的二分法。




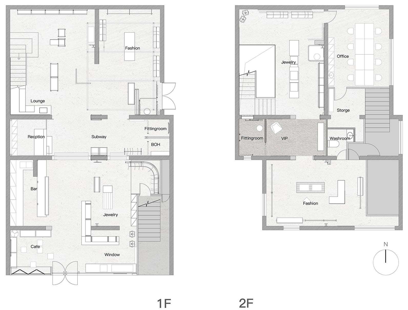
平面图:
项目名称:Canal St.堅尼街”街头时装店
项目地址:上海市徐汇区新乐路163号
设计公司:Sò studio
空间主材:瓦楞板、彩色玻璃、混凝土、压纹钢板、钢网、镜面、肌理漆、超白钢化玻璃
摄影师:Sò studio
编辑版权©灵感LAB,禁止以灵感LAB编辑版本进行任何形式转载

关注公众号

关注抖音号