融合传统方向的简单建筑设计风格为家庭营造一个舒适宁静的空间|
该项目总面积295平方米,分为3层和1个屋顶。其主要思想是通过融合传统方向的简单建筑设计风格为家庭营造一个舒适宁静的空间。该项目以简单的现代风格设计,融合了越南传统建筑风格元素。

这反映在一楼墙壁上的装饰采用橡木的传统笔触,或在卧室的床头板上。水磨石材料用于地板,走廊和楼梯的设计,营造出宜人的凉爽氛围。颜色与舒适的木质材料形成了鲜明的对比,舒适的木质材料使整个空间变得和谐。用于景观设计的花是“天堂鸟”。这朵花被认为是自由,美丽和家庭的象征。




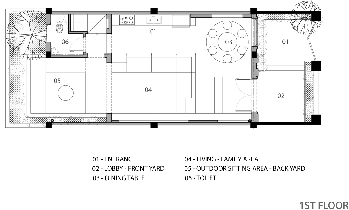
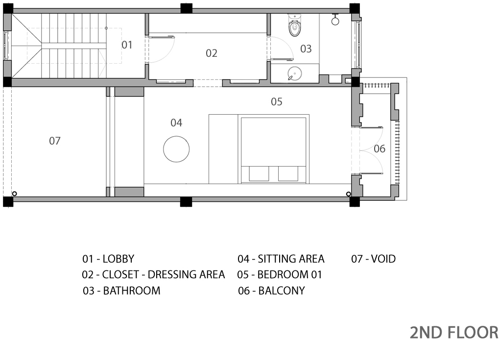
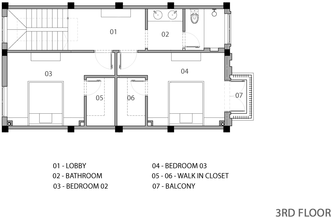
总体项目安排如下:1楼,家庭共同的起居空间,带有前后花园,中间是主要起居空间,主要起居空间设计为围绕起居室,厨房和餐厅的功能区域房间和一个小厕所。主要功能区域不按分区划分,而是通过不同的楼层高度使用方式进行划分,从而营造一种有趣的感觉,并且当所有者在同一楼层上行走时不会感到无聊。2楼,父母的主卧。这间客房设有步入式衣柜和封闭式浴室。为了获得新鲜空气和自然采光,房间有两处景色,一处是阳台,可俯瞰街景,一处是窗户,可俯瞰后花园。3楼,2间卧室,可容纳2名儿童。每个房间都有自然通风窗和步入式衣橱。







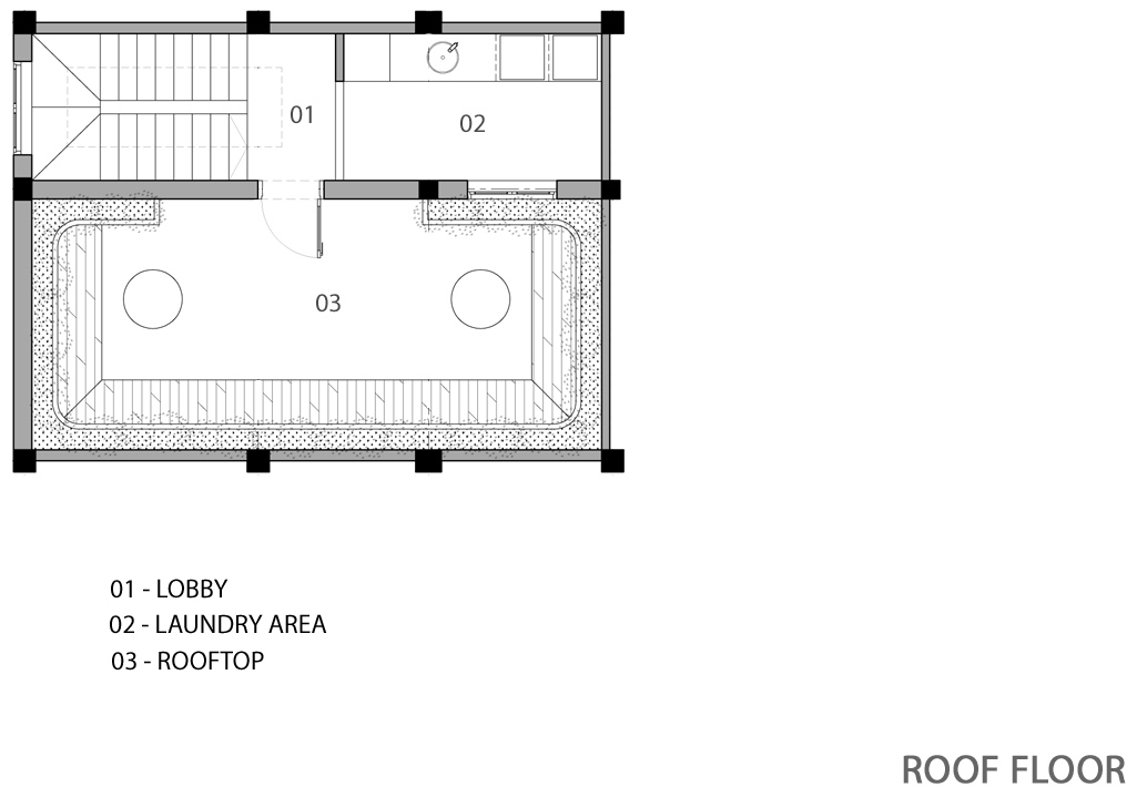
外面是一间大型共用浴室和一个单独的便捷洗手盆区。这个项目的特别之处在于,绘画中的所有人物都是房子的主人。屋顶地板:该地板用于安装洗衣机和烘干机以及家用物品储藏室。室外屋顶是干燥场和技术系统的布置。



平面图:



项目名称:“陈家”传统越南建筑风格别墅设计
项目地址:越南
设计公司:Kay Architecture JSC
建筑面积:295㎡
空间主材:水磨石、实木、木地板、乳胶漆
摄影师:Le Lai
编辑版权©灵感LAB,禁止以灵感LAB编辑版本进行任何形式转载

关注公众号

关注抖音号