联系我们投稿
灵感LAB - 空间灵感补给实验室
Ora Hostel奥拉青年旅舍·曼谷
0 FAVORITE1248 VIEWS0 COLLECTIONS
2022-03-14 RELEASE DATE
工业风格

一个人也可以去探索发现世界|

Ora旅舍是一家新落成的青年旅舍,热情地欢迎来泰国曼谷游玩的背包客们,它紧邻BTS Saphan Khwai车站与Jatujak市场。项目的设计概念来自现代LOFT居住风格,代表旅舍的运营哲学:一个人也可以去探索发现世界。

 

泰国曼谷Ora Hostel奥拉青年旅舍泰国曼谷Ora Hostel奥拉青年旅舍

 

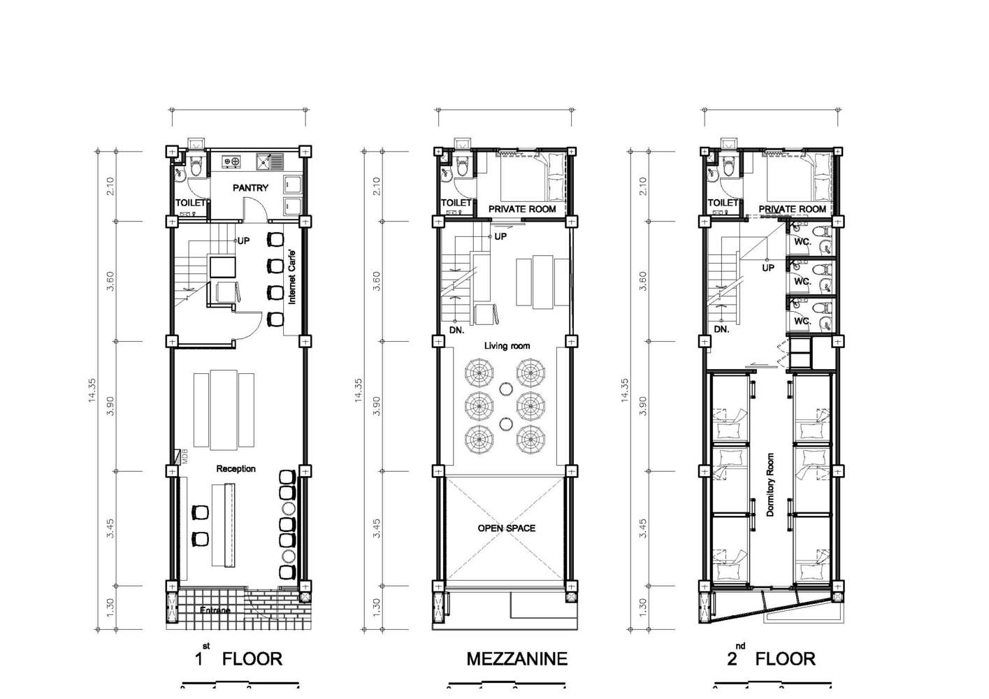
旅店由一个商店建筑改造而来,建筑开间4米,进深12米,六层高,总面积330平方米。木质的立面似乎在欢迎着它的客人,远处BTS Saphan Khwai车站的人们可以轻而易举地找到这个地方。此外,这间旅店室内空间的设计运用了木材、混凝土和钢材等材料,象征着来自五湖四海的旅客们在这里汇聚,成为一个大家庭。

 

泰国曼谷Ora Hostel奥拉青年旅舍泰国曼谷Ora Hostel奥拉青年旅舍

 

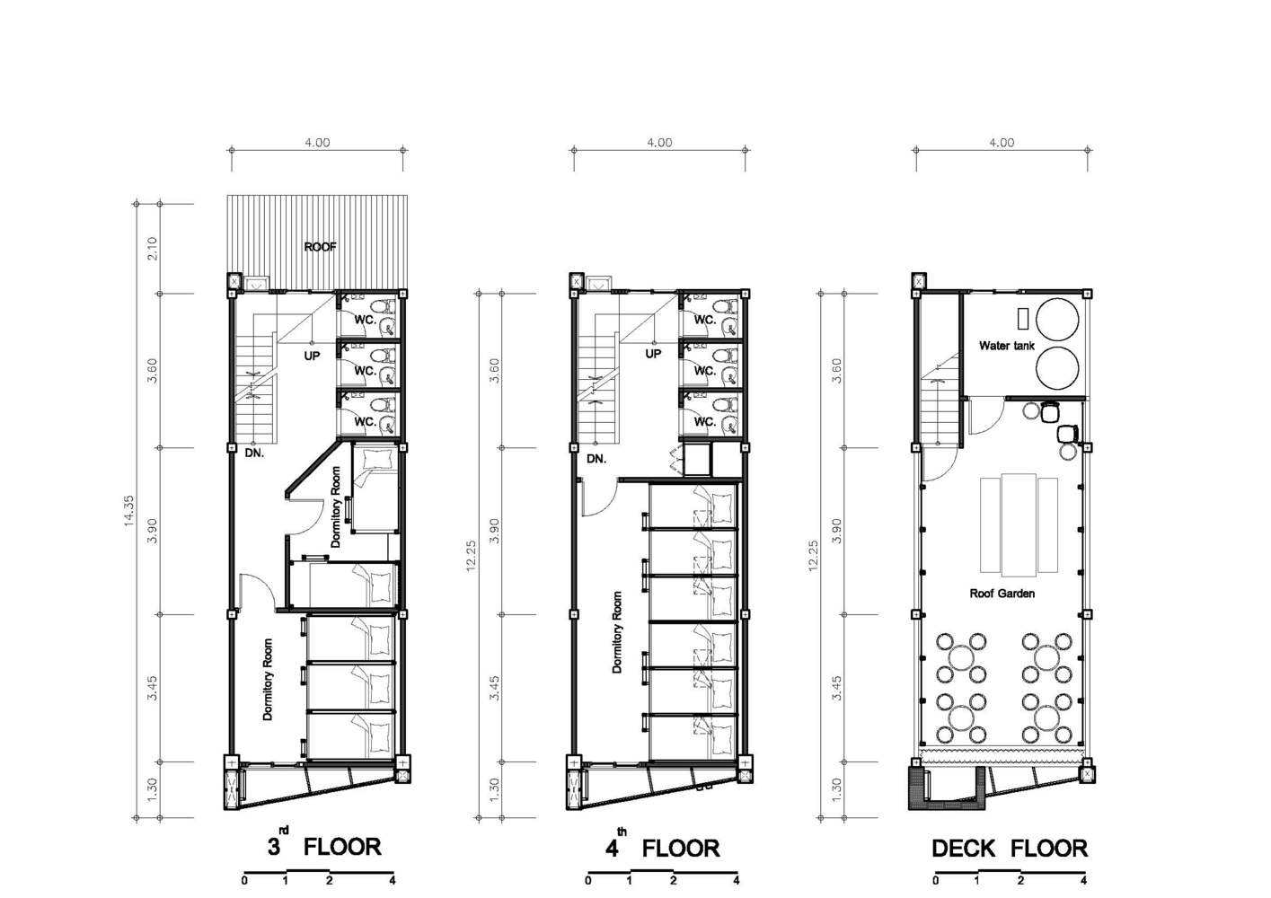
将所有设备和空间物尽其用后,这间小小的最多可以容纳大约38位旅客的旅社将旅客的安全看的最重要。因此旅店的一层是大厅、自助餐厅、厨房等为所有旅客服务的公共空间;夹层是放松和娱乐空间,旅客们在这里可以进行玩游戏、看电视、阅读等活动;二层到四层是供旅客休息的宿舍式多人间和单人间,各个楼层都设施完备,配有卫生间。

 

泰国曼谷Ora Hostel奥拉青年旅舍泰国曼谷Ora Hostel奥拉青年旅舍泰国曼谷Ora Hostel奥拉青年旅舍泰国曼谷Ora Hostel奥拉青年旅舍泰国曼谷Ora Hostel奥拉青年旅舍泰国曼谷Ora Hostel奥拉青年旅舍泰国曼谷Ora Hostel奥拉青年旅舍

 

▼屋顶层可以用来举办预定的早餐活动,也可以作为一般用餐的场地,旅客们在这里可以看到曼谷的城市景色。

泰国曼谷Ora Hostel奥拉青年旅舍

 

平面图:泰国曼谷Ora Hostel奥拉青年旅舍泰国曼谷Ora Hostel奥拉青年旅舍

 

摄影师:Adison Ruangsiridecha

编辑版权©灵感LAB,禁止以灵感LAB编辑版本进行任何形式转载

 

 

关注公众号

关注抖音号