从这里,游客可以轻松地环游城市|
岘港是越南著名的海上旅游城市。它不仅有美丽的海滩,而且还有极好的汉河和山茶半岛。岘港也是前往会安世界遗产的途中的目的地。因此,得益于旅游业,岘港发展很快。度假村和酒店旨在为来自世界许多国家的游客提供服务。但是,旅馆的类型刚刚在4-5年前就被发现并建成。这种类型的住宿在岘港并不受欢迎,因此没有足够的需求来迎合游客。
VietNam Hostel建在汉市场(Han Market)的对面,汉市场是岘港(Na Nang)最有名的地方,对全球所有居民和游客而言。汉市场被视为城市的心脏。每天,成千上万的游客来这里购物,尤其是购买当地特色菜。此外,从越南旅馆步行到浪漫的汉江只需不到一分钟。从这里,游客可以轻松地环游城市。


旅馆的设计极简主义,它消除了所有复杂的因素,从而尽可能降低了投资成本,但仍确保了最大的使用率。因此,我们使用了许多简单且便宜的材料。尤其是,我们限制了破坏环境的材料,例如油漆,石膏等。我们更喜欢使用环保的解决方案(例如,建造未烘烤的砖块,而不是在房屋中贴石膏的墙壁)来限制水泥的使用。此外,我们还使用大量树木和阳光来获取阳光和风,以使空间更通风,更友好,从而降低了材料的硬度。

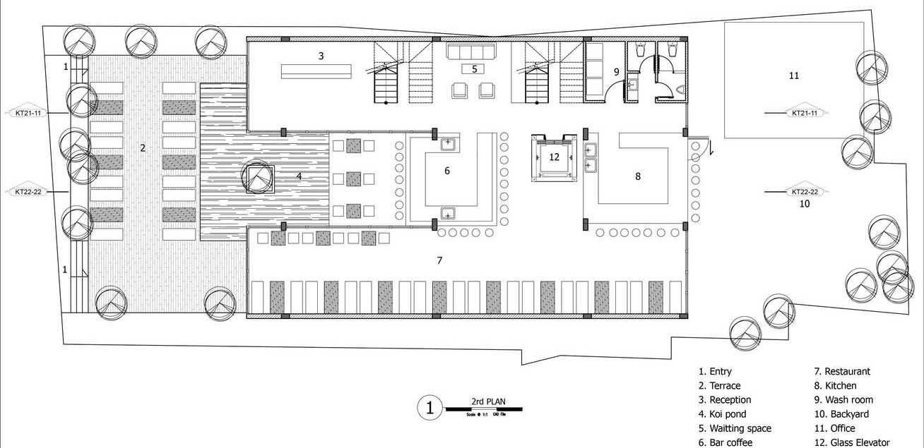
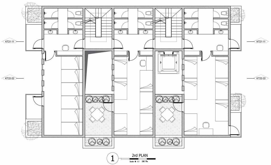
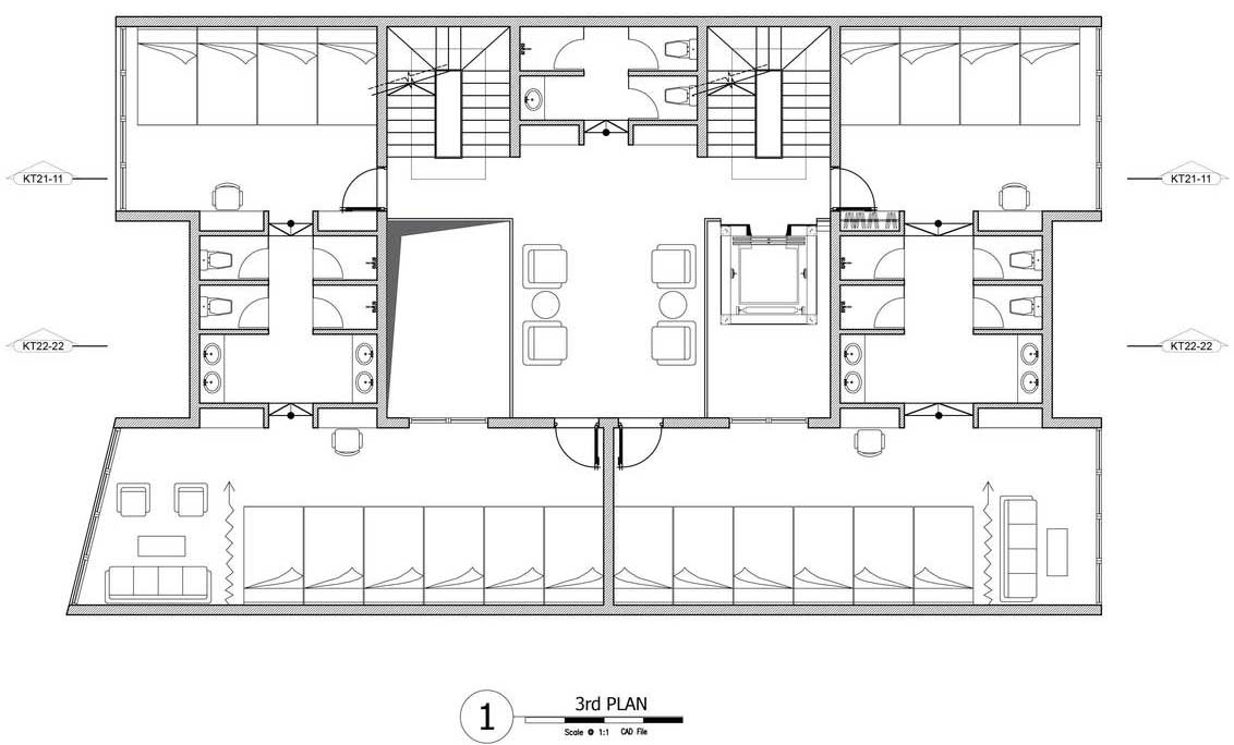
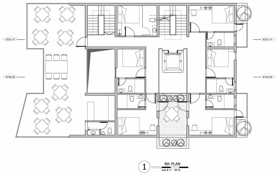
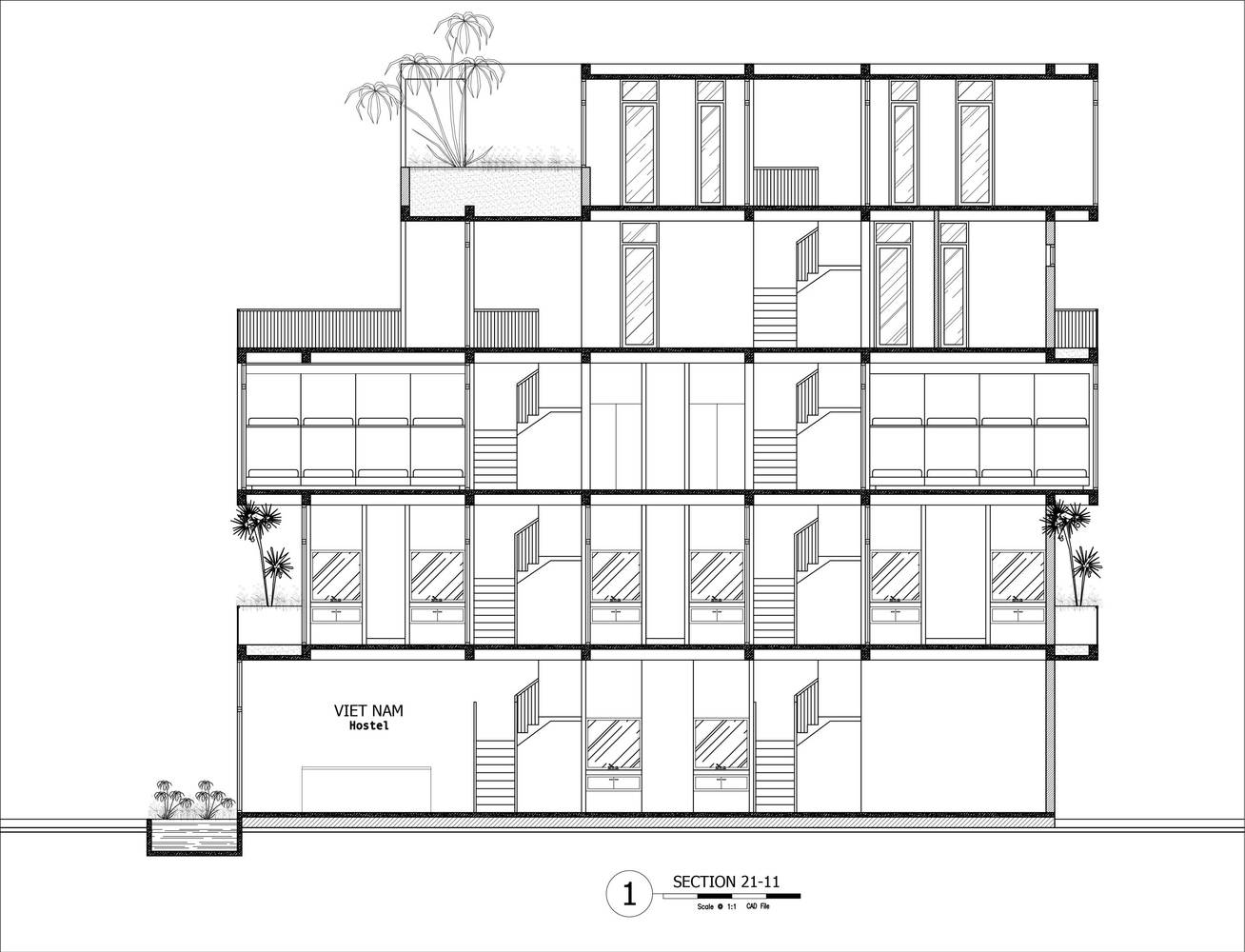
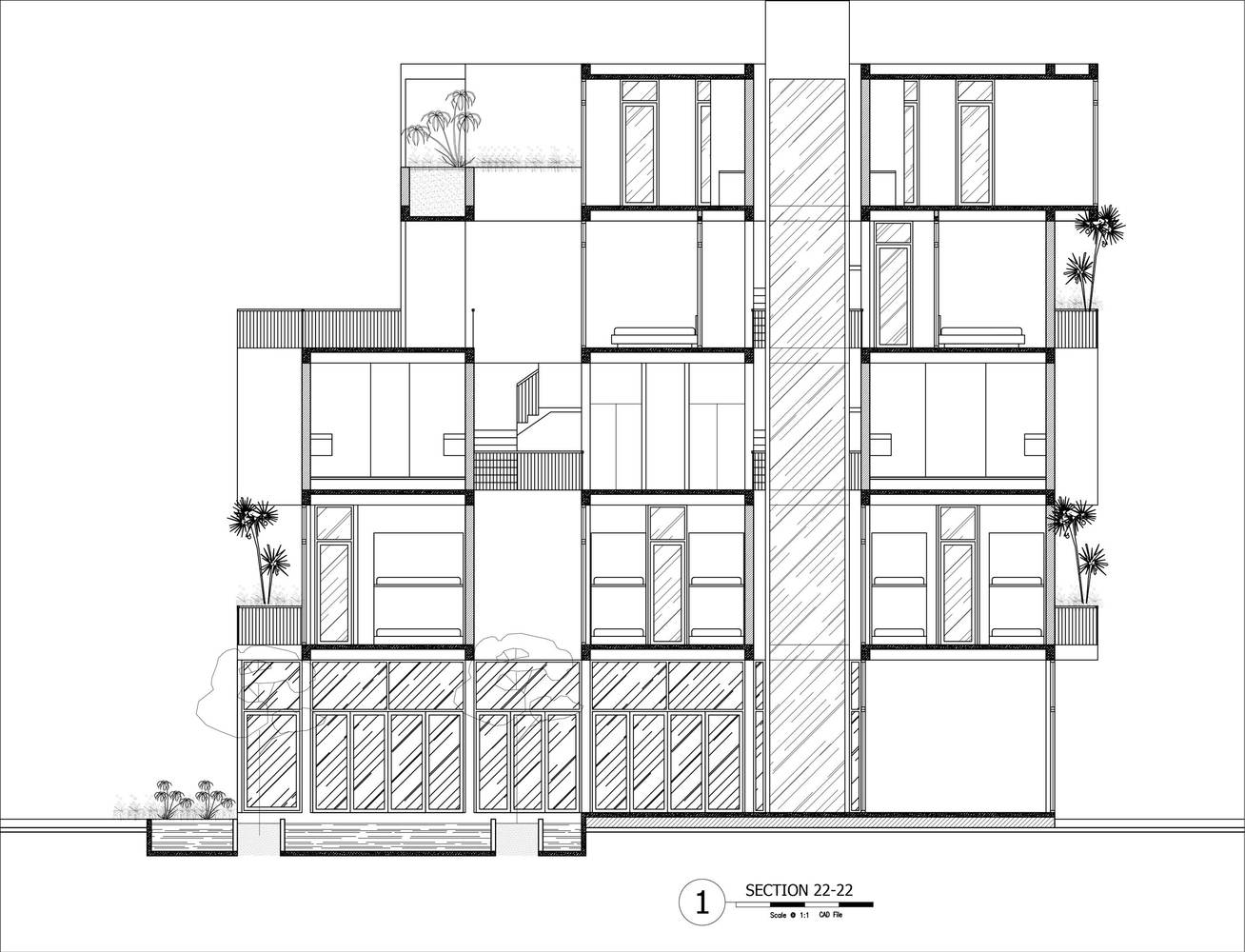
在2楼和3楼:它们是宿舍楼层的开始,包括宿舍房间。在房间之间是一口井,空间中种有绿树,人们可以步行到这些区域工作,放松,交谈和吸烟,而不会打扰室内的其他人。在四楼:该楼层包括私人房间,游乐场,咖啡店和共用厨房。








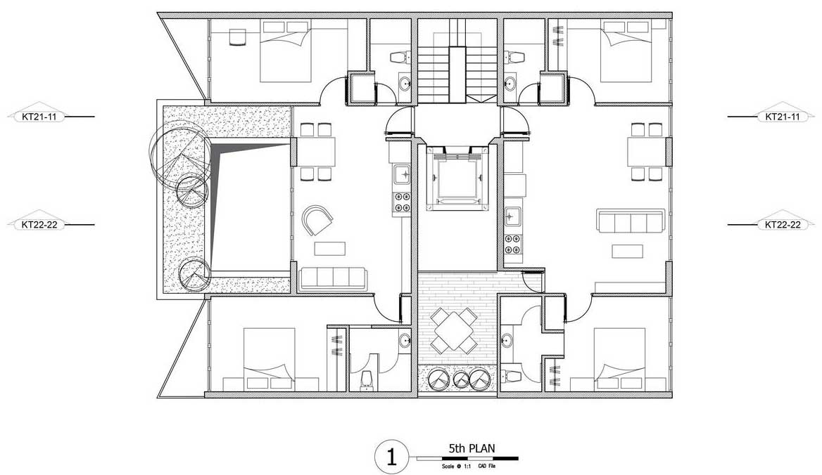
在5楼:我们设计了两个公寓。我们为什么要这样做?原因有两个:首先,这片土地是租来建造的,因此所有者需要财务担保计划。如果我们在上面建造公寓,那么以比旅馆更好的价格出租是很容易的。其次,由于该地区对旅游公寓的需求非常大,但周边地区服务不足。旅馆的设计和建造旨在为游客带来来岘港的刺激体验。并且通过该项目,我们还希望向人们传达以下信息:我们可以以低成本完全建造作品,最好使用对环境无害的解决方案,但它们仍然是美丽的。



平、剖面图:






项目名称:The VietNam Hostel青年旅舍
项目地址:越南 岘港 汉市场
设计公司:85 deisgn
建筑面积:600㎡
空间主材:混凝土、砖墙、木材、玻璃
摄影师:To Huu Dung
编辑版权©灵感LAB,禁止以灵感LAB编辑版本进行任何形式转载

关注公众号

关注抖音号