宁静而温馨|
这世界如果有更多的人热爱美食与诗歌胜过爱黄金,这世界会是一个更美好的地方。
The world would be a better place if more people loved food and poetry than gold.
—— 托尔金 J.R.R.Tolkien
乔村创始人2017年在杭州创立了乔村二十八道.钱江世纪城店,这也是乔村和澜廷合作的首店。连续三年位列大众点评必吃榜。好的餐厅与设计从来都是相辅相成的,时隔三年,不同领域的合作伙伴再次携手。将饮食上升到美学的层次,严格甄选原材料,凭借对美食的研究、创作和极佳的审美,加之高雅格调的设计氛围,旨在为美食爱好者带来一场心灵之旅。
▼餐厅入口立面

▼沿街的落地窗

▼隐藏式的入口


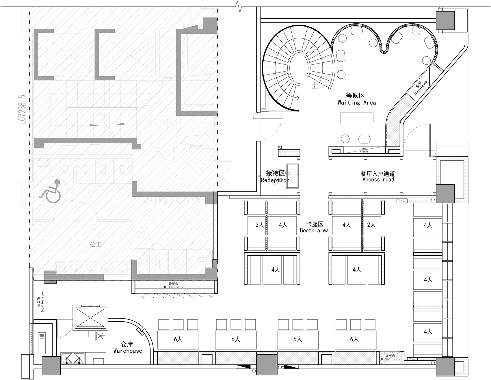
设计团队热衷于通过设计来营造自然的气息,将建筑设计的手法运用到室内,重视细节的呈现,使用最原始的材料清水混凝土作为建筑的主要肌理,提升建筑空间的尺度感。功能分区:一层为接待区、等候区、散座区域;二层为散座区、小包厢区域、厨房;三层主要是大包厢区域。
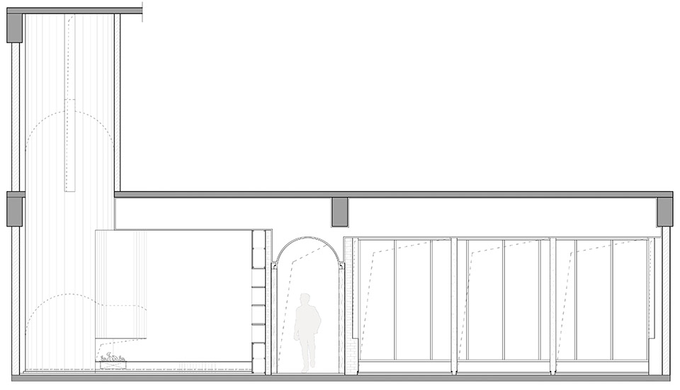
▼底层入口等候区剖面图

入口门厅:以清水混凝土作为肌底,通过建筑手法将入口隐藏,通过小景陈设以及灯光效果引人入胜。接待区:入口通道两侧采用天然的老木头行成阵列感,顶部为拱形,通过烛台及灯带的指引,尽头接待台庄重而有仪式感。
▼入口通道

等候区:圆形的挑空区域直通二楼,对应底部等候区圆形卡座,与旋转楼梯交相呼应。搭配进口中古家具,尽显质朴之美。
▼等候区

▼等候区圆形卡座与旋转楼梯交相呼应

▼等候区细部

散座区:设计师注重光影效果的打造,运用镂空几何砖,既能与清水混凝土的肌理统一,同时又能引进光影效果,增加趣味性,使散座区域既开放又私密,保证顾客的用餐体验。
▼散座区入口

▼镂空几何砖使散座区域既开放又私密


▼散座区

▼统一的清水混凝土肌理

▼散座区空间细部

▼桌椅与灯具细部

包厢区域:包含用餐区、水吧、品茶区及休闲区,采用木质和混凝土的搭配柔化空间,朴实无华的软装搭配为整个空间创造了最原始的体验。强调采光、尺度、私密感以及光影效果的营造,提供适合沉思和私人用餐的宁静而温馨的室内空间。尽量让不同的区域产生关联并保持各自独立。通过不同的光线、视觉和空间整合,诠释自然质朴的设计理念。
▼包厢休闲区

▼适合沉思和私人用餐的宁静而温馨的室内空间

▼强调采光、尺度、私密感以及光影效果的营造

▼休闲区空间细部

▼包厢

过道:光与影的融合,尽显寂静质朴之美。空间整体风格运用单色调,搭配精致而细腻的摆件,用宁静、精致取代单一色调空间的沉闷和乏味。空间采用进口古董老家具,搭配原始清水混凝土的自然肌理,化繁为简,为空间营造一种舒适、自然、简朴的就餐环境。
▼过道

▼精致而细腻的摆件

▼光与影的融合&餐厅logo

▼底层平面图

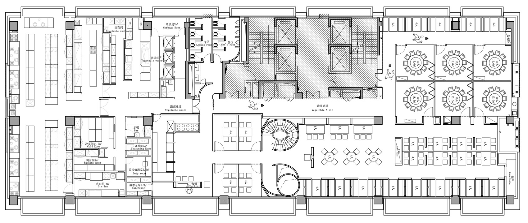
▼二层平面图

▼三层平面图

▼立面图

▼用餐区剖面图

项目名称:“乔村餐厅(未来科技城店)”浙菜餐厅
项目地址:杭州市余杭区良睦路鼎创财富中心1幢A2座1-3楼
设计公司:澜廷设计
建筑面积:2000㎡
空间主材:实木、清水混凝土、砖石、玻璃
摄影师:王大丑
编辑版权©灵感LAB,禁止以灵感LAB编辑版本进行任何形式转载

关注公众号

关注抖音号