凝固一种平静温柔的氛围|
糖分在与人体接触后发生化学变化造成大量的多巴胺,通过不断的吸收与溶解,多巴胺通过血管流至全身,最后刺激神经致使人体产生亢奋状态,带来幸福感的甜品。
▼建筑外部

▼庭院和周边环境

项目概况 | Project Overvie
在经历了五年的发展后,EV CAKE走出之前的工作室模式,成长为独立门店,隐逸在汉口周边都是年代感的老社区一楼,面朝长江脱离喧嚣闹中取静。我们将新与旧的融合在此空间中,即能感受武汉当地文化的生活方式,也能体会到时下年轻的时尚的生活方式。
▼入口弧形流线

秉承品牌多年坚持“甄选纯天然食材做最好吃蛋糕”质朴的经营哲学,在设计上以品牌天然健康的理念为依据,用自然的材料,手工的肌理,朴素的原生木料,彻底摒弃一切装饰与华丽,追求高度真实且单纯自然的美。庭院以白色作为基调,与周边的环境剥离开来,凸显整个空间的氛围,空间大面积的留白就像一张动态的画布,记录经过的人物和树丛的光影。
▼结构剖析

▼入口空间

▼悬空体块分隔用餐空间和入口空间


室内空间以米黄色灰泥为主要基调,以蛋糕的圆形为基本形体,在同一空间内用不同的材质来表现空间的层次感,在空间上做减法的最终目的是希望凸显产品的效果呈现。室内部分沿用对于户外的结合,采用的更偏向于一种自然,质朴安静的美学理念。庭院和室内通过一个灰空间的过渡,弧形的墙面转折暗示了空间导向性。
▼入口家具细部

用餐空间作为整个空间流线的高潮和结尾,和庭院连为一体,空间通透,感受到光和材质的变化,空间运用的天然质朴的原生木料家具,和手工肌理的艺术涂料结合,庭院和江边的植物引入室内,让自然回到城市,让顾客沉浸在自然之中远离喧嚣, 整个空间凝固了一种平静和温柔的氛围。
▼用餐空间弧形线条的组合


▼庭院和江边的植物引入室内

▼展现光和材质的变化

吧台的弧形和墙体遥相呼应,软膜天花也模拟了自然光的天井,彰显自然的光线氛围,吧台没有过多的装饰,与制作精致的蛋糕形成对比,愈发映衬蛋糕的绵软和细腻。
▼中岛吧台区域

沙龙区域主要是一些会员体验区域,参与和体验一些蛋糕和甜品的制作课程,大面积的开敞窗户将室外的绿色引进室内,从而能由简单的材料和灯光便搭配出丰富的空间效果。
▼沙龙区域

▼沙龙区域和室外庭院的互动

▼沙龙区家具

窗户采用了折叠窗,最大程度的开放庭院的空间,在室外天气宜人的时候完全打开后让庭院的景观引入室内,增加空间的互动性。
▼通道看向卡座

▼通往卫生间的过渡空间&卫生间

▼细部


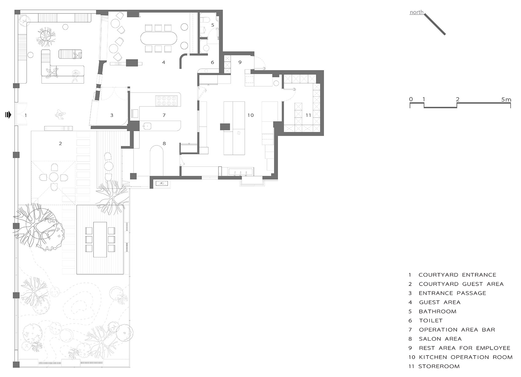
▼平面图

项目名称:“EV CAKE”甜品店
项目地址:武汉市江岸区滨江苑二期沿江大道282号
设计公司:知白设计研究室
主创及设计团队:周海飞、王子林、田静、杨仲娜
施工单位:象限营造
建筑面积:139㎡
空间主材:LA’BOBO陶瓷、武汉萨沃宫艺术涂料、绿众木、水磨石、超白玻璃、白色真石漆
摄影师:TT空间摄影
编辑版权©灵感LAB,禁止以灵感LAB编辑版本进行任何形式转载

关注公众号

关注抖音号

Harudot By Nana 咖啡烘焙店 · 泰国 | IDIN Architects

「BA」新法式烘焙 品牌空间设计 · 重庆 | 勉强设计事务所

CHOUCHOU面包店 · 广州 | 几何形态设计

爱乐信糖水局 OI-LOK-SHUN BUREAU·佛山 | 广州韶康室内设计有限公司

EUEU餐饮店 · 广东惠州 | SORA索拉设计

Holiland Travel – 好利来超时空旅行旗舰店设计·上海 | SLT