攀爬式的休闲空间体验|
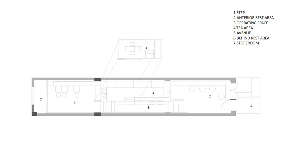
SHOYO ART LIFE位于杭州中山北路上,当看见项目现场是一个狭长的空间而且有两处高差。于是我们想从空间的本身作为我们设计的出发点,在现有的空间基础上打造出一个攀爬式的休闲空间体验。

路径 Paths
空间的特点我们决定把客人行走的路径设置在左侧,空余出来的空间用作休闲区和设备制作等功能来用。


空间形态的组合 Combination of space forms
狭长的空间让我们决定把制作设备放在中间区域,并且留出一条通道来作为前后空间通行的路。

过道楼梯开始的四阶踏步做了一个延伸处理,并与设备区的吧台做了一个结合。为了充分利用空间,通道部分的踏步势必要做一个错落的组合,而这样的组合方式能赋予它新的功能:部分踏步体块被分离出来,作为凳子与吧台间的一个衔接,这样的咬合处理方式,既能解决功能问题又能让整体空间层次变的丰富饱满。

吧台上空穿插了一个小尺度的几何空间,从整体性来说,它起的是承上启下的作用,它平衡前后空间关系的同时,也让整体空间节奏变的更为丰富;从功能上来说,架空出来的几何空间充当了一个小的茶区和展示功能,再次达到了空间的充分利用。

在入口处楼梯改造上的设计手法和通道一样,组合的体块形成一个休闲平台。玻璃窗设计成开启式,窗户和卡座的造型一体化,使得室内外的界限变的模糊暧昧。




材质与装饰 Materials and decorations
有了一个丰富空间形态以后再颜色和材质组合上希望融合点,所以选用了灰色肌理的艺术涂料与深灰色的不锈钢的组合,整体呈现出来的感应会比较冷酷。


有了这层材质底色后再装饰物的设计上点到即可 不想做过多的装饰。


雕塑灵感来与熟睡进入梦乡的孩子,甜蜜安详的状态。

装饰镜它的灵感来源于一大堆和“花”有关的祝福语,作为整个灰色调空间内唯一凸显的色彩。

▼平面图

▼三维图

项目名称:SHOYO ART LIFE 奶茶店
项目地址:浙江省杭州市拱墅区中山北路265号
设计公司:构造空间设计
主创及设计团队:徐明宝、何峰、沈艳、骆梦杰
建筑面积:80㎡
空间主材:肌理漆、瓷砖、不锈钢、玻璃
摄影师:张家宁
编辑版权©灵感LAB,禁止以灵感LAB编辑版本进行任何形式转载

关注公众号

关注抖音号

Harudot By Nana 咖啡烘焙店 · 泰国 | IDIN Architects

「BA」新法式烘焙 品牌空间设计 · 重庆 | 勉强设计事务所

CHOUCHOU面包店 · 广州 | 几何形态设计

爱乐信糖水局 OI-LOK-SHUN BUREAU·佛山 | 广州韶康室内设计有限公司

EUEU餐饮店 · 广东惠州 | SORA索拉设计

Holiland Travel – 好利来超时空旅行旗舰店设计·上海 | SLT