安静地坐下来消磨时间|
放松的方式有很多,为了表现这一点,我们在一张长长的纸上罗列了不同的放松形式,然后折叠起来,并用剪刀剪出开口。我们进而设计了MOSP:一个反映每个人不同放松形式的地方。墙壁之间的窗口作为通风口,使这个地方成为一个没有边界关系的空间。“MOSP”位于 Daejeon 市的山脚下。从项目前面可以看到 Daejeon 市中心,从后方可以看到 Bomunsan 山。


MOSP 位于建筑物的顶楼五楼。从 Bomunsan 山到咖啡馆有平缓的楼梯,自然地引导访客进入室内。从 Bomunsan 山观察,建筑物是垂直的体块。然而,当你从 Bomunsan 山进入咖啡馆时,你会感到它是低矮柔和的水平体块。一进门,从露台望出去,一览无余的绝美景色是 Daejeon 市中心。爬上平缓的楼梯,咖啡馆内部充满了舒适感。我们希望设计一个宽敞但不是很大的咖啡馆,是一个让人们惬意地放松的舒适的地方。我们设置了一个长长的带窗口的隔断,连接整个空间,映射出多种多样的放松方式。

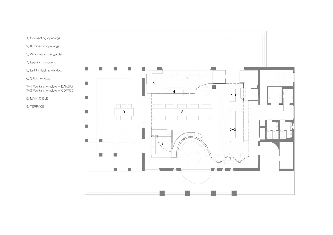
连通窗口:穿过平缓的楼梯,映入眼帘的是拱形重叠窗口。隔断的连续折叠将室内空间分隔开来,充满了内外之感。通过这些窗口,两个相对的“放松”空间被联系起来。一张穿过窗口的狭长桌子提供了一个休息的地方,访客可以在那里安静地坐下来消磨时间。





照明窗口:充足的光线穿过半圆形墙壁,撒进整个空间。这面墙沐浴在 Bomunsan 山东侧的晨光下。从前面的窗向外看,是一片绿色的森林。一部分地板被灌满了水,仿佛将天空置于脚下,营造出一个拥抱自然的、充满阳光的空间。





花园的窗户:在半圆形的照明窗口墙面后方,有一个似乎是通向隐藏空间的楼梯。这个楼梯通向花园。花园是每个人的疗愈之地,也是人们阅读和喝茶的好去处。透过花园的窗户看向 Bomunsan 山,室内外的界限变得模糊,将访客吸引到外面。







能倚靠的窗户:在创造这个空间时,我们想着访客能靠在一个玻璃窗上。所以我们给了它一个比其他人更深更宽的、可以向后靠的窗台空间,并在后面做了一扇窗户。

折射光线的窗户:太阳从咖啡馆的南端向西移动。我们想象访客在阳光下放松,所以把玻璃砖堆起来,希望它们能将光线折射进来,让这个地方更舒适。夕阳透过玻璃砖窗户散射,描绘了一幅舒适放松的画面。

有座位的窗户:在靠窗的座位,透过长窗可以看到眼前的城市,让人们观察城市景观。这些窗户能捕捉到日落的光芒。由于隔断,这个地方感觉像是从咖啡馆内部的主要空间突出。因此,这个地方虽然还在室内,但是作为一个向外开敞的露台,桌子变成了栏杆。坐在稍微抬高的桌子旁,看着外面,就像是靠在栏杆上看风景。

适合工作的窗户:这个地方的窗户不仅适合想要放松的人,也适合需要工作的人。这些人也是我们的设计需要考虑的人群。在这些窗户中工作的画面几乎就像一个电影场景。


隔断是这个咖啡馆的主轴,也表示了边界和媒介的关系。它们创造了从内到外的独特边界,但也通过窗户连接了这些边界。隔断还连接了每个空间中形成的各种形式的放松。这些隔断为MOSP的每个空间提供了不同的外观,定义了动线和空间,但没有完全隔绝空间。相反,它们赋予了这个地方贯穿所有角落的统一的美感。
▼夜景



▼沙盘





项目名称:MOSP咖啡厅
项目地址:韩国 大田
设计公司:ATMOROUND
空间主材:砖石、肌理漆、真石漆、水洗石、木材、水泥、玻璃砖、玻璃、涂料、绿植
摄影师:Woo-Jin Park
编辑版权©灵感LAB,禁止以灵感LAB编辑版本进行任何形式转载

关注公众号

关注抖音号

Harudot By Nana 咖啡烘焙店 · 泰国 | IDIN Architects

「BA」新法式烘焙 品牌空间设计 · 重庆 | 勉强设计事务所

CHOUCHOU面包店 · 广州 | 几何形态设计

爱乐信糖水局 OI-LOK-SHUN BUREAU·佛山 | 广州韶康室内设计有限公司

EUEU餐饮店 · 广东惠州 | SORA索拉设计

Holiland Travel – 好利来超时空旅行旗舰店设计·上海 | SLT