一边寻找一边发现|
项目是继北京国子监失物招领店铺后,我们与失物招领的第二次合作——位于杭州文化地标天目里的生活体验店。杭州天目里是由建筑师Renzo Piano设计的集办公、艺术空间、商业、秀场、设计酒店等功能于一体的综合性园区。

失物招领作为一个生活家居品牌,除家具以外,也提供包括手工陶艺、植物、居家器物、织品等生活用品。此次设计中我们延续了家的概念,同时也呼应 了失物招领品牌惜物的生活方式。空间设计围绕自然肌理 、手工 工艺的核心展开,在天目里这样一个现代感的艺术园区里,呈 现“家” 的样貌和内涵。
▼轴测

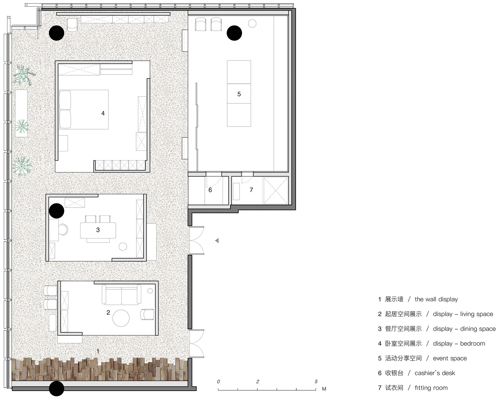
店铺空间主要分为几组家具展示区和一个活动分享区。展示区由 三个水洗石小盒子组成,划分出不同生活场景——客厅,餐厅, 卧室。高低错落的墙面形成半围合半开放的小空间,赋予原本单 一的空间更丰富的延展方式,给客人创造一种探索性的动线,像在街巷中一般,一边寻找一边发现。水洗石墙面粗粝的自然肌 理,也给人一种温润的感受。
▼入口


▼空间由家具展示区和活动分享区组成


▼展示区分解轴测图

▼展示区


▼高低错落的墙面围合成半开放的小空间



▼石墙细部





▼沿窗的展示区

▼空间一侧设置木材墙面

▼木墙和空间


▼木墙细部

穿过展示区,是进行活动和展览的分享空间,空间形态是一个开敞的小木屋,收银台和试衣间也集中分布在木屋的一侧。它的灵感来源于茶园边上的小房子——踏上一级青石板,人们聚集在一 个大的坡屋顶下面,虽然是在室内场所,却营造出一种在大自然中,人们在屋檐下休息的惬意生活场景。我们为分享空间的小房 子设计了没有玻璃的木框推拉門,在视觉上轻盈地把家具展示区 和分享空间分隔开来。房子的顶、地面和墙面使用失物招领家具 常用的五种木材(榉木、胡桃木、白橡木、樱桃木、白蜡木)进 行搭配拼接。小房子的推拉門以及店铺入口的平开門等细节设计也同样使用了这5种木材做混合搭配。对于木材的处理,在最大 程度上减少人工的修饰加工,效果呈现出木材最天然真实的质感。
▼活动区分解轴测图

▼开敞木屋中的活动区

▼活动区,营造自然中的生活场景


▼木屋细部


▼平面图

项目名称:“失物招领”杭州天目里生活体验店
项目地址:浙江省杭州市西湖区天目山路398号天目清水商业中心14号楼201室
设计公司:B.L.U.E. Architecture Studio
主创及设计团队:青山周平、陈雨圆、窦征、刘凌子
建筑面积:225㎡
空间主材:水洗石、浅灰色肌理涂料、榉木、樱桃木、白蜡木、橡木、黑胡,桃木、老杨木、瓦楞玻璃
摄影师:雷坛坛
项目客户:失物招领
编辑版权©灵感LAB,禁止以灵感LAB编辑版本进行任何形式转载

关注公众号

关注抖音号

HelloArt艺术客厅设计·杭州 | Artdeep艺痴设计

“Soothin素庭”家具旗舰店 · 深圳 | BloomDesign绽放设计

Tanatap框架花园 · 雅加达 | RAD+ar

极氪中心 · 苏州阳澄湖服务区 | HATCH Architects 汉齐建筑

盛泽坛丘缫丝厂改造 · 苏州 | 平介设计

柏林冷战博物馆展陈设计·德国 | TCHOBAN VOSS Architekten