以空间为媒介,将人与街巷相连,营造动态生活场景|
“空间是历史的产物,是社会存在的媒介和结果。”——亨瑞·列弗斐尔
《史记·平准书》:“众庶街巷有马,阡陌之闲成羣,而乘字牝者傧而不得聚会。” 晋 陆机 《君子有所思行》:“廛里一何盛,街巷纷漠漠。”街巷作为城镇道路的名称被沿用至今。在近代以“人”为核心的街巷生活已经逐渐成了特有的居住文化。街巷院落包裹下的生活,充满了丰富且生动的活动场景和城市日常。此项目位于山西太原,设计以“街巷生活”为切入点,设计围绕街巷的线性空间展开,将丰富的建筑手法延伸到“街巷”之中,进而为空间带来活力。
▼空间概览

人造场所,场所也造人。街巷是过往市民进行日常交流的场所,随着城市的不断发展与扩张,其街巷系统也随之演变。此项目位于山西,过往的山西多是以街巷,院落、窑洞结合的居住形态为主,会拥有许多共享的院子生活设施以及景观,在这个过程中会出现很多有温度的生活场景,以及邻里之间的情感交集。
▼思路演变与轴测图

▼入口空间

▼仿佛无限延伸的空间

以空间为媒介,将人与街巷相连,营造动态生活场景。设计以街巷指向生活又以生活为源表达产品。勒·柯布西耶曾说过,轴线作为一种指向仪器,对于建筑设计来说至关重要:“布局是对轴线进行分级,也是对目的进行分级,对目的进行分类。”而在此设计中,路径的概念替代了轴线。
▼座位区

▼各功能分区合理有序的以递进式铺展开来


▼由内而外

▼缝隙

轴线用线来确定立体和平面,在垂直结构中定义运动,而轴线将建筑看作统一体,允许非方向性结构的存在。用矢量代替了轴线,使用者的轨迹决定了空间的结构,成为了建筑的“调整线”。轴线的重点才是其核心,而轴线则表现了一种连续性的体验,让整段路程和目的地一样都丰富起来。
▼更加公共的展示空间

▼空间分为上下两层

▼木框架玻璃盒子

▼细部

设计为了将街巷变得更加立体与丰富,在室内制造了多个建筑盒子,通过附加属性有了更多使用与交互的可能性。此外,还让多个盒子进行扭转变化,达到了视觉和动线的可变性。有曲径通幽的部分也有豁然开朗的部分。空间可上可下可坐可卧,不限于同纬度的体验方式。
▼通高区域

▼底层展厅


▼“街巷”空间

▼楼梯

▼盒子内部细节

空间表皮也同样运用了很多原始状态的材质表达空间情绪,希望这个空间随着使用者和体验者一同变化一同成长。不同盒子的自由散落,自然构成了街道、景观和院落,形成了街巷生活,回归社交。
▼设施细节


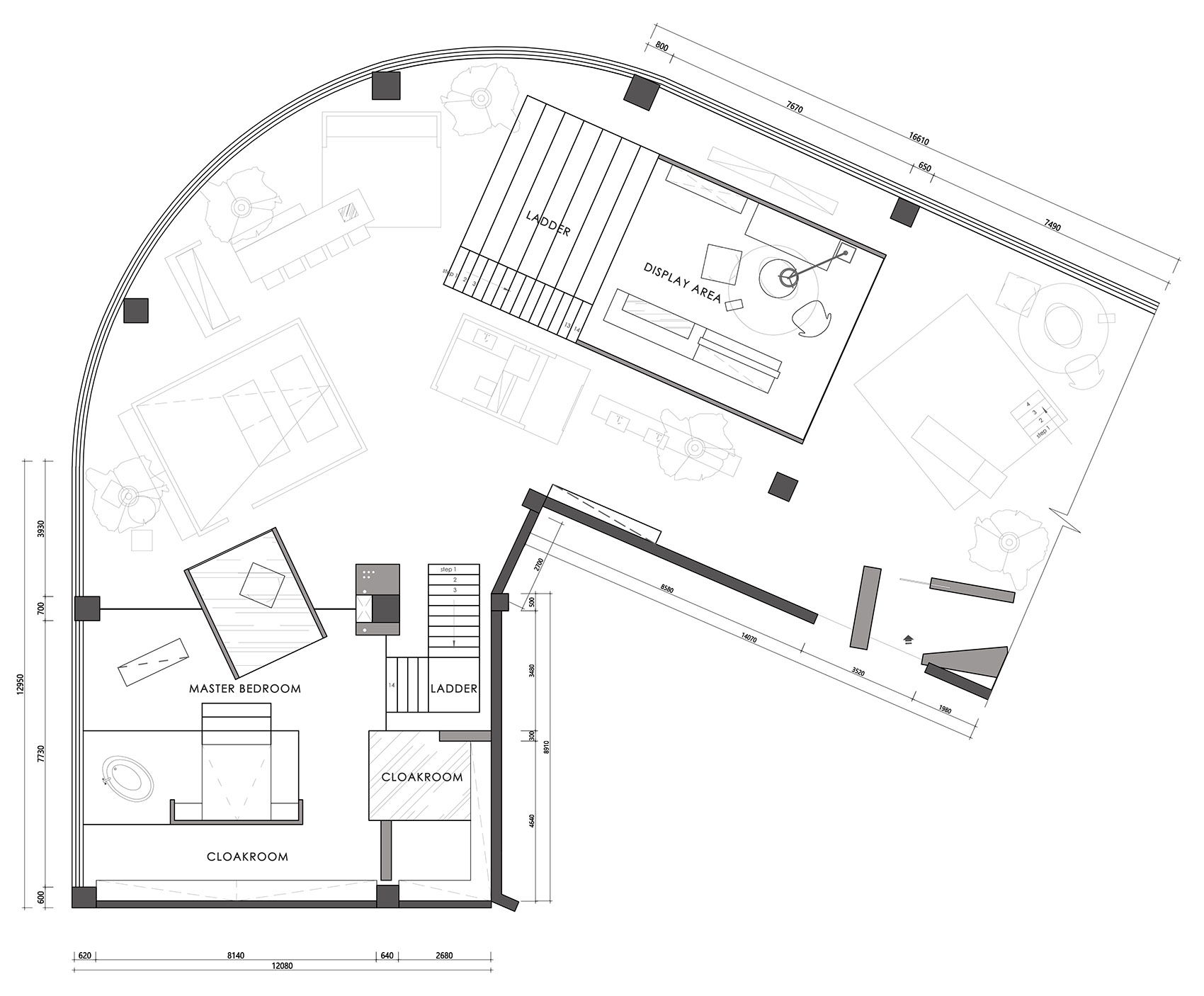
▼一层平面图

▼二层平面图

项目名称:“营造街巷—HANROW WOOD”木作展厅(旗舰店)
项目地址:山西省太原市
设计公司:HOOOLDESIGN事务所
主创及设计团队:韩磊、黄德斌、李静怡
灯光团队:三宜想天
材料品牌:Hanrow 汉诺
设计年份:2020.8
建成年份:2021.7
项目业主:王耀文、王艳
建筑面积:460㎡
空间主材:水磨石、水泥、木地板、石头、瓷砖、白色乳胶漆
摄影师:刘育麟
编辑版权©灵感LAB,禁止以灵感LAB编辑版本进行任何形式转载
感谢“HOOOLDESIGN事务所”的展览空间案例分享 | 灵感实验室 ⬅
<点击蓝色标题,查看更多内容>

关注公众号

关注抖音号

HelloArt艺术客厅设计·杭州 | Artdeep艺痴设计

“Soothin素庭”家具旗舰店 · 深圳 | BloomDesign绽放设计

Tanatap框架花园 · 雅加达 | RAD+ar

极氪中心 · 苏州阳澄湖服务区 | HATCH Architects 汉齐建筑

盛泽坛丘缫丝厂改造 · 苏州 | 平介设计

柏林冷战博物馆展陈设计·德国 | TCHOBAN VOSS Architekten