一迳抱幽山
居然城市间
——宋·苏舜钦
《水调歌头·沧浪亭》
WEI STUFF,末染设计全案设计项目,历时弥久,无一处不倾注心血。“品牌、空间、产品,全方位武装到牙齿”。但我们其实只想表达一件事情:让空间内的一切都是那么自然得当。
▼外立面概览


自然质朴的亲近感|Natural intimacy
一楼 ,不定义空间
▼地面大面积红砖定义出整体温暖印象

选用历久弥新的老红砖,切割成片3厘米薄片,人字形均匀铺贴在地面及卡座位置,呈现平滑且利落的平面和立面,又在间隔加入浅灰混凝土质材,有很好的压制住红砖本身粗旷的材质语言,清晰干净后用一层清漆罩面,给予其温润的质地,在将美丽封存的同时,也能禁受住时间带来的考验。

造就诗意的光影打造优雅又兼具现代感的空间。搭配一面面玻璃窗将自然光引入,帮粗旷的红砖空间揉入现代俐落感。在这个镜面空间之内,人、器物、家具与植物景观相互映射,实像与镜像叠合交织于一处,人与物产生有趣的关联。

红砖自带的复古韵味无论用在哪里,都能让空间呈现出一种经时间洗礼后深厚底蕴。尤其在复古潮流的当下,我们让红砖成为一种记忆符号。

室内部分用最本质的材料创造出一种微妙的和谐感;流动的空气、变化的光线,都是设计考量的一部分。最终营造出一个自然和城市、室内与室外、过去与未来之间不中断的叙事空间。
一窗之隔|One window away
面向休闲区一侧设置了一扇可以向上推拉的窗户,在天气宜人的时候都可以完全打开,让内外连通增加互动。而在窗户上我们没有使用玻璃来作为隔断,而是用“透光的纸”让内部的光线显得柔和与温暖。

吧台的弧形墙体,自然的融入在空间内。软膜天花也模拟了自然光的天井,彰显自然的光线氛围,吧台没有过多的装饰,与精致的空间与陈设形成对比,愈发的映衬出空间的细腻。

打破常规的材质平铺,将红砖以阵列排布的方式叠加、堆砌于地面、卡座之上,形成视觉上的聚焦点与冲突感。而绿植与绿色石材的加入,既避免了单一材质满铺的单调与呆板,增加了空间的层次,又可以将环境光暗藏其中,营造温馨的就餐氛围。
看见”韵律与节奏|“Seeing” Rhythm
红砖之外,选取“灰与白”作为顶和地的主色调,辅以白色的挂衣道具及置物层板,打上柔和的暖光,从玻璃窗望进去仿佛一场舞台剧正上演,置身于空间中的客人就是剧中人,每一位都是自己那一帧故事的主角。外围途经的路人,就像观看一出出表演,禁不住幻想自己也是其中之一。

我们对材料的精挑细选也决定了空间的造型和气质,柔软的织物缓解了地砖和金属所带来的冷硬感。所以物体本身存在的价值就是多样性的,可以通过某一种物质中的材质,或是某一种物体构造去模糊空间和另一个界面的关系,空间也就存在了更大的价值变化。空间与品牌产生对话,建立一个态度,向市场发出一个声音,追求一种永恒的美。

收银台使用了天然火山岩作为饰面材料,给人在无论视觉还是触觉上,都带来深刻的体验,提供一个使人沉浸和愉悦的外表,使得我们的眼睛和所有的感官被诱醒,去形成一个从进入开始的完整的体验感。

▼柔和的光线照射在火山岩的纹理上,露出它的颗粒和轮廓

▼一面的我是告别过去的我 一面的我是崭新美好的我

为了减轻空间的压力并实现展示空间的延展,我们引入了两块大的镜子。在设计过程中,我们通过反复的试验来模拟镜面在场地中的反射效果,通过探讨镜面的摆放方式,组织调整在空间中的游览路线,以达到增加空间的层次,增加游览时间的目的。通过镜面之间产生的德罗斯特效应,形成一个个没有边界的无限空间,让参观者的视线能得到最大限度的延伸。

我们还在空间的尽头设置了一个绿色的体块。在镜面的反射下,这一抹亮眼的绿色反复出现在整个游览路线中。这种“看到却还未走到”的空间体验将成为参观者探索空间的重要线索,引领他们继续向着二层行进。
平行空间的“内外关系”|The inside-out relationship of the parallel space
楼梯形成了一道景观。我们没有重新更换楼梯的位置,而是对旧建筑进行了大量的结构重塑。在进入楼梯的前一段,一侧墙的墙面安装镜面,由立方体块组合而成的风景,与镜子里的虚像形成视觉图像的关联。使原本单一的空间在视觉上变的开阔,镜子的加入也让原本单调的空间多了一些趣味。楼梯间的窗户给室内带来了丰富的光线。一天当中不停变化的太阳高度角控制了光线的变化,加强了空间内昏暗区域的光照强度。阳光和阴影的轨迹共同塑造了空间给人的感受。

在优雅自由的线条上,素面朝天的地面材质去掉了所有的装饰,把服装挂进去,传达出舒服的、艺术的、自由的空间气息。每个人眼中的自由不同,比如有经典的自由,恒久的自由,但这传达的并不是视觉,而是自由的情绪表达,消费者会被这种气息所吸引,从而感受这个空间的态度。

二层作为VIP展示区,设计师希望整个消费体验更具有仪式感,所以空间运用教堂式的建筑形态来契合这个买手店的品牌信仰,延续一层中轴线的构图及对称式设计语言,赋予了空间仪式感和神圣感,让空间能够代替侍者的一些部分,自由又稍稍带些庄严感。

基础空间延续了一楼的风格,浅木色地板与灰色哑光砖,整体的暖色调让空间呈现出了柔和的女性气质;动线设计借鉴了园林营造中的“移步换景”手法,通过隐性的隔断围合出一个个日常生活小场景,增加了顾客探索的乐趣。

室内空间中,大量的留白创造了简约的空间表面,集中场景美学,放大空间故事。整体空间纯净整洁,强化人对空间框架和秩序的知觉。

在质朴中洞察美感|The use of simple and natural materials
一层层打开,最终看到窗外的风景。这种内部极致的秩序感和看似并列的排布方式却能让视线层层递进,最终聚焦在一窗的景观中。自由流淌、明暗交错、婆娑起舞,是光,亦是空间的韵律。身处几何墙面的包围,倘若只看到大面积的纯色,也会让人略微紧张,但若眼前出现粼粼光影,灵动婆娑。


空间运用低饱和度,纯粹的材质在空间中表达出一种静谧感,跳脱于底色的同时又能与空间氛围融汇统一。

空间设计本身就是一种交流,当设计师利用色彩、结构、光线来营造出一种能与人产生共鸣的意境氛围,让进入其中的人能获得更多层次的体验,才是设计师想要创造这个空间的本质。建筑的简洁性、构造的清晰度和材质的纯粹感成为空间新的美学载体。
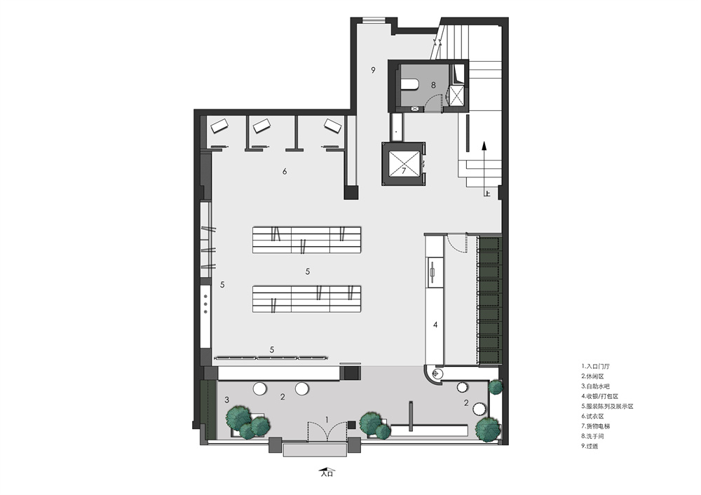
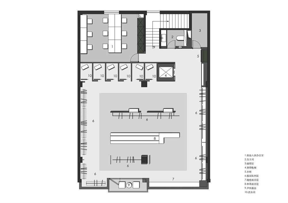
平面图:


项目名称:WEI STUFF服装店
项目地址:山西省太原市
设计公司:末染设计
主创及设计团队:孟飛
项目年份:2021年
建筑面积:360㎡
空间主材:老红砖、石材、瓷砖、木地板、金属、镜面、铝单板、火山岩、艺术漆、软膜天花、烤漆板、绿植
摄影师:RICCI空间摄影
编辑版权©灵感LAB,禁止以灵感LAB编辑版本进行任何形式转载

关注公众号

关注抖音号