底层变身公共广场,将街道还给社区|
在AIM与话梅的持续合作中,我们这次以一个全新的零售建筑类型 将“以社区为中心”的设计带回街道。话梅坊是一封给周边社区的情书,其灵感源自历史悠久的“坊”,即老上海街坊和里弄。话梅坊将作为社区的基石,重新诠释上海里弄生活的开放和融合。
▼项目概览

安福武康街道作为一个兼收并蓄又十分上海的本土社区,既有生活了几十年的老居民,也有充满活力的年轻游客们和商户融入其中。我们将建筑一层完全打开,向公众开放,希望给社区带来一个全新的公共空间:一个融合并欢迎所有人的地方,一个邻里聚集交流的场所,新老上海在此碰撞,一个别具一格、激活社区且创造连接的地方。
▼场地平面图&设计示意

本着再利用的可持续发展的宗旨,这座老建筑再次焕发生机,以新生来致敬过往——它讲述着全新的故事,亦不失对过往的尊重。新的故事也许并不完美,甚至出其不意,但却从不乏味。它真实地映射着着周边社区的环境及能量,或纷繁复杂,或新旧交替,糅杂着本土及外来的,既有混乱,亦有美好的回忆。
▼建筑的首层完全打开,向公众开放

公共广场 | Public plaza
全新的公共广场面向街道,向邻里开放。空间虽不大,却保证了多样性的功能且为街头商户留出了空间,以促进社区氛围的良性发展。一条巨大的中央阶梯自下而上延伸,将我们的视线带到了上层的主零售区。
▼公共广场

▼中央阶梯

新生活,新规则 | New life, new rules
由于旧建筑不符合当地的消防法规,迫使我们采用封闭的中央楼梯连接四层楼。楼梯的体量设计,让人们可以自由地在建筑内部螺旋上下,收获令人惊喜的及不期而遇的空间体验。
借助中性的不锈钢楼梯,将人们带入一段不同层次的旅程:从街道到室内,从公共场所到私人空间,从保留到创新——一个真正属于街坊邻居的商店。
▼轴测图

▼首层架空空间

▼从楼梯望向街道

▼中性的不锈钢楼梯贯穿空间

层次 | Layering
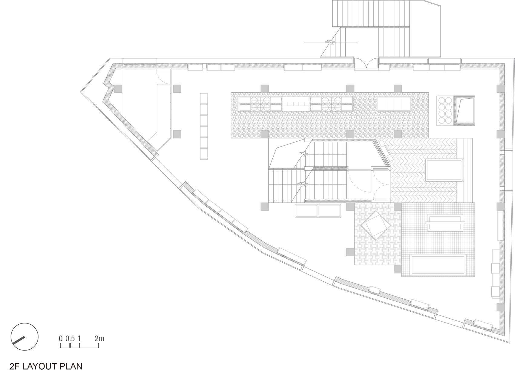
来到二层,进入了一个尊重公共和私人空间的领地,二者边界不言自明。通过混合地板饰面,一个典型里弄房屋的平面由此展示。不同的生活区延伸到室外弄堂、私人卧室和公共厨房对比鲜明,街角糖果店的收银员密切关注着这一切。
▼二层空间

▼“街角糖果店”

新的层次存在于旧建筑的外壳中之中。新的灵感从老建筑的历史痕迹中不断生长。原有窗墙的开口处现在用来放置木制陈列框架,并非为了美观,而是为了探索和再现上海里弄生活的生动和复杂性。
▼二层空间:原始窗墙的开口处变成木制陈列框架


▼混合地板饰面

▼陈列区

▼展柜细节

三层的设计更加直观。这层楼使用了十分典型常见的里弄房屋的瓷砖,是一个中性的空间,没有固定用途,曾经被用作仓库。
▼三层楼梯

▼地面铺设里弄房屋的瓷砖

▼展架细节


站在窗口眺望,窗外的景色令人称奇,在这里您可以俯瞰热闹的街道,也可以凝视着交叉路口拐角的景色和社区人群,站在此处,一切尽收眼底。
▼三层转角窗景

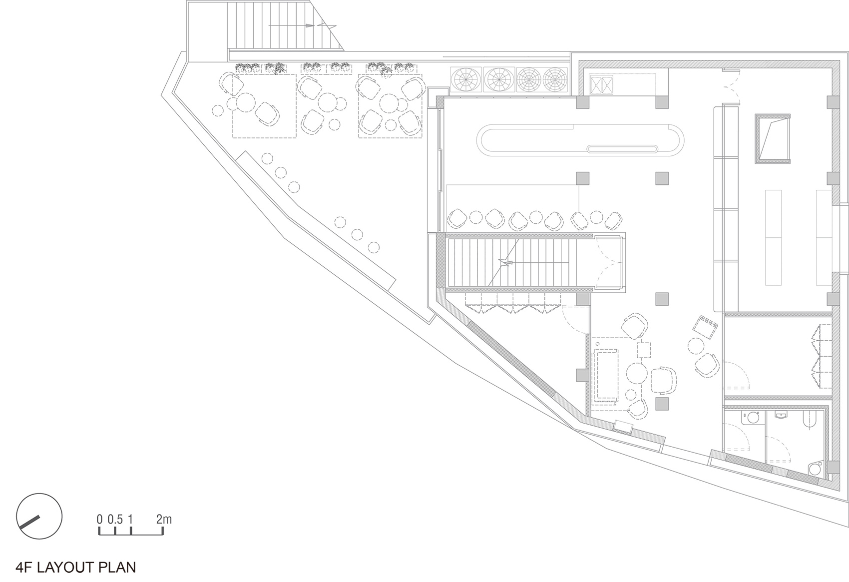
四楼空间被打造的更加不拘一格及充满风情,灵感来源于那些上海随处可见的自制的各色屋顶结构,其中的存储功能、社交空间和绿色露台都构成了一个经典的上海屋顶聚会场所。
▼四层空间一角

▼洗手间和吧台细节

在建筑内部上下穿梭,或只是在公共广场上坐观来往人行,话梅坊创造着强烈的本土印象,也让人窥见其内在蕴涵。在这里,所有的不期而遇和丰富的分层空间构成了一个独属于上海的地方。我们希望,对你们而言,它亦是独一无二。
▼街道视角

▼立面细节

▼立面设计示意

▼一层平面图

▼二层平面图

▼三层平面图

▼四层平面图

项目名称:“HARMAY話梅”美妆店
项目地址:上海市徐汇区武康路55号
设计公司:AIM 恺慕建筑设计
设计总监:Wendy Saunders、Vincent de Graaf
主创及设计团队:郭鹏、焦月圆、张艺、蔡宁远、胡东凯、焦琰、徐心懿、文森析、吴佳玥、张旭翔
建筑设计:盛玲
软装设计:Lili Cheng、戴维莎
陈列设计:Victor Mongin、王尤宝儿
施工单位:上海恒品装饰设计工程
项目年份:2021年
建筑面积:880㎡
摄影师::Dirk Weiblen、顾博文
项目客户:HARMAY話梅
感写观览、点击文章顶部?可收藏案例
更多该设计公司案例,请点击 → AIM 恺慕建筑设计事务所
编辑版权©灵感LAB,欢迎转发,禁止以灵感LAB编辑版本进行任何形式转载

关注公众号

关注抖音号