复兴邮局于人们日常生活中的仪式感|
宁波老外滩曾是浙江省历史上第一家邮局的所在地,具有重要的历史意义。外滩邮政局冀望于甬江岸边设立了一个新的办公地点,同时作为社区的中心,复兴邮局于人们日常生活中的仪式感。
▼项目外观

因此,室内设计上对空间的表达侧重唤起人们心底的怀旧感,同时保留传统意义上与邮局相关的概念、界限。外滩邮政局与毗邻的“诺邸书店”合作,打造提供不同生活方式体验感的空间,同时将当代文化中融入其中。
▼室内概览

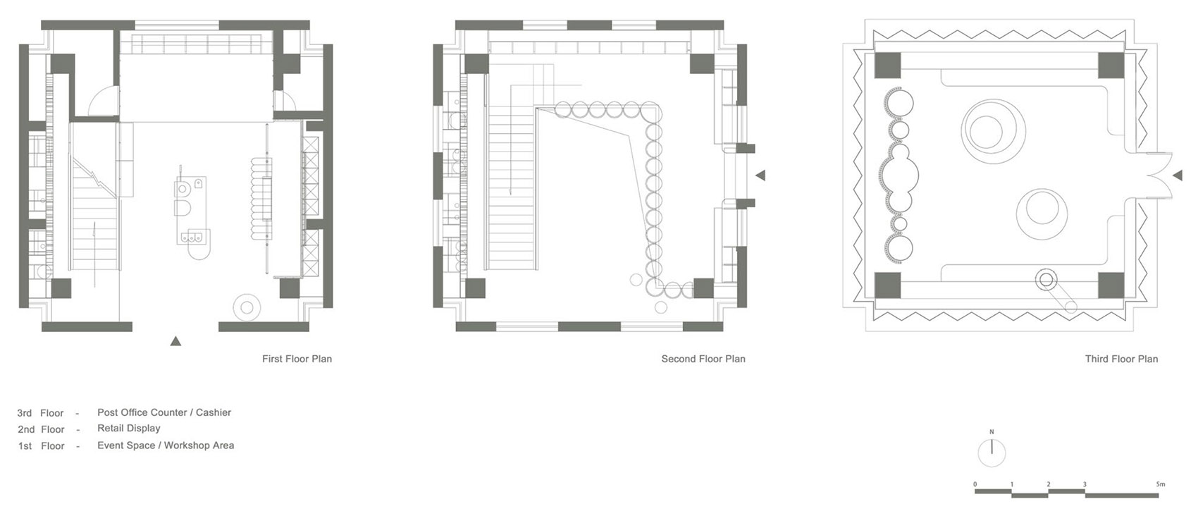
外滩邮政局的三层空间由邮政柜台、礼品和纪念品零售展示区以及儿童游乐区组成,儿童游乐区也是多功能活动区,平时用于举办工作坊和主题活动。
▼入口展示区

怀旧的形式与节日氛围感的绿色、白色和饱和的红色搭配,设计师的巧妙设计将一些历史元素的参考融合进现代感的设计语境中。当访客步入邮局后,迎接他们的是的双层挑高中庭,一楼设有邮政柜台。视线延展,映入眼帘的是一个引人注目的白色楼梯结构,覆盖着穿孔金属网,为整个空间赋予通透的活力感和强烈的视觉张力。
▼看向邮政柜台


▼天花板吊灯

▼二层零售区


功能性上楼梯结合了零售陈列的结构特征,从一楼一直延伸,引导访客进入夹层。二楼夹层的设计上延续了网状楼梯结构的特征,展陈架也统一色调为深红色、两处内设阅读区以绿色皮革包裹和定制照明为特色。访客至此可通过一座室内搭设的桥型结构,穿过与阅读室相邻的房间到达三楼。
▼网状楼梯围合夹层


三楼是私密的儿童活动区和多功能的workshop空间,由起伏的玻璃窗面板环绕,这一设计灵感则来源于社区内居民楼的屋顶花园。
▼三层概览

伊始,客户希望 Yatofu 能够重新设想、定义邮局在一个社区中的作用。设计师通过研究了解到,在节日期间,例如: 节假日、生日,当然还有文化意义重大的中国新年,邮局通常发挥着极其重要的作用。因此我们对客户一开始提出 的构想进行重新定义,即设计一间多功能复合型的邮政局,将其正常功能与礼品零售、文化活动和儿童嬉戏/活动空间相结合。
▼儿童活动区&家具布置

外滩邮政局在功能上真正成为一间复合型社区中心,为购买节日礼物的消费者们提供优质商品,同时也成为社区居民们举行主题活动的悦聚场所。外滩邮政局以其完整复合的功能形式重新定义了邮局这一特定功能空间 在现代生活背景下的创新发展,室内空间的规划设计上超越了其收发邮件的初始目的功能,更为重要的是为访客和附近居民们提供了采购节日礼物和活动的中心,来访者们可以于此通过分享礼物、回忆和活动相互联系,空间也因此上演着许多不同的故事。
▼细部


▼平面图

▼轴测图

项目名称:外滩邮政局
项目地址:宁波
设计公司:Yatofu Creatives
主创及设计团队:Angela Lindahl, Yihan Xiang, Sheen Tao
建成时间:2020年
建筑面积:245㎡
空间主材:穿孔金属板、水磨石地板、微水泥墙体饰面、橡木
摄影师:Wen Studio
编辑版权©灵感LAB,禁止以灵感LAB编辑版本进行任何形式转载

关注公众号

关注抖音号