Enhako大楼位于距离东京郊区最近火车站步行约15分钟的地方,坐落在居民区和商业/政府办公混合区的边界上。项目开始之前,业主找到了Organic Design Inc.事务所进行咨询,虽然他们十分看好这块场地,但是场地距离主干道与火车站还是具有一定的距离,且他们不确定如果建造一座用于租赁的商业建筑是否能够吸引稳定的人流。

平日里,很多老人、家庭主妇和儿童都会因为各种各样的原因来到这里,商业区里坐落着很多诊所、整骨诊所,以及老年人经常光顾的福利设施;家庭主妇们则会经常去往超市或去某个熟悉的小咖啡馆聚会;此外,社区中还设有学前备考中心。在周末,很多家庭都会光顾市政厅停车场上举行的早市进行购物,然后在大型公园消磨消磨时间,中午在咖啡厅或家庭餐厅中用餐,然后返回住宅区。因此,设计团队将Enhako大楼设想为一处坐落于两个区域之间的栖息之所,人们能够在宽敞的阳台上停留休憩。
▼分析图

▼建筑立面

▼主入口立面

▼木制阳台



▼视觉标识设计

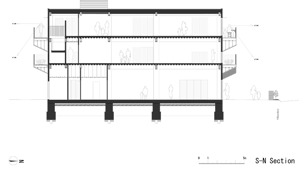
无论是周末还是工作日,大楼周围人潮流动。虽然这里的人群比车站附近的要少,但相对来说人流更加稳定。因此,建筑师特别设计了毗邻街道的阳台,二楼和三楼周围被宽敞的阳台包裹,阳台下方则形成有机的檐下空间。温暖的木屋檐,吸引着人们进入大楼,同时定义了建筑的独特设计语言。
▼阳台下有机空间形态

▼阳台延伸到人行道之上

▼阳台空间



▼由阳台看公园与社区

建筑主立面朝北,面向绿树成荫的街道以及对面的公园和市政厅,同时也将夏季节日庆典和植物集市中热闹的场景引入室内景观之中。大楼内主要包含了商店和诊所,引人注目的阳台包裹着建筑的外围,将空间延伸到街道上方。无论是平日里还是周末,大楼为各个年龄段的来客提供了一处闲适的休憩场所。作为一栋商业建筑,Enhako大楼由社区成员运营管理。室内空间可以整体出租,也可以按层出租,或根据需要按单元出租。
▼底层大厅


▼室内空间


▼楼梯与走廊


▼夜景

▼区位图

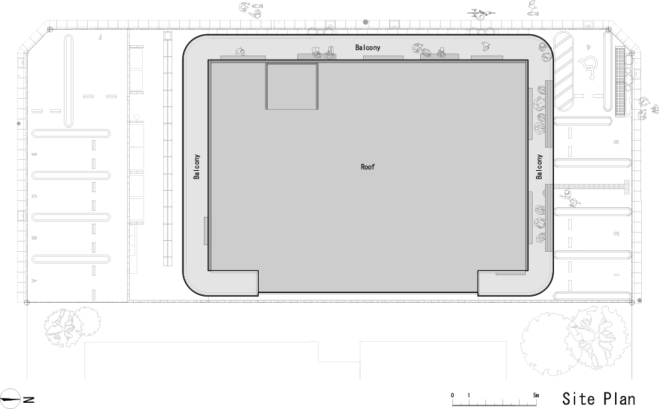
▼总平面图

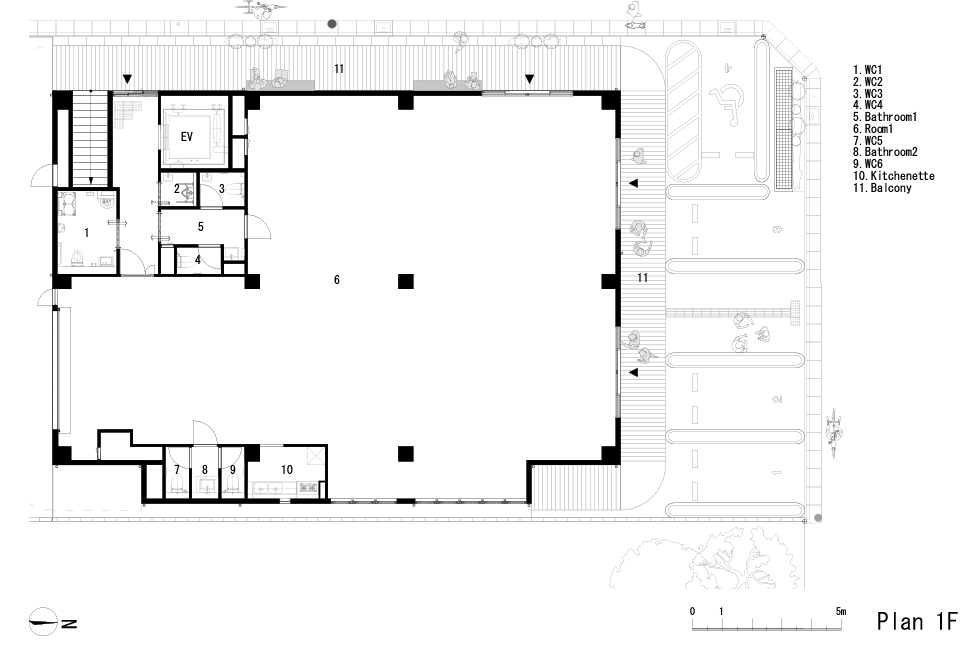
▼一层平面图

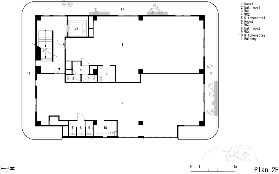
▼二层平面图

▼三层平面图

▼立面图


▼剖面图


项目名称:Enhako大楼
项目类型:商业建筑设计、商店设计、医疗空间设计、公共建筑设计、综合体建筑设计、空间标识设计
项目地址:日本 · 东京
客户:Local LandLoard
建筑设计:Organic Design Inc.
主创及设计团队:Hideo Kumaki, Rei Maki
建筑面积:784㎡
建成年份:2022.11
摄影版权:Yukinori Okamura
感写观览、登录灵感LAB账号、点击文章顶部🤍可收藏案例
更多该设计公司案例,请点击 → Organic Design Inc.
编辑版权©灵感LAB,欢迎转发,禁止以灵感LAB编辑版本进行任何形式转载

关注公众号

关注抖音号

嘉兴南湖天地·嘉兴 | 上海天华建筑设计有限公司

无锡田园东方二期·田园综合体·无锡 | 袈蓝建筑设计事务所

岱山南侧社区卫生服务中心、养老院、社区教堂·南京 |东南大学建筑学院UAG城市建筑设计工作室

长拖1958·铸光仓·长春 | UV独特视野建筑设计

城市垂直公共空间 – 曼谷The Commons商场·曼谷 | Department of ARCHITECTURE

“天府新兴•和盛田园东方”田园综合体·成都 | 袈蓝建筑设计事务所